$3,600
For Rent
Base rent only. For total monthly price and additional fees, see .
Rented 8/14/2025
600 ft²
$72 per ft²
2 rooms
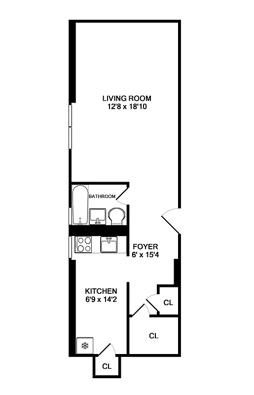
Studio
1 bath
Rental unit
- Kips Bay
Under NYC law, you can't be charged a broker fee if you didn't hire a broker.
Listed By
Owner
This home has been saved by 15 users.
Listing by Owner
Unavailable
Rented on 8/14/2025
Days on market
7 days
Last price change
No changes
About
Large newly renovated studio with lots of closet space. Kitchen features hardwood cabinets, Silestone countertops, stainless steel appliances including a dishwasher and vented range hood. Bathroom has a soaking tub and subway tile throughout.
Located in the heart of kips bay near Madison sq park, trader Joe's, whole, foods, and Eataly. Within walking distance of the 6, N, and R trains.
Policies
Sorry, policy info isn’t available right now. Check back later.
Home features
Dishwasher
Hardwood floors
Building amenities
Services and facilities
Bike room
Elevator
Laundry in building
Live-in super
Package room
Wellness and recreation
No info on wellness and recreation
Shared outdoor space
No info on shared outdoor space
About the building
95 Lexington Avenue
95 Lexington Avenue, New York, NY 10016
77 units
6 stories
1939 built
Property history
Prices shown are base rent only. For total monthly price and additional fees, see .
| Date | Base rent | Event |
|---|---|---|
8/14/2025 | $3,600 | Rented by Owner |
8/11/2025 | $3,600 | In contract |
8/4/2025 | $3,600 | Listed by Owner |
7/7/2023 | $3,400 | |
7/5/2023 | $3,400 |
Past listing photos
Sign in to take a closer look at how this home compares to similar homes.
Explore Kips Bay
Transit
| Location | Distance |
|---|---|
6at 28th St | 0.11 miles |
6at 23rd St | 0.19 miles |
6at 33rd St | 0.28 miles |
RWat 23rd St | 0.32 miles |
RWat 28th St | 0.38 miles |
Similar homes
Prices shown are base rent only and don't include any fees. Visit each listing to see a complete cost breakdown.
Similar Homes looks at ad spend and other factors like location, price, and number of beds and baths.








































































































