$5,000
For Rent
Base rent only. For total monthly price and additional fees, see .
Delisted 7/16/2025
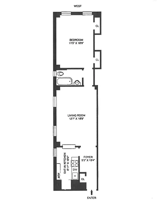
720 ft²
$83 per ft²
3 rooms
1 bed
1 bath
Co-op
- East Village
Under NYC law, you can't be charged a broker fee if you didn't hire a broker.
Listed By
This home has been saved by 77 users.
Listing by Corcoran, Limited Liability Broker, 590 Madison Avenue, New York, NY 10022
Unavailable
Delisted on 7/16/2025
Days on market
39 days
Last price change
↑ $200 (+3.8%) on 6/11/25
About
LARGE RENOVATED 1 BR RENTAL IN HEART OF EAST VILLAGE -- AVAILABLE ASAP - NO FEE!!
Spacious & RENOVATED . All Rooms Windowed.
SPONSOR APARTMENT. NO BOARD APPROVAL
This turnkey 1 bedroom home offers a renovated windowed kitchen with solid marble countertops, ample overhead cabinets, and a wall of shelving, a dream for any home cook. Enjoy a spacious living room, a bright bedroom, and a renovated windowed bathroom.
Policies
Pets allowed
Cats and dogs allowed
Pied-a-terre allowed
Home features
Dishwasher
Hardwood floors
Building amenities
Services and facilities
Bike room
Elevator
Laundry in building
Live-in super
Package room
Wellness and recreation
No info on wellness and recreation
Shared outdoor space
No info on shared outdoor space
About the building
Ageloff Towers
141 East 3rd Street, New York, NY 10009
100 units
12 stories
1929 built
Property history
Prices shown are base rent only. For total monthly price and additional fees, see .
| Date | Base rent | Event |
|---|---|---|
7/17/2025 | $5,000 | Delisted by Corcoran |
7/16/2025 | $5,000 | No longer available |
6/11/2025 | $5,000 | Price increased by 4% |
6/6/2025 | $4,800 | Listed by Corcoran |
10/18/2024 | $4,600 |
Past listing photos
Sign in to take a closer look at how this home compares to similar homes.
Explore East Village
Transit
| Location | Distance |
|---|---|
Fat 2nd Av | 0.18 miles |
FJMZat Delancey St | 0.38 miles |
FJMZat Essex St | 0.39 miles |
BDFM6at Bleecker St | 0.48 miles |
JZat Bowery | 0.49 miles |
About East Village
Rental prices shown are base rent before any fees. Visit listings for cost and fees breakdown.
SalesMedian asking price
1 bed
$787K
RentalsMedian asking base rent
1 bed
$3,995
Known and loved for being the birthplace of punk rock, the East Village is known for its vibrant restaurants and cocktail dens. During the day, however, the neighborhood slows down and has a tranquil feel. Meander down a leafy side street, and you'll happen upon plenty of prewar buildings and rusting fire escapes, which lend the East Village its old-fashioned charm.
Learn more about East VillageSimilar homes
Prices shown are base rent only and don't include any fees. Visit each listing to see a complete cost breakdown.
Similar Homes looks at ad spend and other factors like location, price, and number of beds and baths.









































































































