View this home virtually
$3,350
For Rent
Base rent only. For total monthly price and additional fees, see .
1,573 ft²
$25 per ft²
6 rooms
1 bed
2.5 baths
Condo
- Hudson Heights
Under NYC law, you can't be charged a broker fee if you didn't hire a broker.
Listed By
Listing by Swythe, Inc., Corporate Broker, 71 29 Park Dr East Ste, Flushing, NY 11367
Available
Available now
Days on market
Listed today
Last price change
No changes
About
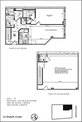
Very large (1573 sq ft total) one bedroom duplex with two additional work rooms in the lower level and a rec room. En suite Bosch washer/dryer two full bathrooms on main level and one half bath on lower level. The custom kitchen includes Caesarstone countertops, maple wood cabinetry with glass accents, and stainless steel appliances including a dishwasher, built-in microwave, and vented hood.
Policies
Pets allowed
Cats and dogs allowed
Home features
Central air
Dishwasher
Hardwood floors
Washer/dryer
Building amenities
Services and facilities
Elevator
Wellness and recreation
No info on wellness and recreation
Shared outdoor space
Roof deck
About the building
Bennett212
212 Bennett Avenue, New York, NY 10040
40 units
8 stories
2008 built
Property history
Prices shown are base rent only. For total monthly price and additional fees, see .
| Date | Base rent | Event |
|---|---|---|
2/22/2026 | $3,350 | Listed by Swythe, Inc. |
6/11/2020 | $2,180 | |
6/11/2020 | $2,180 | |
6/17/2014 | $2,840 | |
6/16/2014 | $2,840 |
Past listing photos
Sign in to take a closer look at how this home compares to similar homes.
Explore Hudson Heights
Transit
| Location | Distance |
|---|---|
1at 191st St | under 500 feet |
Aat 190th St | 0.14 miles |
Aat 181st St | 0.32 miles |
1at 181st St | 0.52 miles |
1at Dyckman St | 0.55 miles |
Similar homes
Prices shown are base rent only and don't include any fees. Visit each listing to see a complete cost breakdown.
Similar Homes looks at ad spend and other factors like location, price, and number of beds and baths.





































































































































