701 ft²
$1,219 per ft²
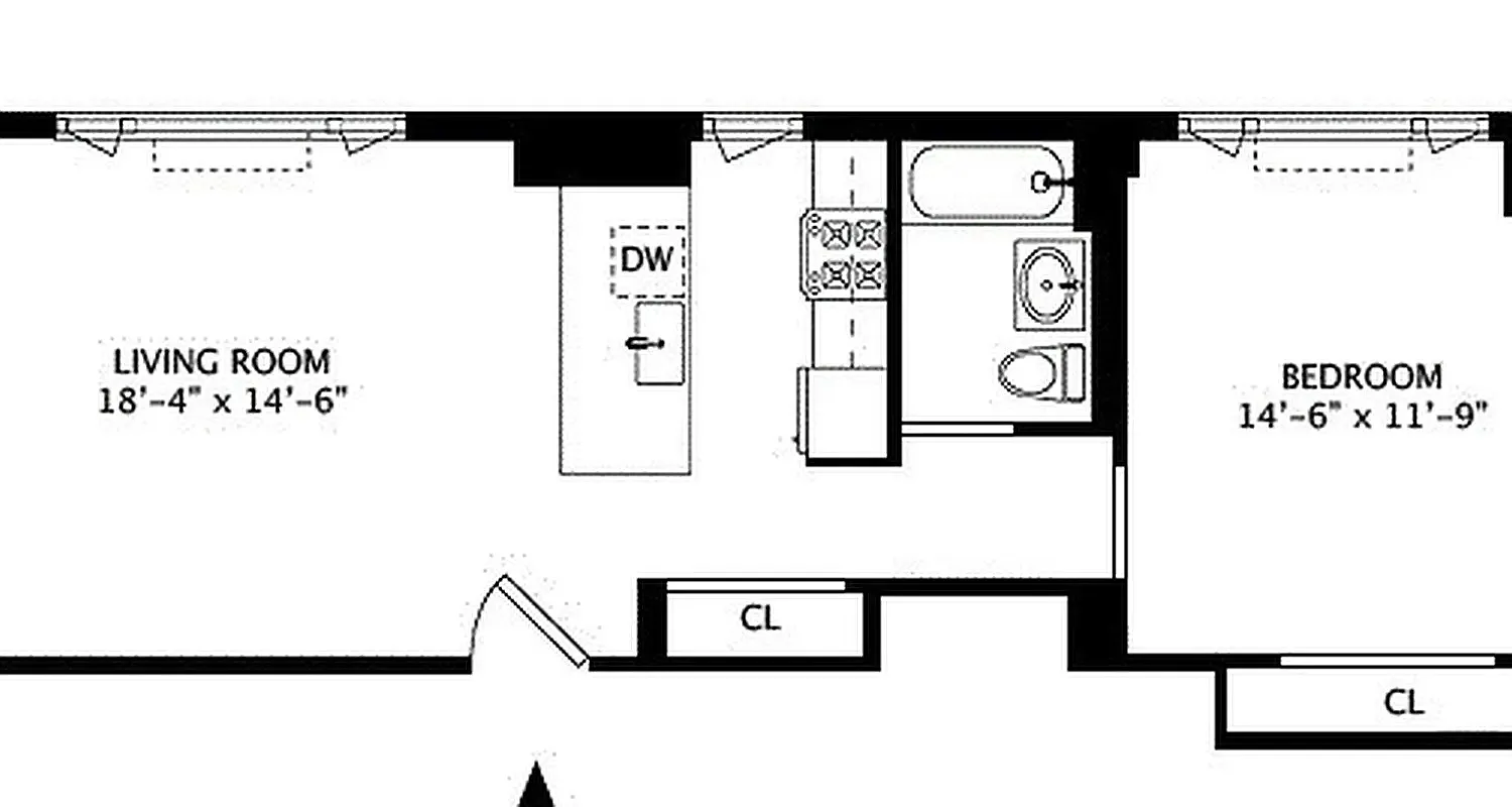
1 room
1 bed
1 bath
Condo
- Downtown Brooklyn
Resale
recorded sale
Sold on 3/7/2025
Verified by closing records
Last listed for $800,000
Seller's agent
Licensed Real Estate Salesperson
Daniel Gale Sotheby's International Realty
This home has been saved by 32 users.
Listing by Daniel Gale Sotheby's International Realty, Real Estate Principal Office, 207 Court Street, Brooklyn, NY 11201
Common charges
$749/mo
Estimated payment
$6,011/mo
Legal disclaimerAll calculations are estimates provided by StreetEasy for informational purposes only. Actual amounts or financing terms may vary. Please contact your mortgage provider for specifics.Taxes
$711/mo
Tax abatement
No info
About
Seller’s agent
Buyer’s agent
description
Nestled at the crossroads of Downtown Brooklyn and Boerum Hill, 189 Schermerhorn Street #3S offers a perfect sanctuary from the city's hustle. This corner one-bedroom, one-bath condominium invites you in with its thoughtful design, bathed in natural light and crafted for both comfort and style.
Upon entering, discover white oak flooring and oversized windows that brighten every corner of the space.
Policies
Pets allowed
Cats and dogs allowed
Home features
Central air
Dishwasher
Hardwood floors
View
Garden
Building amenities
Services and facilities
Bike room
Concierge
Doorman
Full-time
Elevator
Laundry in building
Live-in super
Package room
Parking
Garage
Storage space
Locker/cage
Wheelchair access
Wellness and recreation
Gym
Media room
Shared outdoor space
Courtyard
Roof deck
About the building
be@Schermerhorn
189 Schermerhorn Street, Brooklyn, NY 11201
246 units
25 stories
2007 built
For sale
0 available units for saleFor rent
2 available units for rentDocuments and permits
View documents and permitsProperty history
- Price Change: No changes
- Days on market: 31 daysThis is the number of days the listing has been on StreetEasy.
| Date | Price | Event |
|---|---|---|
3/7/2025 | $855,000 | Sold by Daniel Gale Sotheby's International Realty |
2/6/2025 | $800,000 | In contract |
1/6/2025 | $800,000 | Listed by Daniel Gale Sotheby's International Realty |
1/29/2015 | $739,000 | |
1/30/2015 | $739,000 |
Past listing photos
Sign in to take a closer look at how this home compares to similar homes.
Explore Downtown Brooklyn
Transit
| Location | Distance |
|---|---|
ACGat Hoyt & Schermerhorn | under 500 feet |
23at Hoyt St | under 500 feet |
ACFRat Jay St–MetroTech | 0.18 miles |
BQRat DeKalb Av | 0.25 miles |
FGat Bergen St | 0.28 miles |
About Downtown Brooklyn
Rental prices shown are base rent before any fees. Visit listings for cost and fees breakdown.
SalesMedian asking price
1 bed
$850K
RentalsMedian asking base rent
1 bed
$4,570
Bisected by Flatbush Avenue and bordered by the BQE, Downtown Brooklyn is a rapidly expanding residential neighborhood. Easy subway access and abundant inventory have drawn many to the area looking for luxury rentals and condos in the area's numerous new apartment towers.
Historically, Downtown Brooklyn has been the hub of the borough's municipal activities with many civil service offices and court houses centered around Cadman Plaza, the neighborhood's main hub. With tons of city employees, lawyers and Brooklynites of all types constantly bustling about, Downtown Brooklyn has a decidedly hectic vibe. This, coupled with the area's lack of green space, makes Downtown Brooklyn most appealing to those who can embrace one of Brooklyn's busiest and most trafficked neighborhoods.












































































































