$4,000
For Rent
Base rent only. For total monthly price and additional fees, see .
Rented 3/1/2023
750 ft²
$64 per ft²
3 rooms
1 bed
1 bath
Rental unit
- Carnegie Hill
Under NYC law, you can't be charged a broker fee if you didn't hire a broker.
Listed By
Carnegie Hill Place
This home has been saved by 47 users.
Listing by Carnegie Hill Place
Unavailable
Rented on 3/1/2023
Days on market
4 days
Last price change
↓ $100 (-2.4%) on 2/12/23
About
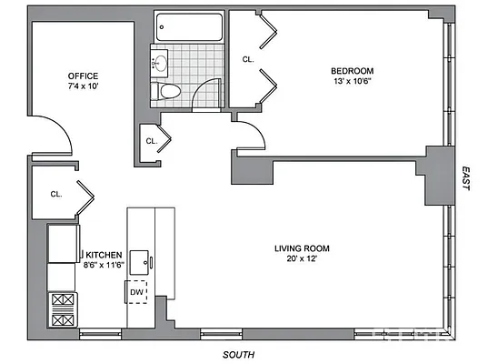
High Floor, 1 Bedroom w/ Den - 2 Exposures (South & East) with City Views & Expansive Window Walls. Corner Living Room with Floor-to-Ceiling Windows. Den Area is Ideal for Dining, Home Office, Baby, Etc. Upgraded Windowed Kitchen with Stainless Steel Appliances, Granite Countertops & Dining Bar, Subway-Tiled Backsplash, Halogen Track Lighting. 3 Closets.
Policies
Sorry, policy info isn’t available right now. Check back later.
Home features
Central air
Dishwasher
View
City
Building amenities
Services and facilities
Bike room
Concierge
Doorman
Elevator
Laundry in building
Live-in super
Package room
Parking
Valet
Storage space
Locker/cage
Wellness and recreation
Gym
Media room
Shared outdoor space
Roof deck
About the building
Carnegie Hill Place
1500 Lexington Avenue, New York, NY 10029
211 units
22 stories
2002 built
Property history
Prices shown are base rent only. For total monthly price and additional fees, see .
| Date | Base rent | Event |
|---|---|---|
3/1/2023 | $4,000 | Rented by Carnegie Hill Place |
2/16/2023 | $4,000 | In contract |
2/12/2023 | $4,000 | Price decreased by 2% |
2/12/2023 | $4,100 | Listed by Carnegie Hill Place |
3/25/2019 | $3,650 |
Past listing photos
Sign in to take a closer look at how this home compares to similar homes.
Explore Carnegie Hill
Transit
| Location | Distance |
|---|---|
6at 96th St | under 500 feet |
Qat 96th St | 0.24 miles |
6at 103rd St | 0.31 miles |
456at 86th St | 0.52 miles |
Qat 86th St | 0.59 miles |
Similar homes
Prices shown are base rent only and don't include any fees. Visit each listing to see a complete cost breakdown.
Similar Homes looks at ad spend and other factors like location, price, and number of beds and baths.
















































































