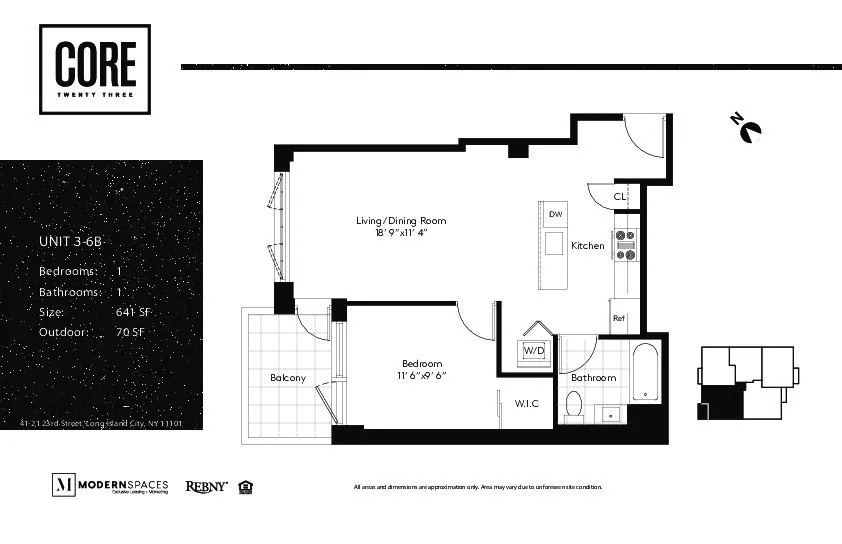
641 ft²
$1,177 per ft²
3 rooms
1 bed
1 bath
Condo
- Long Island City
Sponsor unit
Sponsor unitA unit being sold for the first time. It’s typically owned by the building. For condos, this is often the developer. For co-ops, this is often the building’s original owner before it went co-op.
recorded sale
Sold on 6/5/2023
Verified by closing records
Last listed for $765,000
Seller's agents
This home has been saved by 176 users.
Listing by Modern Spaces, Limited Liability Broker, 10-27 46th Avenue, Long Island City, NY 11101
Common charges
$450/mo
Estimated payment
$4,876/mo
Legal disclaimerAll calculations are estimates provided by StreetEasy for informational purposes only. Actual amounts or financing terms may vary. Please contact your mortgage provider for specifics.Taxes
$426/mo
Tax abatement
No info
About
Seller’s agent
Buyer’s agent
description
JUST REDUCED. Immediate occupancy. Over 85% sold.
The B line is our largest 1 bedroom measuring out at 641 square feet. It faces west and with oversized floor-to-ceiling windows, it benefits from great natural light all day. This beautiful apt has an open kitchen equipped with a combination of Blomberg & Bertazzoni appliances, Caesarstone countertops, custom cabinetry, and a grand center island.
Policies
Pets allowed
Home features
Dishwasher
Hardwood floors
Private outdoor space
Balcony
View
City
Washer/dryer
Building amenities
Services and facilities
Bike room
Elevator
Package room
Wellness and recreation
Gym
Shared outdoor space
Courtyard
Deck
Roof deck
About the building
CORE23
41-21 23rd Street, Long Island City, NY 11101
29 units
9 stories
2020 built
For sale
0 available units for saleFor rent
0 available units for rentDocuments and permits
View documents and permitsProperty history
- Price Change: ↓ $20,000 (-2.5%) on 2/8/23
- Days on market: 485 daysThis is the number of days the listing has been on StreetEasy.
| Date | Price | Event |
|---|---|---|
6/5/2023 | $755,000 | Sold by Modern Spaces |
3/10/2023 | $765,000 | In contract |
2/8/2023 | $765,000 | Price decreased by 3% |
4/6/2022 | $785,000 | Price increased by 3% |
4/6/2022 | $765,000 | Listed by Modern Spaces |
Past listing photos
Sign in to take a closer look at how this home compares to similar homes.
Explore Long Island City
Transit
| Location | Distance |
|---|---|
NW7at Queensboro Plaza | 0.12 miles |
Fat 21st St | 0.14 miles |
EMRat Queens Plaza | 0.27 miles |
EGM7at 23rd St–Ely Av | 0.38 miles |
NWat 39th Av | 0.42 miles |
About Long Island City
Rental prices shown are base rent before any fees. Visit listings for cost and fees breakdown.
SalesMedian asking price
1 bed
$990K
RentalsMedian asking base rent
1 bed
$3,799
Once an industrial expanse of warehouses and taxi depots, Long Island City has seen remarkable change in the past two decades. Its waterfront is now lined with upscale, glassy new developments aimed at young professionals who seek luxury amenities and convenient access to Midtown. In 2018, Amazon chose this neighborhood as the site for one of its two new East Coast hubs, which means some industrial buildings and pothole-pocked streets will almost certainly give way to a gleaming new tech campus. New parks, restaurants, bars, and other amenities were already transforming this somewhat gritty area into a comfortable and scenic place to live and work — and with 25,000 new, high-paying jobs on the way, much more change is on the horizon.
Learn more about Long Island City




























































































































