$6,080
For Rent
Base rent only. For total monthly price and additional fees, see .
Rented 2/15/2026
1,000 ft²
$72 per ft²
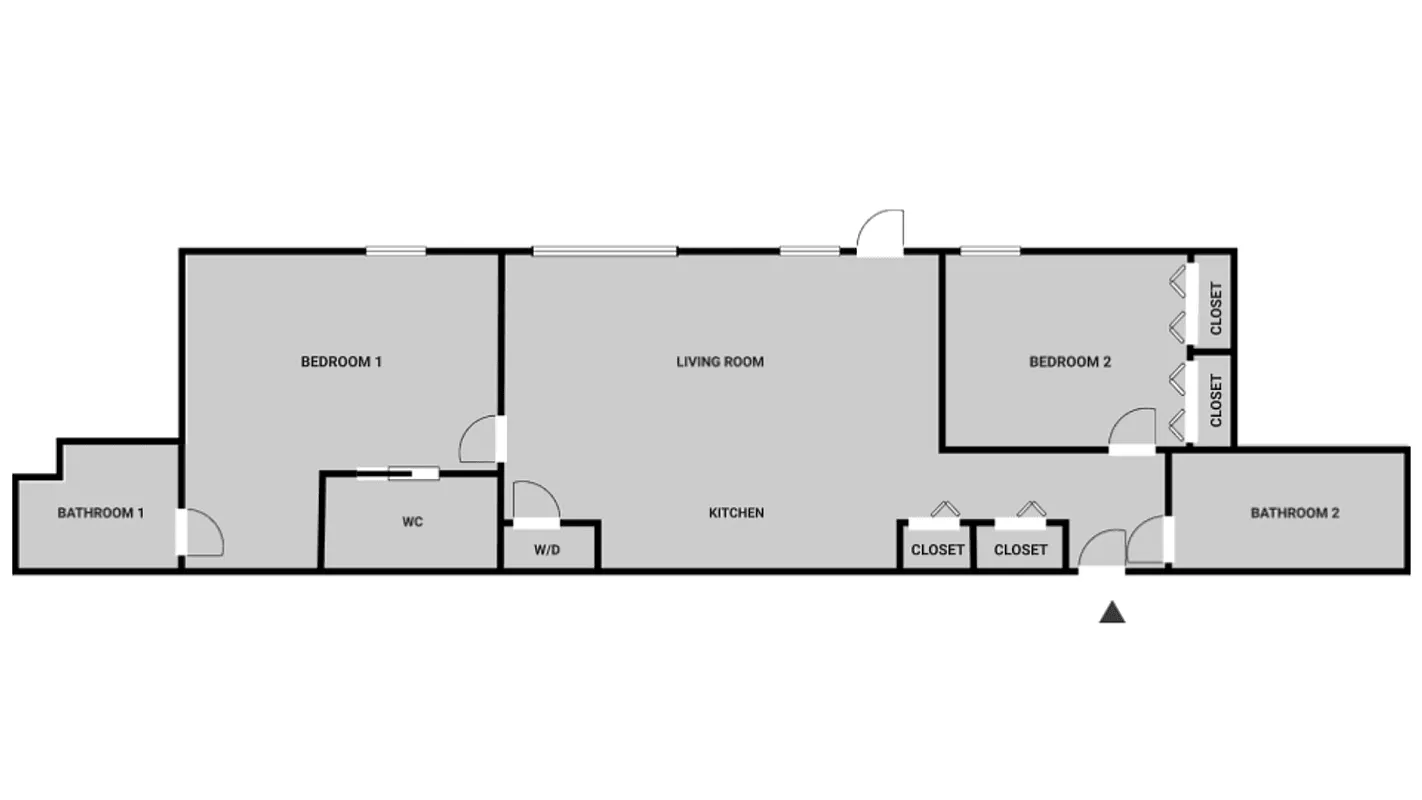
5 rooms
2 beds
2 baths
Rental unit
- Long Island City
Under NYC law, you can't be charged a broker fee if you didn't hire a broker.
Listed By
This home has been saved by 1 user.
Listing by The Blueground, Corporate Broker, 311 West 43rd Street, New York, NY 10036-6413 | Brokerage Listing ID: NYC-1982-agaccacg
Unavailable
Rented on 2/15/2026
Days on market
9 days
Last price change
↓ $70 (-1.1%) on 2/25/26
About
Discover the best of New York, with this two bedroom apartment in Long Island City. Itll be easy to simply show up and start living in this furnished apartment with its fully equipped kitchen, living room, and our dedicated, on-the-ground support. (ID #NYC1982)
The advertised rate of $6,080/month is the lowest available price, based on a 12 month(s) stay with a move-in date of March 5, 2027.
Policies
Pets allowed
Cats and dogs allowed
Home features
Dishwasher
Furnished
Washer/dryer
Building amenities
Services and facilities
Bike room
Doorman
Full-time
Elevator
Package room
Parking
Wellness and recreation
Gym
Media room
Shared outdoor space
Patio
Roof deck
About the building
Dutch House
37-05 30th Street, Long Island City, NY 11101
186 units
8 stories
2022 built
Property history
Prices shown are base rent only. For total monthly price and additional fees, see .
| Date | Base rent | Event |
|---|---|---|
2/25/2026 | $6,080 | Price decreased by 1% |
2/16/2026 | $6,150 | Price decreased by 8% |
2/15/2026 | $6,650 | Rented by The Blueground |
2/14/2026 | $6,650 | Price increased by 15% |
2/12/2026 | $5,760 | Price decreased by 0% |
Past listing photos
Sign in to take a closer look at how this home compares to similar homes.
Explore Long Island City
Transit
| Location | Distance |
|---|---|
NWat 36th Av | 0.15 miles |
NWat 39th Av | 0.16 miles |
MRat 36th St | 0.23 miles |
EMRat Queens Plaza | 0.42 miles |
NW7at Queensboro Plaza | 0.49 miles |
About Long Island City
Rental prices shown are base rent before any fees. Visit listings for cost and fees breakdown.
SalesMedian asking price
2 beds
$1.48M
RentalsMedian asking base rent
2 beds
$5,195
Once an industrial expanse of warehouses and taxi depots, Long Island City has seen remarkable change in the past two decades. Its waterfront is now lined with upscale, glassy new developments aimed at young professionals who seek luxury amenities and convenient access to Midtown. In 2018, Amazon chose this neighborhood as the site for one of its two new East Coast hubs, which means some industrial buildings and pothole-pocked streets will almost certainly give way to a gleaming new tech campus. New parks, restaurants, bars, and other amenities were already transforming this somewhat gritty area into a comfortable and scenic place to live and work — and with 25,000 new, high-paying jobs on the way, much more change is on the horizon.
Learn more about Long Island CitySimilar homes
Prices shown are base rent only and don't include any fees. Visit each listing to see a complete cost breakdown.
Similar Homes looks at ad spend and other factors like location, price, and number of beds and baths.




















































































































































































































































































































