$4,579
For Rent
Base rent only. For total monthly price and additional fees, see .
No longer available 10/12/2018
- ft²
4 rooms
2 beds
2 baths
Rental unit
- Upper West Side
Under NYC law, you can't be charged a broker fee if you didn't hire a broker.
Listed By
Aleksandra Milanova
Licensed Real Estate Salesperson
Bold New York
This home has been saved by 103 users.
Listing by Bold New York, Limited Liability Broker, One Bryant Park, New York, NY 10036 | Brokerage Listing ID: 196058
Unavailable
No longer available on 10/12/2018
Days on market
0 days
Last price change
↓ $346 (-7.0%) on 9/17/18
About
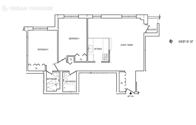
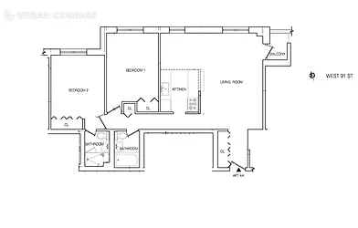
Apartment 4A is a spacious gut renovated true two-bedroom home available at 5 West 91st Street. No detail has been overlooked in the total renovation of this apartment.
Apartment features:
* bright two bedrooms / 2 baths
* high-end condo-level design elements
* open chef's kitchen with stainless steel appliances
* formal dining area
* small private balcony
* XXL large living room
* abundant storage
* renovated...
Policies
Sorry, policy info isn’t available right now. Check back later.
Home features
Dishwasher
Private outdoor space
Balcony
Building amenities
Services and facilities
Bike room
Doorman
Elevator
Laundry in building
Live-in super
Storage space
Wellness and recreation
No info on wellness and recreation
Shared outdoor space
No info on shared outdoor space
About the building
Gaia By The Park
5 West 91st Street, New York, NY 10024
48 units
6 stories
1972 built
Property history
Prices shown are base rent only. For total monthly price and additional fees, see .
| Date | Base rent | Event |
|---|---|---|
10/12/2018 | $4,579 | No longer available |
9/17/2018 | $4,579 | Price decreased by 7% |
9/17/2018 | $4,925 | Price increased by 8% |
9/17/2018 | $4,579 | Listed by Bold New York |
6/27/2018 | $4,579 | No longer available |
Past listing photos
Sign in to take a closer look at how this home compares to similar homes.
Explore Upper West Side
Transit
| Location | Distance |
|---|---|
BCat 86th St | 0.16 miles |
BCat 96th St | 0.23 miles |
123at 96th St | 0.38 miles |
1at 86th St | 0.44 miles |
BCat 81st St–Museum of Natural History | 0.51 miles |
About Upper West Side
Rental prices shown are base rent before any fees. Visit listings for cost and fees breakdown.
SalesMedian asking price
2 beds
$1.6M
RentalsMedian asking base rent
2 beds
$6,250
Sandwiched between two beautiful parks, the Upper West Side is one of the greenest spots in Manhattan. For that reason, it is a perennial favorite. The Upper West Side is relaxed, but never dull. There are plenty of low-key bars and restaurants to frequent along Amsterdam Avenue, and Broadway is an always-bustling commercial center. The wide, tree-lined streets still boast many mom-and-pop stores. Less posh than the Upper East Side, it is more easily accessible by public transportation, and real estate prices are just as, if not more, expensive.
Learn more about Upper West SideSimilar homes
Prices shown are base rent only and don't include any fees. Visit each listing to see a complete cost breakdown.
Similar Homes looks at ad spend and other factors like location, price, and number of beds and baths.






















































































































