1,720 ft²
$1,308 per ft²
5 rooms
2 beds
2 baths
Condo
- Gramercy Park
recorded sale
Sold on 4/17/2015
Verified by closing records
Last listed for $2,295,000
Seller's agent
Corcoran
This home has been saved by 85 users.
Listing by Corcoran, Limited Liability Broker | Brokerage Listing ID: 3343920
Common charges
$1,536/mo
Estimated payment
$15,301/mo
Taxes
$1,440/mo
Tax abatement
No info
About
Seller’s agent
Buyer’s agent
description
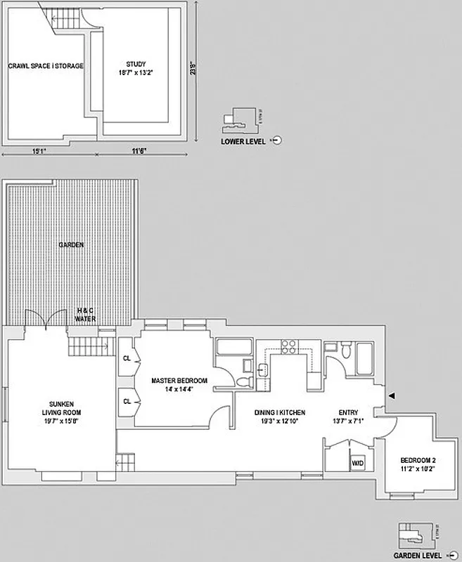
Over 1700SF plus a 400SF private terrace, this 2 bed/2 full bath home features 12 foot ceilings, a separate den/home office, hardwood white oak floors and substantial storage. The huge, eat in kitchen boasts Poggenpohl cabinetry, professional Viking, Sub-Zero and Miele appliances plus a vented range hood. A Luxurious Master bedroom has an ensuite bath complete with Limestone tile, Lefroy Brooks fixtures, Radiant Floor Heat, and deep soaking tub.
Policies
Pets allowed
Cats and dogs allowed
Home features
No info on home features
Building amenities
Services and facilities
Doorman
Part-time
Elevator
Wellness and recreation
No info on wellness and recreation
Shared outdoor space
No info on shared outdoor space
About the building
Landmark 17
231 East 17th Street, New York, NY 10003
13 units
4 stories
1948 built
For sale
0 available units for saleFor rent
0 available units for rentDocuments and permits
View documents and permitsProperty history
- Price Change: No changes
- Days on market: 197 days
| Date | Price | Event |
|---|---|---|
4/17/2015 | $2,250,000 | Sold by Corcoran |
4/22/2015 | $2,295,000 | No longer available |
3/18/2015 | $2,295,000 | In contract |
9/2/2014 | $2,295,000 | Listed by Corcoran |
3/21/2013 | $2,195,000 |
Past listing photos
Sign in to take a closer look at how this home compares to similar homes.
Explore Gramercy Park
Transit
| Location | Distance |
|---|---|
Lat 3rd Av | 0.17 miles |
Lat 1st Av | 0.26 miles |
LNQRW456at 14th St–Union Square | 0.27 miles |
6at 23rd St | 0.34 miles |
6at Astor Place | 0.47 miles |
About Gramercy Park
Rental prices shown are base rent before any fees. Visit listings for cost and fees breakdown.
SalesMedian asking price
2 beds
$2.25M
RentalsMedian asking base rent
2 beds
$6,495
In the early 20th century, Gramercy Park was synonymous with luxury. Some of the most prominent New Yorkers lived in grand houses along the neighborhood's eponymous park. Today, Gramercy Park is a brief respite from the hustle and bustle of Downtown Manhattan that still retains an old-world vibe. It's not uncommon to see residents dressed in tweed and loafers tottering down Irving Place, a quiet commercial stretch that offers a mix of local shops, restaurants, and pubs. As you head further east, the avenues get busier and more generic.
Gramercy's side streets are lined with walk-ups and large apartment buildings and are more casual than the blocks surrounding the actual park, attracting residents looking for a quintessentially nice New York City neighborhood.














































































































































