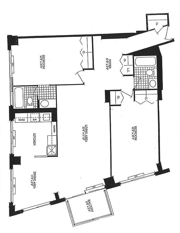
1,273 ft²
$2,003 per ft²
4 rooms
2 beds
2 baths
Condo
- Flatiron
recorded sale
Sold on 6/21/2019
Verified by closing records
Last listed for $2,550,000
Seller's agent
This home has been saved by 45 users.
Listing by Newell and Assoc., Corporate Broker, 5 East 22nd Street 29 P, New York, NY 10010 | MLS #: 599699
Common charges
$1,227/mo
Estimated payment
$17,973/mo
Legal disclaimerAll calculations are estimates provided by StreetEasy for informational purposes only. Actual amounts or financing terms may vary. Please contact your mortgage provider for specifics.Taxes
$1,861/mo
Tax abatement
No info
About
Seller’s agent
description
RARE OFFERING. Enjoy brilliant sunsets from the balcony of your bright, high floor, 1273 s.f. corner 2-bedroom, 2-bathroom home. The largest full 2-bedroom line in the building boasts a sizable dining alcove with oversized corner windows that showcase breathtaking views north over Madison Square Park, the ESB, Chrysler Bldg., Met Life Clock Tower and midtown and west sunset views out to the River.
Policies
Sorry, policy info isn’t available right now. Check back later.
Home features
Private outdoor space
Balcony, Garden
Building amenities
Services and facilities
Concierge
Doorman
Full-time
Elevator
Laundry in building
Live-in super
Parking
Garage
Storage space
Wellness and recreation
Children's playroom
Gym
Shared outdoor space
Garden
About the building
Madison Green
5 East 22nd Street, New York, NY 10010
423 units
29 stories
1985 built
For sale
1 available units for saleFor rent
1 available units for rentDocuments and permits
View documents and permitsProperty history
- Price Change: ↓ $150,000 (-5.6%) on 6/25/19
- Days on market: 60 daysThis is the number of days the listing has been on StreetEasy.
| Date | Price | Event |
|---|---|---|
6/25/2019 | $2,550,000 | Price decreased by 6% |
6/21/2019 | $2,550,000 | Sold by Newell and Assoc. |
4/10/2019 | $2,700,000 | In contract |
2/8/2019 | $2,700,000 | Listed by Newell and Assoc. |
7/10/2015 | $0 |
Past listing photos
Sign in to take a closer look at how this home compares to similar homes.
Explore Flatiron
Transit
| Location | Distance |
|---|---|
RWat 23rd St | under 500 feet |
6at 23rd St | 0.12 miles |
FMat 23rd St | 0.23 miles |
PATHat 23rd Street Station | 0.25 miles |
6at 28th St | 0.3 miles |
About Flatiron
Rental prices shown are base rent before any fees. Visit listings for cost and fees breakdown.
SalesMedian asking price
2 beds
$2.75M
RentalsMedian asking base rent
2 beds
$10,374
Flatiron is a historic New York City neighborhood that has seen its fair share of change over the years. In the early 1900s, it was a major commercial and residential center. By the middle of the century, things stagnated as businesses and residents left in search of more space and lower rents. In recent years, stores, upscale restaurants, and new developments moved back in, and the neighborhood is seeing a significant resurgence. Fifth Avenue now bustles with some of the best shopping in the city, and restaurants run the gamut from Michelin-rated to Yelp-reviewed food trucks.
Flatiron is busiest at midday and cocktail hour and tends to quiet down a bit at night, although the lights never truly turn off. Proximity to Union Square and multiple subway lines make it an equally easy trip to Midtown or Downtown.





















































































































