View this home virtually
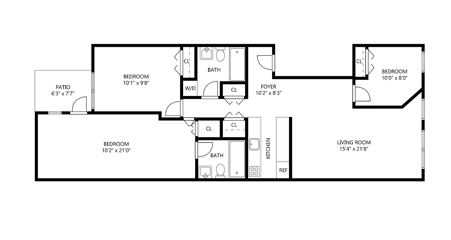
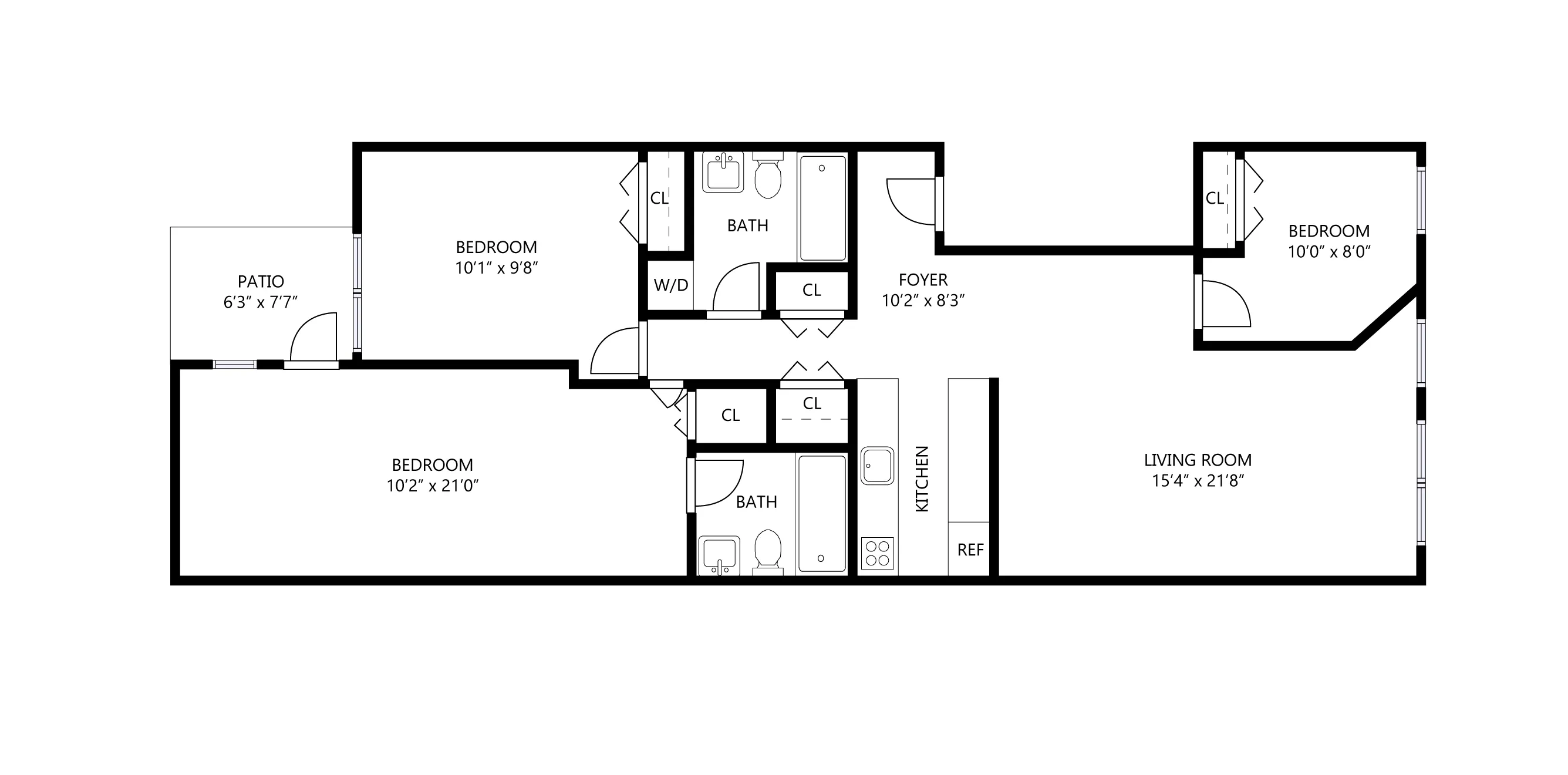
1,300 ft²
$922 per ft²
6 rooms
3 beds
2 baths
Condo
- Manhattan Valley
Resale
reported sale
Sold on 2/19/2025
Not yet verified by closing records
Seller's agent
This home has been saved by 156 users.
Listing by Bank Neary, Corporate Broker, 328 West 17th Street, New York, NY 10011
Common charges
$722/mo
Estimated payment
$7,714/mo
Legal disclaimerAll calculations are estimates provided by StreetEasy for informational purposes only. Actual amounts or financing terms may vary. Please contact your mortgage provider for specifics.Taxes
$910/mo
Tax abatement
No info
About
Seller’s agent
description
Welcome to 120 Manhattan Avenue, apartment 4A, a spacious and sun-blasted three bedroom, two bath floor-through condominium on a beautiful tree-lined street in the heart of Manhattan Valley. One block from Central Park, this top floor oasis features low monthlies, an adorable back patio, multiple skylights and east/west exposures which provide an abundance of natural light all day.
Policies
Pets allowed
Home features
Dishwasher
Hardwood floors
Private outdoor space
Balcony, Terrace
View
City
Washer/dryer
Building amenities
Services and facilities
Bike room
Wellness and recreation
No info on wellness and recreation
Shared outdoor space
No info on shared outdoor space
About the building
Manhattan Valley Townhouses
120 Manhattan Avenue, New York, NY 10025
Complex:
Manhattan Valley Townhouse Condominiums1 unit
3 stories
1986 built
For sale
0 available units for saleFor rent
0 available units for rentDocuments and permits
View documents and permitsProperty history
- Price Change: ↓ $46,000 (-3.7%) on 11/7/24
- Days on market: 115 daysThis is the number of days the listing has been on StreetEasy.
| Date | Price | Event |
|---|---|---|
2/19/2025 | $1,199,000 | Sold by Bank Neary |
12/9/2024 | $1,199,000 | In contract |
11/7/2024 | $1,199,000 | Price decreased by 4% |
9/30/2024 | $1,245,000 | Price decreased by 4% |
8/16/2024 | $1,295,000 | Listed by Bank Neary |
Past listing photos
Sign in to take a closer look at how this home compares to similar homes.
Explore Manhattan Valley
Transit
| Location | Distance |
|---|---|
BCat 103rd St | 0.12 miles |
BCat Cathedral Parkway–110th St | 0.2 miles |
1at 103rd St | 0.36 miles |
BCat 96th St | 0.4 miles |
23at 110th St–Central Park North | 0.47 miles |









































































































































































