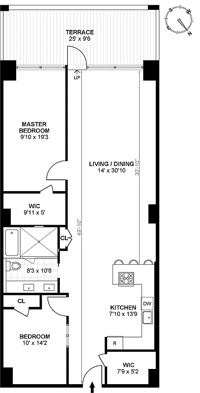
1,274 ft²
$981 per ft²
3 rooms
2 beds
1 bath
Condo
- Prospect Heights
reported sale
Sold on 7/22/2017
Not yet verified by closing records
Seller's agents
This home has been saved by 108 users.
Listing by Halstead Real Estate | MLS #: 16396421
Common charges
$1,004/mo
Estimated payment
$7,498/mo
Legal disclaimerAll calculations are estimates provided by StreetEasy for informational purposes only. Actual amounts or financing terms may vary. Please contact your mortgage provider for specifics.Taxes
$58/mo
Tax abatement
No info
About
Seller’s agent
description
Contract Signed. Stunning Loft with Private Terrace
Light, bright and airy - this unique, modern condominium in the coveted Newswalk Building offers luxury living in an ideal Prospect Heights location. 13' ceilings and nearly 50' of open living space create an authentic loft feeling with fantastic light and flow. The huge, updated kitchen is the center of this home with an enormous breakfast bar, oodles of storage and a suite of stainless steel appliances.
Policies
Pets allowed
Cats and dogs allowed
Home features
Loft
Private outdoor space
Terrace
Building amenities
Services and facilities
Bike room
Concierge
Doorman
Full-time
Elevator
Laundry in building
Parking
Garage
Storage space
Wellness and recreation
Gym
Shared outdoor space
Deck
Roof deck
About the building
Newswalk Phase 3
535 Dean Street, Brooklyn, NY 11217
173 units
9 stories
1902 built
For sale
2 available units for saleFor rent
0 available units for rentDocuments and permits
View documents and permitsProperty history
- Price Change: No changes
- Days on market: 55 daysThis is the number of days the listing has been on StreetEasy.
| Date | Price | Event |
|---|---|---|
10/10/2023 | $0 | |
10/28/2017 | $1,250,000 | Sold by Halstead Real Estate |
7/22/2017 | $1,250,000 | No longer available |
5/18/2017 | $1,250,000 | In contract |
3/24/2017 | $1,250,000 | Listed by Halstead Real Estate |
Past listing photos
Sign in to take a closer look at how this home compares to similar homes.
Explore Prospect Heights
Transit
| Location | Distance |
|---|---|
23at Bergen St | 0.17 miles |
LIRRat Atlantic Terminal | 0.26 miles |
BQat 7th Av | 0.28 miles |
Cat Clinton & Washington Avs | 0.29 miles |
Cat Lafayette Av | 0.29 miles |
About Prospect Heights
Rental prices shown are base rent before any fees. Visit listings for cost and fees breakdown.
SalesMedian asking price
2 beds
$1.58M
RentalsMedian asking base rent
2 beds
$5,075
Prospect Heights offers a vibrant mix of old and new Brooklyn. Often referred to as a fallback for people unable to afford Park Slope, the area has recently become known for its own unique personality - as well as its rising real estate value. The commercial strips of Vanderbilt and Washington Avenues offer a mix of bodegas and inveterate neighborhood standbys next to a new spate of hipster-centric bars and restaurants. Turn down any side street, however, and you can encounter gorgeous old brownstones surrounded by quiet greenery.
Learn more about Prospect Heights



































































































