$6,400
For Rent
Base rent only. For total monthly price and additional fees, see .
Rented 8/10/2025
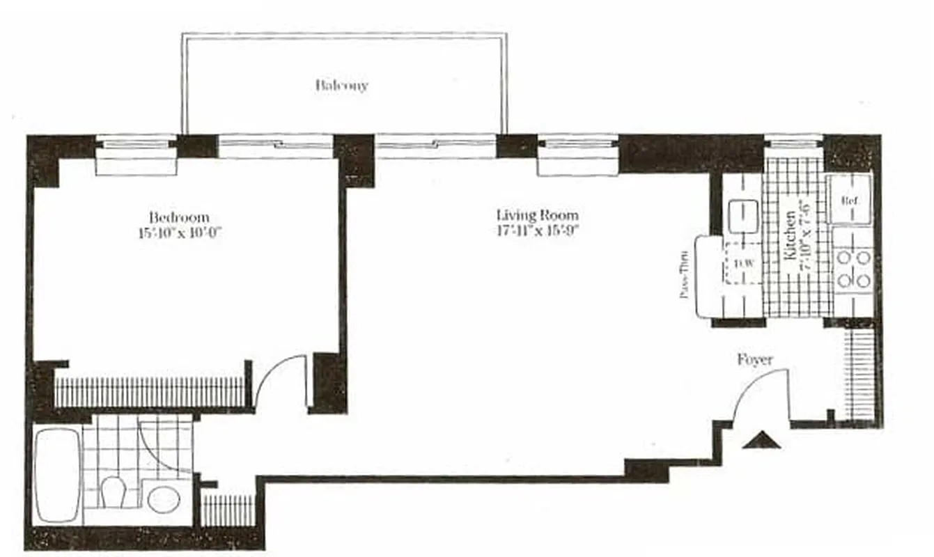
733 ft²
$104 per ft²
3 rooms
1 bed
1 bath
Condo
- Tribeca
Under NYC law, you can't be charged a broker fee if you didn't hire a broker.
Listed By
This home has been saved by 15 users.
Listing by Tabak Real Estate, Limited Liability Broker, 137 Reade Street, New York, NY 10013
Unavailable
Rented on 8/10/2025
Days on market
5 days
Last price change
No changes
About
Available starting in September... Bright & Spacious One-Bedroom Condo with Large Private Balcony – Prime Tribeca Location.
This sun-drenched, south-facing one-bedroom residence features a generous private balcony overlooking a beautifully landscaped courtyard. Rarely available and exceptionally quiet, this home offers an ideal blend of comfort and convenience.
Policies
Sorry, policy info isn’t available right now. Check back later.
Home features
Dishwasher
Private outdoor space
Balcony
Building amenities
Services and facilities
Doorman
Full-time
Elevator
Laundry in building
Live-in super
Wellness and recreation
No info on wellness and recreation
Shared outdoor space
Roof deck
About the building
Reade House
311 Greenwich Street, New York, NY 10013
79 units
10 stories
1988 built
Property history
Prices shown are base rent only. For total monthly price and additional fees, see .
| Date | Base rent | Event |
|---|---|---|
8/10/2025 | $6,400 | Rented by Tabak Real Estate |
7/11/2025 | $6,400 | In contract |
7/6/2025 | $6,400 | Listed by Tabak Real Estate |
6/8/2020 | $4,000 | |
6/8/2020 | $4,000 |
Past listing photos
Sign in to take a closer look at how this home compares to similar homes.
Explore Tribeca
Transit
| Location | Distance |
|---|---|
123at Chambers St | under 500 feet |
ACE23at Chambers St | 0.16 miles |
Eat World Trade Center | 0.22 miles |
1at Franklin St | 0.25 miles |
RWat City Hall | 0.29 miles |
About Tribeca
Rental prices shown are base rent before any fees. Visit listings for cost and fees breakdown.
SalesMedian asking price
1 bed
$1.76M
RentalsMedian asking base rent
1 bed
$6,720
Tribeca is an upscale neighborhood known for high-end real estate and well-heeled residents — a downtown haven for European cars and pedigreed dogs. It's also a truly gorgeous area that mixes glorious old cast-iron lofts, wide cobblestone streets, and dramatic new buildings. Decades ago, these lofts housed artists and squatters. But the bohemians have given way to cool-seekers with bigger bank accounts. Now, this neighborhood is among the most expensive places to live in the city. That hasn't cost the neighborhood much of its sophistication, though. Nightlife in Tribeca remains busy but refined, attracting a cosmopolitan crowd with an appreciation for the finer things in life.
Learn more about TribecaSimilar homes
Prices shown are base rent only and don't include any fees. Visit each listing to see a complete cost breakdown.
Similar Homes looks at ad spend and other factors like location, price, and number of beds and baths.



















































































































































































