$5,100
For Rent
Base rent only. For total monthly price and additional fees, see .
Rented 9/14/2020
- ft²
4 rooms
2 beds
2.5 baths
Condo
- Hell's Kitchen
Under NYC law, you can't be charged a broker fee if you didn't hire a broker.
Listed By
This home has been saved by 12 users.
Listing by Akam Sales and Brokerage, Corporate Broker, 99 Park Avenue, New York, NY 10016
Unavailable
Rented on 9/14/2020
Days on market
56 days
Last price change
↓ $300 (-5.6%) on 8/10/20
About
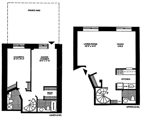
NO BROKER FEE! This is the perfect place to quarantine in! More photos coming soon... Enter this spacious duplex on the upper level, which features a galley kitchen with stainless appliances, a large living/dining combo, a half bath, and small balcony with stairs to the spacious patio/yard, which has just been re-done. Let Fido get some fresh air or relax with your laptop or a glass of wine in your own private oasis.
Policies
Pets allowed
Home features
Dishwasher
Hardwood floors
Private outdoor space
Balcony, Garden, Terrace
View
Garden
Building amenities
Services and facilities
Doorman
Virtual
Elevator
Laundry in building
Wellness and recreation
No info on wellness and recreation
Shared outdoor space
Courtyard
Roof deck
About the building
The Abbey
414 West 54th Street, New York, NY 10019
34 units
6 stories
1986 built
Property history
Prices shown are base rent only. For total monthly price and additional fees, see .
| Date | Base rent | Event |
|---|---|---|
9/14/2020 | $5,100 | Rented by Akam Sales and Brokerage |
8/10/2020 | $5,100 | Price decreased by 6% |
7/20/2020 | $5,400 | Listed by Akam Sales and Brokerage |
2/23/2012 | $4,900 | |
1/4/2012 | $4,900 |
Past listing photos
Sign in to take a closer look at how this home compares to similar homes.
Explore Hell's Kitchen
Transit
| Location | Distance |
|---|---|
ABCD1at 59th St–Columbus Circle | 0.26 miles |
CEat 50th St | 0.28 miles |
BDEat 7th Av | 0.36 miles |
1at 50th St | 0.39 miles |
NRWat 57th St–7th Av | 0.39 miles |
Similar homes
Prices shown are base rent only and don't include any fees. Visit each listing to see a complete cost breakdown.
Similar Homes looks at ad spend and other factors like location, price, and number of beds and baths.



























































































