$3,300
For Rent
Base rent only. For total monthly price and additional fees, see .
Rented 9/13/2023
- ft²
3 rooms
1 bed
1 bath
Three-family home
- Hunters Point
Under NYC law, you can't be charged a broker fee if you didn't hire a broker.
Listed By
This home has been saved by 31 users.
Listing by Corcoran, Limited Liability Broker, 47-34 Vernon Boulevard, Long Island City, NY 11101
Unavailable
Rented on 9/13/2023
Days on market
8 days
Last price change
↓ $200 (-5.7%) on 9/6/23
About
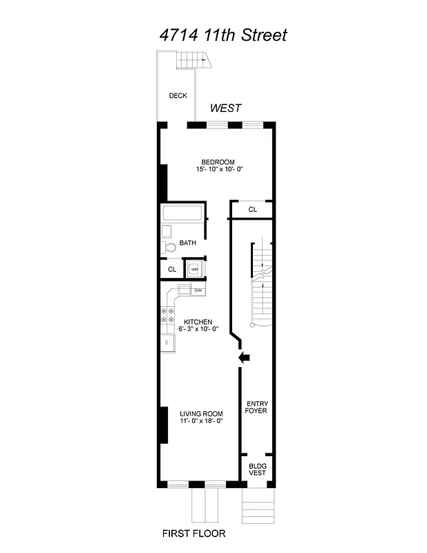
Residence number one, a renovated full floor one bedroom, one bath unit, with private outdoor space, and an in-unit LG washer/dryer, at The Angelia, 47-14 11th Street, in Long Island City.
Prewar details include high ceilings, exposed brick walls and double hung windows with traditional colonial grilles.
The front to back layout creates separation and privacy within the home where the living room is in the front and the bedroom is in the back.
Policies
Sorry, policy info isn’t available right now. Check back later.
Home features
Central air
Dishwasher
Fireplace
Decorative
Hardwood floors
Private outdoor space
Terrace
Washer/dryer
Building amenities
No info on building amenities
About the building
The Angelia
47-14 11th Street, Long Island City, NY 11101
3 units
3 stories
1901 built
Property history
Prices shown are base rent only. For total monthly price and additional fees, see .
| Date | Base rent | Event |
|---|---|---|
9/13/2023 | $3,300 | Rented by Corcoran |
9/9/2023 | $3,300 | In contract |
9/6/2023 | $3,300 | Price decreased by 6% |
9/6/2023 | $3,500 | Listed by Corcoran |
9/5/2023 | $3,500 | Temporarily off market |
Past listing photos
Sign in to take a closer look at how this home compares to similar homes.
Explore Hunters Point
Transit
| Location | Distance |
|---|---|
Gat 21st St | 0.11 miles |
7at Vernon Blvd–Jackson Av | 0.16 miles |
7at Hunters Point | 0.2 miles |
LIRRat Hunterspoint Avenue | 0.28 miles |
EGM7at 23rd St–Ely Av | 0.31 miles |
Similar homes
Prices shown are base rent only and don't include any fees. Visit each listing to see a complete cost breakdown.
Similar Homes looks at ad spend and other factors like location, price, and number of beds and baths.



































































































































































