2,350 ft²
$1,744 per ft²
7 rooms
3 beds
3 baths
Condo
- Upper West Side
recorded sale
Sold on 5/28/2015
Verified by closing records
Last listed for $4,390,000
Seller's agents
This home has been saved by 55 users.
Listing by Keller Williams NYC, Limited Liability Broker, 575 Fifth Avenue, New York, NY 10017 | Brokerage Listing ID: 77993
Common charges
$2,647/mo
Estimated payment
Taxes
$2,100/mo
Tax abatement
No info
About
Seller’s agent
Buyer’s agent
description
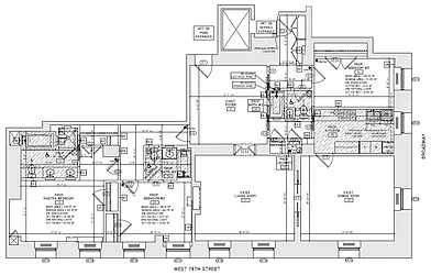
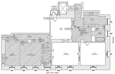
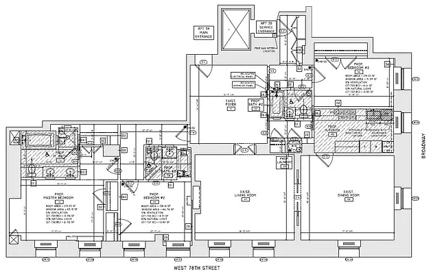
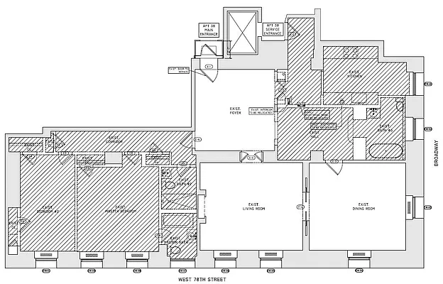
Introducing residence 3B at the iconic Apthorp; a majestic sun-drenched 3 bedroom home with tree-lined views from all windows and original details and soaring high ceilings throughout. Unique details such as marble mosaic entry foyer, oak herringbone floors, oversized windows, and hand crafted crown moldings, make this apartment an illustrious foundation for your dream home.
Policies
Pets allowed
Cats and dogs allowed
Home features
Dishwasher
Fireplace
Washer/dryer
Building amenities
Services and facilities
Bike room
Concierge
Doorman
Full-time
Elevator
Laundry in building
Live-in super
Parking
Garage
Storage space
Wellness and recreation
Children's playroom
Gym
Shared outdoor space
Courtyard
Deck
Roof deck
About the building
The Apthorp
390 West End Avenue, New York, NY 10024
154 units
12 stories
1908 built
For sale
6 available units for saleFor rent
2 available units for rentDocuments and permits
View documents and permitsProperty history
- Price Change: ↓ $300,000 (-6.4%) on 12/16/14
- Days on market: 293 daysThis is the number of days the listing has been on StreetEasy.
| Date | Price | Event |
|---|---|---|
5/22/2017 | $6,500,000 | |
5/28/2015 | $4,100,000 | Sold by Keller Williams NYC |
3/19/2015 | $4,390,000 | In contract |
12/16/2014 | $4,390,000 | Price decreased by 6% |
8/19/2014 | $4,690,000 | Price decreased by 5% |
Past listing photos
Sign in to take a closer look at how this home compares to similar homes.
Explore Upper West Side
Transit
| Location | Distance |
|---|---|
1at 79th St | under 500 feet |
123at 72nd St | 0.32 miles |
1at 86th St | 0.38 miles |
BCat 81st St–Museum of Natural History | 0.46 miles |
BCat 72nd St | 0.56 miles |
About Upper West Side
Rental prices shown are base rent before any fees. Visit listings for cost and fees breakdown.
SalesMedian asking price
3 beds
$2.75M
RentalsMedian asking base rent
3 beds
$9,261
Sandwiched between two beautiful parks, the Upper West Side is one of the greenest spots in Manhattan. For that reason, it is a perennial favorite. The Upper West Side is relaxed, but never dull. There are plenty of low-key bars and restaurants to frequent along Amsterdam Avenue, and Broadway is an always-bustling commercial center. The wide, tree-lined streets still boast many mom-and-pop stores. Less posh than the Upper East Side, it is more easily accessible by public transportation, and real estate prices are just as, if not more, expensive.
Learn more about Upper West Side





































































































































































