$5,295
For Rent
Base rent only. For total monthly price and additional fees, see .
No longer available 6/23/2023
810 ft²
$78 per ft²
3 rooms
1 bed
1 bath
Rental unit
- Yorkville
Under NYC law, you can't be charged a broker fee if you didn't hire a broker.
Listed By
Stonehenge NYC LLC
This home has been saved by 21 users.
Listing by Stonehenge NYC LLC, Limited Liability Broker | Brokerage Listing ID: 6301268
Unavailable
No longer available on 6/23/2023
Days on market
26 days
Last price change
No changes
About
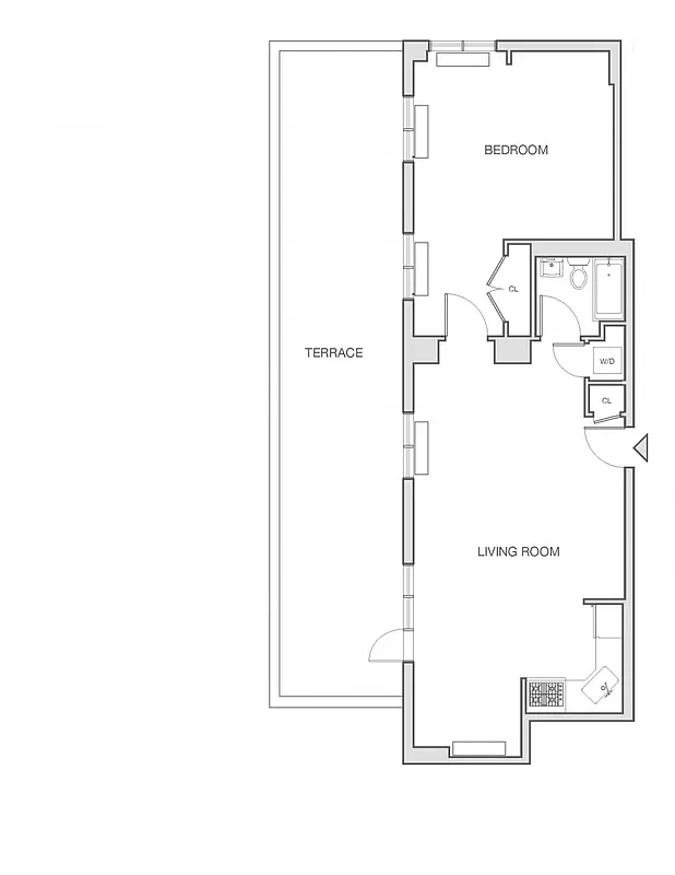
Large one bedroom apartment, open kitchen with island, large terrace, washer dryer and great closet space. Pictures are from a similar apartment. Please visit our website for real time availability and to book your tour: www.stonehengenyc.com
Policies
Pets allowed
Smoke-free
Home features
Dishwasher
Private outdoor space
Terrace
View
Water
Building amenities
Services and facilities
Doorman
Elevator
Laundry in building
Live-in super
Package room
Parking
Garage
Wheelchair access
Wellness and recreation
Gym
Shared outdoor space
Courtyard
Patio
About the building
The Cole by Stonehenge
354 East 91st Street, New York, NY 10128
163 units
22 stories
2002 built
Property history
Prices shown are base rent only. For total monthly price and additional fees, see .
| Date | Base rent | Event |
|---|---|---|
6/23/2023 | $5,295 | No longer available |
5/28/2023 | $5,295 | Listed by Stonehenge NYC LLC |
4/7/2016 | $4,310 | |
4/4/2016 | $4,310 | Price decreased by 1% |
3/29/2016 | $4,350 | Price decreased by 1% |
Past listing photos
Sign in to take a closer look at how this home compares to similar homes.
Explore Yorkville
Transit
| Location | Distance |
|---|---|
Qat 96th St | 0.17 miles |
Qat 86th St | 0.25 miles |
456at 86th St | 0.38 miles |
6at 96th St | 0.38 miles |
6at 103rd St | 0.67 miles |
About Yorkville
Rental prices shown are base rent before any fees. Visit listings for cost and fees breakdown.
SalesMedian asking price
1 bed
$699K
RentalsMedian asking base rent
1 bed
$4,000
When George Washington commandeered the building site that would eventually become Gracie Mansion, he probably didn't imagine that this peaceful, riverside enclave would become the lively residential neighborhood it is today. Between then and now, Yorkville has seen a lot of change. Tony mansions and elevated trains went up at the turn of the century and then came down in the postwar years as a middle-class population moved in.
Now, the neighborhood is a haven of high-rise co-ops and condos interspersed with quiet rows of townhouses. The mixed housing stock makes Yorkville a practical choice for anyone seeking a slowed-down Manhattan vibe. Several avenues over from the throngs of Lexington and Third Avenues, Yorkville maintains a low-key, no-frills feel — it's a place where you'll find more diners and donut shops than upscale lounges and boutiques. This homey attitude is writ in its storefronts, where the food is kept simple and the owners are often from around the block.
Similar homes
Prices shown are base rent only and don't include any fees. Visit each listing to see a complete cost breakdown.
Similar Homes looks at ad spend and other factors like location, price, and number of beds and baths.













































































































