- ft²
2 rooms
1 bed
1 bath
Co-op
- Turtle Bay
Resale
recorded sale
Sold on 11/20/2024
Verified by closing records
Last listed for $315,000
Seller's agent
This home has been saved by 89 users.
Listing by Brown Harris Stevens, Real Estate Principal Office, 1934 Broadway, New York, NY 10023
Maintenance fees
$966/mo
Estimated payment
$2,600/mo
Legal disclaimerAll calculations are estimates provided by StreetEasy for informational purposes only. Actual amounts or financing terms may vary. Please contact your mortgage provider for specifics.Taxes
Included in maintenance fees
Tax abatement
No info
About
Sellerâs agent
Buyerâs agent
description
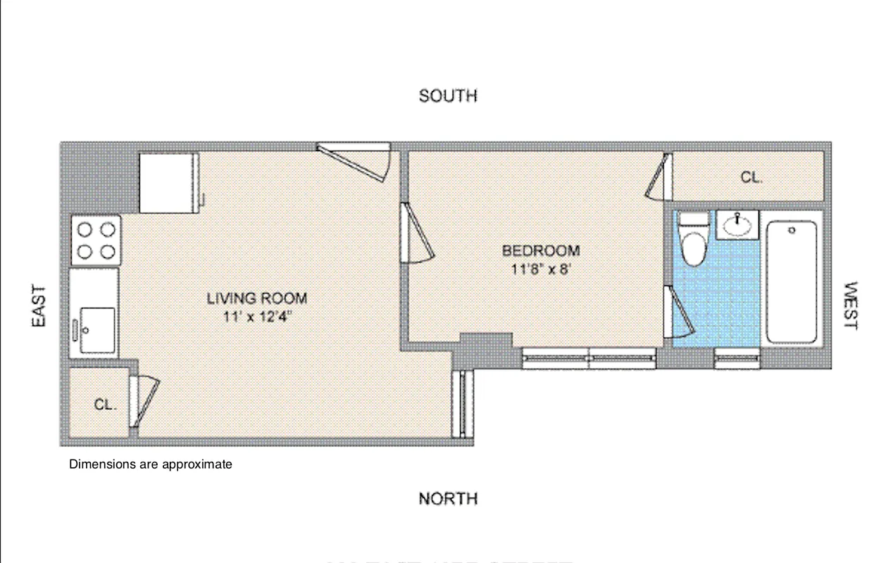
Tudor City Renovated 1-Bedroom in Doorman Bldg
Newly renovated and professionally designed 1-Bedroom, 1-Bathroom apartment in full-service boutique coop, at a price that makes more sense to buy than to rent.
Newly renovated white kitchen with stainless appliances.
Newly renovated white windowed bathroom.
Newly refinished hardwood floors and high beamed ceilings.
Policies
Co-purchase allowed
Gifts allowed
Guarantors accepted
Parents buying allowed
Pets allowed
Cats only (no dogs)
Pied-a-terre allowed
Sublets allowed
Home features
Hardwood floors
Building amenities
Services and facilities
Bike room
Doorman
Full-time
Elevator
Laundry in building
Wellness and recreation
Gym
Shared outdoor space
Roof deck
About the building
The Manor
333 East 43rd Street, New York, NY 10017
215 units
10 stories
1928 built
For sale
7 available units for saleFor rent
2 available units for rentDocuments and permits
View documents and permitsProperty history
- Price Change: No changes
- Days on market: 20 daysThis is the number of days the listing has been on StreetEasy.
| Date | Price | Event |
|---|---|---|
11/20/2024 | $315,000 | Sold by Brown Harris Stevens |
7/4/2024 | $315,000 | In contract |
6/14/2024 | $315,000 | Listed by Brown Harris Stevens |
12/14/2012 | $295,000 | |
12/14/2012 | $299,000 |
Past listing photos
Sign in to take a closer look at how this home compares to similar homes.
Explore Turtle Bay
Transit
| Location | Distance |
|---|---|
S4567at Grand Centralâ42nd St | 0.27 miles |
Ferryat E 34th Street Ferry Landing | 0.41 miles |
LIRRat Grand Central | 0.46 miles |
EM6at 51st St | 0.48 miles |
EM6at Lexington Avâ53rd St | 0.52 miles |























































































































