$6,700
For Rent
Base rent only. For total monthly price and additional fees, see .
Rented 11/11/2016
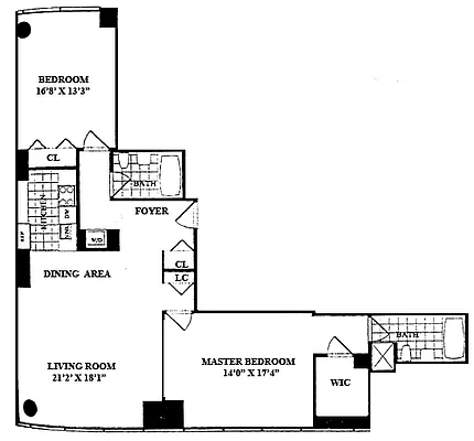
1,330 ft²
$60 per ft²
5 rooms
2 beds
2 baths
Condo
- Sutton Place
Under NYC law, you can't be charged a broker fee if you didn't hire a broker.
Listed By
This home has been saved by 21 users.
Listing by Lander Real Estate, Corporate Broker, 16 Madison Square West, New York, NY 10010 | Brokerage Listing ID: 1034
Unavailable
Rented on 11/11/2016
Days on market
65 days
Last price change
↓ $100 (-1.5%) on 10/1/16
About
Absolutely stunning sun drenched corner residence with unobstructed S/W Manhattan and River views. Bathe in Luxury, Mondrian is one of the most sought Full Service buildings in Midtown. This sprawling 1330 sq.ft. 2 Bedroom, 2 bath features 9' Floor to Ceiling Windows, beautiful hardwood floors throughout, renovated Windowed kitchen with new stainless steel appliances, Central A/C, new W/D in the apartment.
Policies
Pets allowed
Cats and dogs allowed
Home features
Central air
Dishwasher
Washer/dryer
Building amenities
Services and facilities
Concierge
Doorman
Full-time
Elevator
Laundry in building
Live-in super
Parking
Garage
Wellness and recreation
Gym
Shared outdoor space
No info on shared outdoor space
About the building
The Mondrian
250 East 54th Street, New York, NY 10022
174 units
43 stories
1990 built
Property history
Prices shown are base rent only. For total monthly price and additional fees, see .
| Date | Base rent | Event |
|---|---|---|
11/11/2016 | $6,700 | Rented by Lander Real Estate |
10/1/2016 | $6,700 | Price decreased by 1% |
9/7/2016 | $6,800 | Listed by Lander Real Estate |
Past listing photos
Sign in to take a closer look at how this home compares to similar homes.
Explore Sutton Place
Transit
| Location | Distance |
|---|---|
EM6at Lexington Av–53rd St | 0.1 miles |
EM6at 51st St | 0.23 miles |
NRW456at Lexington Av/59th St | 0.33 miles |
EMat 5th Av–53rd St | 0.39 miles |
LIRRat Grand Central | 0.46 miles |
Similar homes
Prices shown are base rent only and don't include any fees. Visit each listing to see a complete cost breakdown.
Similar Homes looks at ad spend and other factors like location, price, and number of beds and baths.

































































































