View this home virtually
- ft²
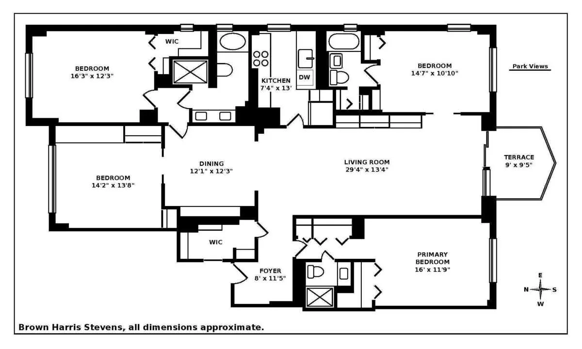
7 rooms
4 beds
3 baths
Co-op
- Lincoln Square
Resale
recorded sale
Sold on 8/10/2023
Verified by closing records
Last listed for $3,495,000
Seller's agents
This home has been saved by 29 users.
Listing by Brown Harris Stevens, Real Estate Principal Office, 1934 Broadway, New York, NY 10023
Maintenance fees
$4,447/mo
Estimated payment
Taxes
Included in maintenance fees
Tax abatement
No info
About
Seller’s agent
description
The A and K lines, two of the most coveted in the building, have been combined and impeccably renovated to create this gorgeous 4 bedroom 3 bath apartment. This rarely available combination spans the entire eastern side of the building and is ideally situated to maximize sun and light throughout the entire day from every window of this double corner apartment with east, south and north exposures.
Policies
Co-purchase allowed
Gifts allowed
Pets allowed
Cats and dogs allowed
Pied-a-terre allowed
Home features
Dishwasher
Hardwood floors
Private outdoor space
Balcony
View
Park, Skyline
Building amenities
Services and facilities
Bike room
Concierge
Doorman
Full-time
Elevator
Live-in super
Package room
Parking
Garage
Wellness and recreation
Children's playroom
Gym
Shared outdoor space
Roof deck
About the building
The Park Ten
10 West 66th Street, New York, NY 10023
274 units
32 stories
1969 built
For sale
7 available units for saleFor rent
0 available units for rentDocuments and permits
View documents and permitsProperty history
- Price Change: No changes
- Days on market: 35 daysThis is the number of days the listing has been on StreetEasy.
| Date | Price | Event |
|---|---|---|
8/10/2023 | $3,350,000 | Sold by Brown Harris Stevens |
5/8/2023 | $3,495,000 | In contract |
4/3/2023 | $3,495,000 | Listed by Brown Harris Stevens |
3/8/2023 | $3,595,000 | |
11/8/2022 | $3,595,000 |
Past listing photos
Sign in to take a closer look at how this home compares to similar homes.
Explore Lincoln Square
Transit
| Location | Distance |
|---|---|
1at 66th St–Lincoln Center | 0.14 miles |
BCat 72nd St | 0.22 miles |
ABCD1at 59th St–Columbus Circle | 0.25 miles |
123at 72nd St | 0.44 miles |
NRWat 57th St–7th Av | 0.46 miles |
About Lincoln Square
Rental prices shown are base rent before any fees. Visit listings for cost and fees breakdown.
SalesMedian asking price
4 beds
$7.3M
RentalsMedian asking base rent
4 beds
$26,550
Named after and defined by the Lincoln Center for the Performing Arts, Lincoln Square is home to the New York Philharmonic, the New York City Ballet and the Metropolitan Opera, among many other cultural institutions. The neighborhood blends the prewar architecture and and style of the Upper West Side with modern, tall residential buildings. Great subway access at Columbus Circle and proximity to Midtown make this neighborhood popular with those looking to be in the center of it all.
Learn more about Lincoln Square


















































































































































