$5,199
For Rent
Base rent only. For total monthly price and additional fees, see .
Rented 9/13/2025
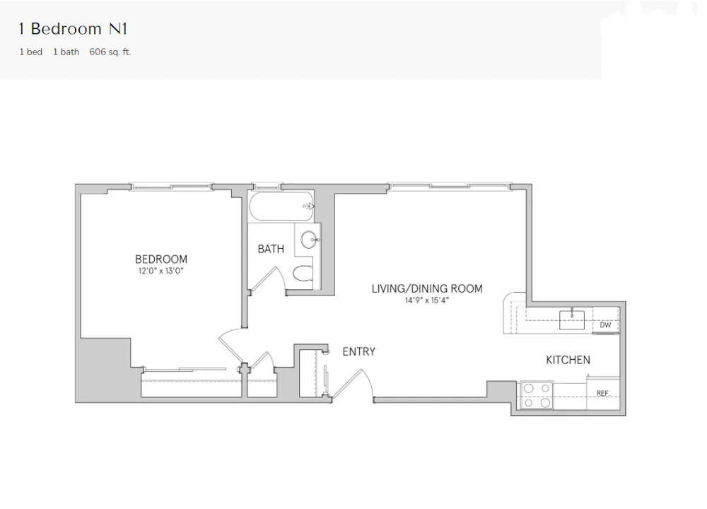
606 ft²
$102 per ft²
4 rooms
1 bed
1 bath
Rental unit
- Upper West Side
Under NYC law, you can't be charged a broker fee if you didn't hire a broker.
Listed By
The Sagamore Leasing Team
Greystar
This home has been saved by 4 users.
Listing by Greystar | Brokerage Listing ID: 5283989
Unavailable
Rented on 9/13/2025
Days on market
3 days
Last price change
No changes
About
Price shown is Base Rent. Residents are required to pay: At Application: Application Fee($20.00/applicant, Nonrefundable); At Move-in: Security Deposit-Other (Refundable)(100.00%/unit); Monthly: Electric-3rd Party(Usage-Based, Refundable); Per Lease: Community Amenity Fee($600.00/unit). Please visit the property website for a full list of all optional and situational fees. Floor plans are artist's rendering.
Policies
Pets allowed
Smoke-free
Home features
Dishwasher
Building amenities
Services and facilities
Concierge
Doorman
Elevator
Laundry in building
Live-in super
Parking
Storage space
Wellness and recreation
Children's playroom
Gym
Media room
Shared outdoor space
Roof deck
About the building
The Sagamore
189 West 89th Street, New York, NY 10024
265 units
18 stories
1997 built
Property history
Prices shown are base rent only. For total monthly price and additional fees, see .
| Date | Base rent | Event |
|---|---|---|
9/13/2025 | $5,199 | Rented by Greystar |
9/10/2025 | $5,199 | Listed by Greystar |
4/10/2024 | $4,643 | |
3/24/2024 | $4,643 | Price decreased by 3% |
3/16/2024 | $4,799 | Price decreased by 1% |
Past listing photos
Sign in to take a closer look at how this home compares to similar homes.
Explore Upper West Side
Transit
| Location | Distance |
|---|---|
1at 86th St | 0.17 miles |
123at 96th St | 0.23 miles |
BCat 86th St | 0.32 miles |
BCat 96th St | 0.45 miles |
BCat 81st St–Museum of Natural History | 0.51 miles |
About Upper West Side
Rental prices shown are base rent before any fees. Visit listings for cost and fees breakdown.
SalesMedian asking price
1 bed
$795K
RentalsMedian asking base rent
1 bed
$4,500
Sandwiched between two beautiful parks, the Upper West Side is one of the greenest spots in Manhattan. For that reason, it is a perennial favorite. The Upper West Side is relaxed, but never dull. There are plenty of low-key bars and restaurants to frequent along Amsterdam Avenue, and Broadway is an always-bustling commercial center. The wide, tree-lined streets still boast many mom-and-pop stores. Less posh than the Upper East Side, it is more easily accessible by public transportation, and real estate prices are just as, if not more, expensive.
Learn more about Upper West SideSimilar homes
Prices shown are base rent only and don't include any fees. Visit each listing to see a complete cost breakdown.
Similar Homes looks at ad spend and other factors like location, price, and number of beds and baths.
























































































