1,404 ft²
$1,228 per ft²
5 rooms
3 beds
2 baths
Co-op
- Upper West Side
Resale
recorded sale
Sold on 10/19/2022
Verified by closing records
Last listed for $1,849,000
Seller's agent
This home has been saved by 117 users.
Listing by The Agency, Real Estate Principal Office, 372 West Broadway, New York, NY 10012
Maintenance fees
$2,600/mo
Estimated payment
$11,980/mo
Legal disclaimerAll calculations are estimates provided by StreetEasy for informational purposes only. Actual amounts or financing terms may vary. Please contact your mortgage provider for specifics.Taxes
Included in maintenance fees
Tax abatement
No info
About
Seller’s agent
Buyer’s agent
description
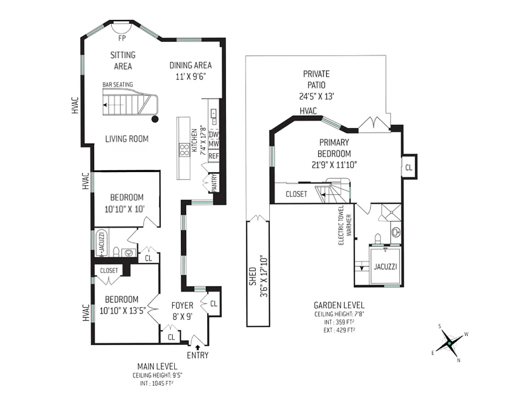
This is not your everyday home. Through French doors, you have access to a magical outdoor patio with wood fencing and trellis, blue stone tiled floor and access to both water and electricity. An unexpected bonus is a fifty-four (54 sq. ft.) square foot storage shed. Phantom retractable screen door included.
Convertible three-bedroom duplex with modern finishes is waiting for you. Please see alternate floorplan.
Policies
Pets allowed
Cats and dogs allowed
Home features
Central air
Dishwasher
Fireplace
Decorative
Hardwood floors
Private outdoor space
Garden
View
Garden
Building amenities
Services and facilities
Bike room
Concierge
Doorman
Full-time
Elevator
Laundry in building
Live-in super
Storage space
Locker/cage
Wellness and recreation
No info on wellness and recreation
Shared outdoor space
Courtyard
About the building
The Schuyler Arms
305 West 98th Street, New York, NY 10025
88 units
7 stories
1930 built
For sale
2 available units for saleFor rent
0 available units for rentDocuments and permits
View documents and permitsProperty history
- Price Change: ↓ $51,000 (-2.7%) on 4/21/22
- Days on market: 0 daysThis is the number of days the listing has been on StreetEasy.
| Date | Price | Event |
|---|---|---|
10/19/2022 | $1,725,000 | Sold by The Agency |
7/21/2022 | $1,849,000 | In contract |
4/21/2022 | $1,849,000 | Price decreased by 3% |
3/7/2022 | $1,900,000 | Listed by The Agency |
Past listing photos
Sign in to take a closer look at how this home compares to similar homes.
Explore Upper West Side
Transit
| Location | Distance |
|---|---|
123at 96th St | 0.19 miles |
1at 103rd St | 0.25 miles |
BCat 96th St | 0.53 miles |
1at Cathedral Parkway–110th St | 0.57 miles |
BCat 103rd St | 0.58 miles |
About Upper West Side
Rental prices shown are base rent before any fees. Visit listings for cost and fees breakdown.
SalesMedian asking price
3 beds
$3M
RentalsMedian asking base rent
3 beds
$8,450
Sandwiched between two beautiful parks, the Upper West Side is one of the greenest spots in Manhattan. For that reason, it is a perennial favorite. The Upper West Side is relaxed, but never dull. There are plenty of low-key bars and restaurants to frequent along Amsterdam Avenue, and Broadway is an always-bustling commercial center. The wide, tree-lined streets still boast many mom-and-pop stores. Less posh than the Upper East Side, it is more easily accessible by public transportation, and real estate prices are just as, if not more, expensive.
Learn more about Upper West Side


























































































