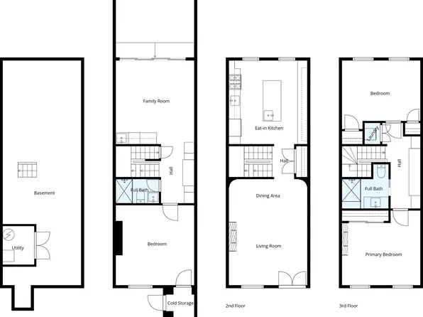
1,849 ft²
$1,890 per ft²
5 rooms
3 beds
2.5 baths
Condo
- Chelsea
Resale
reported sale
Sold on 9/17/2024
Not yet verified by closing records
Seller's agents
This home has been saved by 15 users.
Listing by Compass, Corporate Broker, 110 5th Avenue, New York, NY 10011
Common charges
$2,593/mo
Estimated payment
$23,881/mo
Legal disclaimerAll calculations are estimates provided by StreetEasy for informational purposes only. Actual amounts or financing terms may vary. Please contact your mortgage provider for specifics.Taxes
$3,569/mo
Tax abatement
No info
About
Seller’s agent
description
Welcome home to your beautiful 3 bedroom 2.5 bathroom condo in the heart of Chelsea. Spanning 1,879 square feet, this residence receives an abundance of natural light streaming through its floor-to-ceiling windows.
The south facing living room is perfect for entertaining as the living and dining spaces seamlessly blend into the chef’s kitchen.
Policies
Pets allowed
Cats and dogs allowed
Home features
Central air
Dishwasher
Hardwood floors
View
City
Washer/dryer
Building amenities
Services and facilities
Concierge
Doorman
Full-time
Elevator
Laundry in building
Storage space
Wellness and recreation
Gym
Shared outdoor space
Garden
Roof deck
About the building
The Seymour
261 West 25th Street, New York, NY 10001
49 units
12 stories
2015 built
For sale
1 available units for saleFor rent
0 available units for rentDocuments and permits
View documents and permitsProperty history
- Price Change: ↓ $200,000 (-5.4%) on 5/31/24
- Days on market: 80 daysThis is the number of days the listing has been on StreetEasy.
| Date | Price | Event |
|---|---|---|
9/17/2024 | $3,495,000 | Sold by Compass |
7/8/2024 | $3,495,000 | In contract |
5/31/2024 | $3,495,000 | Price decreased by 5% |
4/19/2024 | $3,695,000 | Listed by Compass |
8/27/2024 | $3,337,500 |
Past listing photos
Sign in to take a closer look at how this home compares to similar homes.
Explore Chelsea
Transit
| Location | Distance |
|---|---|
CEat 23rd St | under 500 feet |
1at 23rd St | 0.16 miles |
1at 28th St | 0.17 miles |
FMat 23rd St | 0.3 miles |
PATHat 23rd Street Station | 0.32 miles |
About Chelsea
Rental prices shown are base rent before any fees. Visit listings for cost and fees breakdown.
SalesMedian asking price
3 beds
$3.45M
RentalsMedian asking base rent
3 beds
$7,995
If you're looking for a staid, quiet place to live, Chelsea is not for you. Its thriving arts scene has always been a big draw for creative types. Not surprisingly, residents pay a high price to live in such a hip and happening part of Manhattan. The neighborhood has some of the most exclusive restaurants and bars in the city, and real estate prices are steep — especially for new condos along the High Line.
Slip down many of the side streets, however, and you're likely to find some beautiful and historic townhouses nestled gracefully within the neighborhood's hustle and bustle.






















































































































































