$3,200
For Rent
Base rent only. For total monthly price and additional fees, see .
$2,954 net effective base rent
1 month free
13-month lease
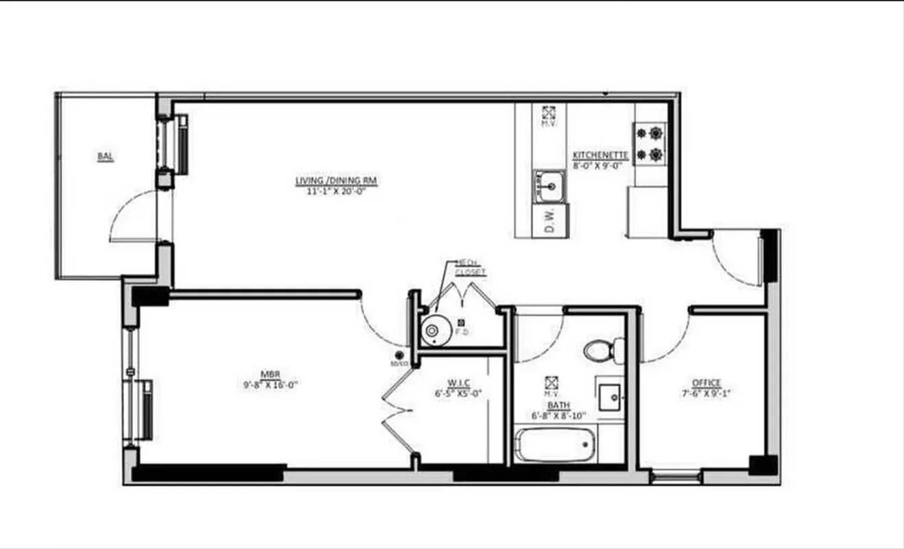
- ft²
4 rooms
2 beds
1 bath
Rental unit
- Brighton Beach
Under NYC law, you can't be charged a broker fee if you didn't hire a broker.
Listed By
This home has been saved by 4 users.
Listing by Reavis, Limited Liability Broker
Available
Available now
Days on market
17 days
Last price change
No changes
About
Welcome to Apartment 5A at 2733 East 12th Street, a bright and spacious residence located on a quiet, tree-lined block in the heart of Sheepshead Bay.
This thoughtfully designed unit features:
⢠2 Bedrooms / 1 Bathroom
⢠A sun-drenched living room with large windows and hardwood flooring
⢠A modern kitchen with ample cabinet space, sleek countertops, and full-sized appliances
⢠Generously sized bedrooms...
Policies
Pets allowed
Home features
Central air
Dishwasher
Hardwood floors
Private outdoor space
Balcony, Roof rights, Terrace
Building amenities
Services and facilities
Bike room
Doorman
Virtual
Elevator
Laundry in building
Live-in super
Package room
Parking
Garage
Wheelchair access
Wellness and recreation
Gym
Shared outdoor space
Courtyard
Roof deck
About the building
The Shore Brooklyn
2733 East 12th Street, Brooklyn, NY 11235
45 units
7 stories
2022 built
Property history
Prices shown are base rent only. For total monthly price and additional fees, see .
| Date | Base rent | Event |
|---|---|---|
12/31/2025 | $3,200 | Listed by Reavis |
4/25/2023 | $3,250 | |
4/4/2023 | $3,250 | Price increased by 3% |
4/3/2023 | $3,150 | Price increased by 2% |
3/22/2023 | $3,100 | Price increased by 0% |
Past listing photos
Sign in to take a closer look at how this home compares to similar homes.
Explore Brighton Beach
Transit
| Location | Distance |
|---|---|
BQat Sheepshead Bay | 0.16 miles |
BQat Brighton Beach | 0.49 miles |
BQat Neck Rd | 0.72 miles |
Qat Ocean Parkway | 0.79 miles |
Fat Neptune AvâVan Siclen | 0.96 miles |
Similar homes
Prices shown are base rent only and don't include any fees. Visit each listing to see a complete cost breakdown.
Similar Homes looks at ad spend and other factors like location, price, and number of beds and baths.



























































































