2,663 ft²
$2,102 per ft²
7 rooms
3 beds
2.5 baths
Condo
- Tribeca
Resale
reported sale
Sold on 7/3/2025
Not yet verified by closing records
Seller's agents
This home has been saved by 38 users.
Listing by Compass, Corporate Broker, 110 5th Avenue, New York, NY 10011
Common charges
$4,944/mo
Estimated payment
$41,245/mo
Legal disclaimerAll calculations are estimates provided by StreetEasy for informational purposes only. Actual amounts or financing terms may vary. Please contact your mortgage provider for specifics.Taxes
$3,360/mo
Tax abatement
No info
About
Seller’s agent
description
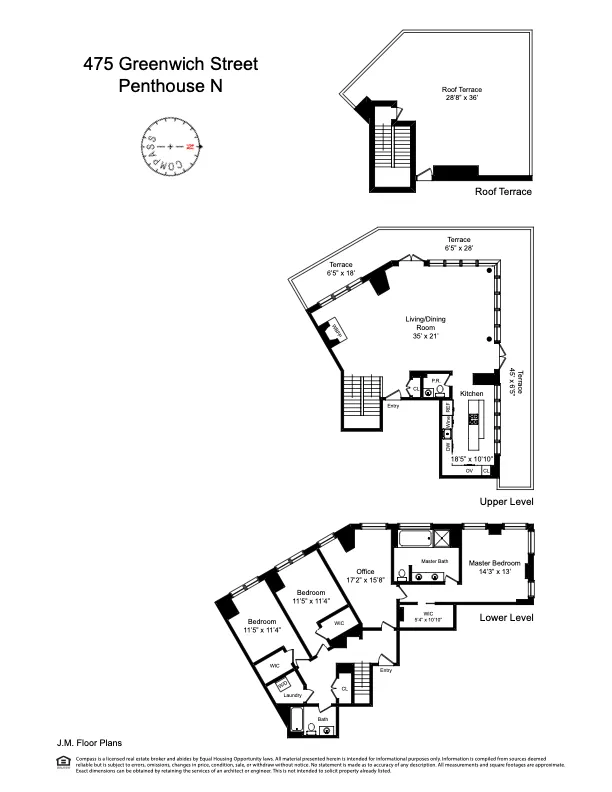
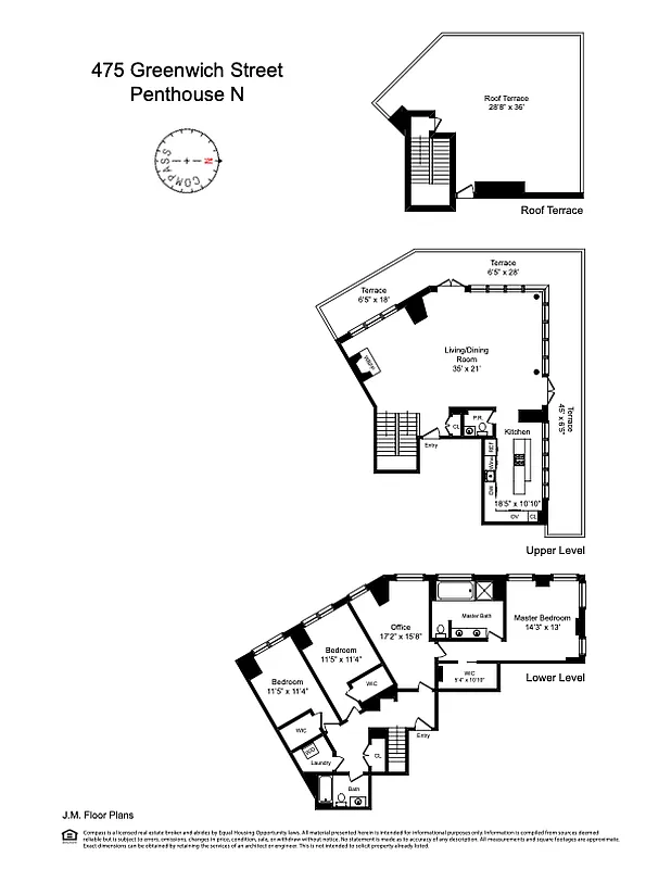
Breathtaking duplex penthouse in a full-service condominium in prime western Tribeca, featuring 3 bedrooms, 2.5 baths, a spacious wraparound terrace, in addition to an expansive private rooftop terrace and a large storage room. This remarkable home seamlessly blends indoor and outdoor living, offering an extraordinary setting for both grand-scale entertaining and peaceful retreat.
Policies
Sorry, policy info isn’t available right now. Check back later.
Home features
Central air
Dishwasher
Fireplace
Hardwood floors
Private outdoor space
Roof deck, Terrace
View
City, Skyline, Water
Washer/dryer
Building amenities
Services and facilities
Bike room
Concierge
Doorman
Full-time
Elevator
Laundry in building
Package room
Storage space
Locker/cage
Wellness and recreation
Gym
Shared outdoor space
No info on shared outdoor space
About the building
The Zinc Building
475 Greenwich Street, New York, NY 10013
21 units
7 stories
2008 built
For sale
1 available units for saleFor rent
0 available units for rentDocuments and permits
View documents and permitsProperty history
- Price Change: No changes
- Days on market: 21 daysThis is the number of days the listing has been on StreetEasy.
| Date | Price | Event |
|---|---|---|
7/3/2025 | $5,600,000 | Sold by Compass |
4/9/2025 | $5,600,000 | In contract |
3/19/2025 | $5,600,000 | Listed by Compass |
Past listing photos
Sign in to take a closer look at how this home compares to similar homes.
Explore Tribeca
Transit
| Location | Distance |
|---|---|
1at Canal St | 0.16 miles |
ACEat Canal St | 0.26 miles |
CEat Spring St | 0.27 miles |
1at Houston St | 0.31 miles |
1at Franklin St | 0.37 miles |
About Tribeca
Rental prices shown are base rent before any fees. Visit listings for cost and fees breakdown.
SalesMedian asking price
3 beds
$5M
RentalsMedian asking base rent
3 beds
$18,247
Tribeca is an upscale neighborhood known for high-end real estate and well-heeled residents — a downtown haven for European cars and pedigreed dogs. It's also a truly gorgeous area that mixes glorious old cast-iron lofts, wide cobblestone streets, and dramatic new buildings. Decades ago, these lofts housed artists and squatters. But the bohemians have given way to cool-seekers with bigger bank accounts. Now, this neighborhood is among the most expensive places to live in the city. That hasn't cost the neighborhood much of its sophistication, though. Nightlife in Tribeca remains busy but refined, attracting a cosmopolitan crowd with an appreciation for the finer things in life.
Learn more about Tribeca













































































































































































