$269,000
For Sale
No longer available 2/5/2024
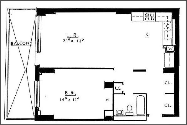
775 ft²
$347 per ft²
2 rooms
1 bed
1 bath
Co-op
- Union City
Seller's agent
Hudson View Realty LLC
This home has been saved by 36 users.
Listing by Hudson View Realty LLC | MLS #: 230013651
Maintenance fees
$1,468/mo
Estimated payment
$2,875/mo
Legal disclaimerAll calculations are estimates provided by StreetEasy for informational purposes only. Actual amounts or financing terms may vary. Please contact your mortgage provider for specifics.Taxes
Included in maintenance fees
Tax abatement
No info
About
Seller’s agent
description
Large, lovely, sun-flooded unit one of the larger one-bedroom layouts in Troy Towers. Beautifully renovated with enlarged kitchen featuring stylish gray shaker cabinets, white quartz counters and striking stainless steel island. Easy-care "wood look" porcelain tile floors grace throughout; open "great room" layout provides excellent light and airy feel, plus loads of closets.
Policies
Sorry, policy info isn’t available right now. Check back later.
Home features
Central air
Dishwasher
Private outdoor space
Terrace
Building amenities
Services and facilities
Bike room
Concierge
Doorman
Elevator
Laundry in building
Parking
Assigned, Garage
Storage space
Wellness and recreation
Gym
Swimming pool
Shared outdoor space
Courtyard
Deck
Garden
About the building
Troy Towers
380 Mountain Road, Union City, NJ 07087
315 units
22 stories
1966 built
Property history
- Price Change: ↓ $10,000 (-3.6%) on 11/16/23
- Days on market: 174 daysThis is the number of days the listing has been on StreetEasy.
| Date | Price | Event |
|---|---|---|
2/5/2024 | $269,000 | No longer available |
11/16/2023 | $269,000 | Price decreased by 4% |
8/15/2023 | $279,000 | Listed by Hudson View Realty LLC |
Sign in to take a closer look at how this home compares to similar homes.
Explore Union City
Transit
| Location | Distance |
|---|---|
HBLRat Lincoln Harbor | 0.25 miles |
HBLRat 9th Street/Congress St | 0.98 miles |
HBLRat Port Imperial | 1.28 miles |
HBLRat Bergenline Ave | 1.47 miles |
HBLRat 2nd Street | 1.58 miles |




















































































































































































