$3,400
For Rent
Base rent only. For total monthly price and additional fees, see .
Rented 8/6/2025
- ft²
1 room
Studio
1 bath
Condo
- Central Park South
Under NYC law, you can't be charged a broker fee if you didn't hire a broker.
Listed By
This home has been saved by 39 users.
Listing by Keller Williams Realty Gold Coast, Limited Liability Broker, 1129 Northern Boulevard, Manhasset, NY 11030
Unavailable
Rented on 8/6/2025
Days on market
23 days
Last price change
No changes
About
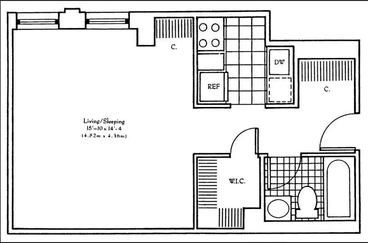
Welcome to Residence 6E at the iconic 106 Central Park South, a bright, freshly updated studio in one of Manhattan’s most desirable full-service condominium buildings. This generously proportioned home features brand new wide-plank floors, painted walls, and an expansive layout easily accommodating distinct living, dining, and sleeping areas. Oversized windows provide soft natural light while maintaining privacy from the building’s courtyard exposure.
Policies
Sorry, policy info isn’t available right now. Check back later.
Home features
Central air
Dishwasher
Hardwood floors
Building amenities
Services and facilities
Concierge
Doorman
Full-time
Elevator
Laundry in building
Live-in super
Parking
Valet
Wellness and recreation
No info on wellness and recreation
Shared outdoor space
No info on shared outdoor space
About the building
Trump Parc
106 Central Park South, New York, NY 10019
414 units
37 stories
1930 built
Property history
Prices shown are base rent only. For total monthly price and additional fees, see .
| Date | Base rent | Event |
|---|---|---|
8/6/2025 | $3,400 | Rented by Keller Williams Realty Gold Coast |
7/14/2025 | $3,400 | Listed by Keller Williams Realty Gold Coast |
1/31/2023 | $2,400 | |
1/30/2023 | $2,400 | |
12/10/2020 | $1,900 |
Past listing photos
Sign in to take a closer look at how this home compares to similar homes.
Explore Central Park South
Transit
| Location | Distance |
|---|---|
Fat 57th St | under 500 feet |
NRat 59th St | 0.15 miles |
NRWat 57th St–7th Av | 0.15 miles |
ABCD1at 59th St–Columbus Circle | 0.3 miles |
BDEat 7th Av | 0.31 miles |
Similar homes
Prices shown are base rent only and don't include any fees. Visit each listing to see a complete cost breakdown.
Similar Homes looks at ad spend and other factors like location, price, and number of beds and baths.
































































