- ft²
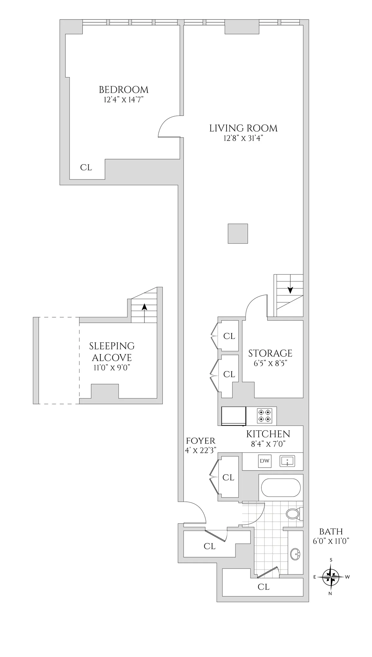
4 rooms
2 beds
1 bath
Condop
- Turtle Bay
Resale
recorded sale
Sold on 7/20/2021
Verified by closing records
Last listed for $899,000
Seller's agent
This home has been saved by 31 users.
Listing by Sotheby's International Realty, Corporate Broker, 650 Madison Avenue, New York, NY 10022
Maintenance fees
$1,889/mo
Estimated payment
$7,177/mo
Legal disclaimerAll calculations are estimates provided by StreetEasy for informational purposes only. Actual amounts or financing terms may vary. Please contact your mortgage provider for specifics.Taxes
Included in maintenance fees
Tax abatement
No info
About
Seller’s agent
Buyer’s agent
description
A special find in Midtown East. This gracious one bedroom residence with standing sleep loft features soaring 12.5 foot pre-war beamed ceilings and a span of oversized Southern exposure windows providing the open feeling of space that loft buyers love.
This well proportioned apartment brilliantly maximizes the floorplan from the dramatic living, dining and working area, to the spacious primary bedroom.
Policies
Pets allowed
Cats and dogs allowed
Home features
Dishwasher
Hardwood floors
View
City, Skyline
Building amenities
Services and facilities
Bike room
Doorman
Full-time
Elevator
Laundry in building
Live-in super
Wellness and recreation
No info on wellness and recreation
Shared outdoor space
Roof deck
About the building
Turtle Bay Towers
310 East 46th Street, New York, NY 10017
338 units
27 stories
1929 built
For sale
9 available units for saleFor rent
7 available units for rentDocuments and permits
View documents and permitsProperty history
- Price Change: No changes
- Days on market: 40 daysThis is the number of days the listing has been on StreetEasy.
| Date | Price | Event |
|---|---|---|
7/20/2021 | $850,000 | Sold by Sotheby's International Realty |
4/26/2021 | $899,000 | In contract |
3/17/2021 | $899,000 | Listed by Sotheby's International Realty |
8/31/2011 | $600,000 | |
9/8/2011 | $649,000 |
Past listing photos
Sign in to take a closer look at how this home compares to similar homes.
Explore Turtle Bay
Transit
| Location | Distance |
|---|---|
S4567at Grand Central–42nd St | 0.28 miles |
EM6at 51st St | 0.36 miles |
LIRRat Grand Central | 0.37 miles |
EM6at Lexington Av–53rd St | 0.39 miles |
Ferryat E 34th Street Ferry Landing | 0.53 miles |























































































































