- ft²
3 rooms
1 bed
1 bath
Condop
- Turtle Bay
Resale
reported sale
Sold on 9/4/2019
Not yet verified by closing records
Seller's agents
This home has been saved by 30 users.
Listing by Compass, Corporate Broker, 110 5th Avenue, New York, NY 10011
Maintenance fees
$1,504/mo
Estimated payment
$5,798/mo
Legal disclaimerAll calculations are estimates provided by StreetEasy for informational purposes only. Actual amounts or financing terms may vary. Please contact your mortgage provider for specifics.Taxes
Included in maintenance fees
Tax abatement
No info
About
Seller’s agent
description
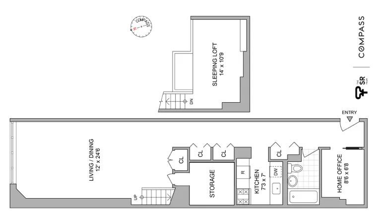
Soho Living in Midtown. *This apartment has two sleeping areas*. The first sleeping area is a glass-enclosed loft that holds a queen-size bed plus has storage above, below, and in front of the loft. The second sleeping area can be used as an office/den or a baby's room. The kitchen and bathroom have been updated.
Policies
Pets allowed
Cats and dogs allowed
Home features
Central air
Dishwasher
Building amenities
Services and facilities
Bike room
Concierge
Doorman
Full-time
Elevator
Laundry in building
Live-in super
Parking
Garage
Wellness and recreation
No info on wellness and recreation
Shared outdoor space
Roof deck
About the building
Turtle Bay Towers
310 East 46th Street, New York, NY 10017
338 units
27 stories
1929 built
For sale
9 available units for saleFor rent
7 available units for rentDocuments and permits
View documents and permitsProperty history
- Price Change: ↓ $35,000 (-4.6%) on 9/4/19
- Days on market: 51 daysThis is the number of days the listing has been on StreetEasy.
| Date | Price | Event |
|---|---|---|
4/15/2021 | $730,000 | Sold by Compass |
9/4/2019 | $730,000 | No longer available |
9/4/2019 | $730,000 | Price decreased by 5% |
7/15/2019 | $765,000 | Listed by Compass |
Past listing photos
Sign in to take a closer look at how this home compares to similar homes.
Explore Turtle Bay
Transit
| Location | Distance |
|---|---|
S4567at Grand Central–42nd St | 0.28 miles |
EM6at 51st St | 0.36 miles |
LIRRat Grand Central | 0.37 miles |
EM6at Lexington Av–53rd St | 0.39 miles |
Ferryat E 34th Street Ferry Landing | 0.53 miles |






































































































































