Skip Navigation
StreetEasy Logo

$3,200

For Rent

Base rent only. For total monthly price and additional fees, see .

No longer available 1/25/2024

$2,987 net effective base rent

1 month free

15-month lease

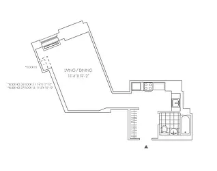
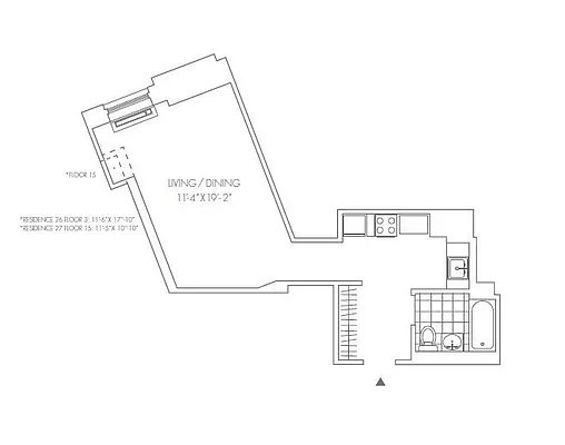
470 ft²

$81 per ft²

2 rooms

Studio

1 bath

Under NYC law, you can't be charged a broker fee if you didn't hire a broker.

Learn more

Listed By

20 Exchange Place

Rose Associates, Inc.

WANT TO STAY UPDATED?Save this home for email and push notifications on price and more.

This home has been saved by 31 users.

Listing by Rose Associates, Inc. | Brokerage Listing ID: 6153450502

Unavailable

No longer available on 1/25/2024

Days on market

162 days

Last price change

↓ $200 (-5.9%) on 1/20/24

About

1 MONTH OP AND 1 MONTH FREE ON A 15-MONTH LEASE

Starting at $3200
Historically the City Bank-Farmers Trust Building, Twenty Exchange, one of New York City's most iconic towers has been reborn as a landmarked luxury property. 20 Exchange Place, designed by Cross & Cross, was constructed in 1931 as the City Bank Farmers Trust Building.

Policies

  • Guarantors accepted

  • Pets allowed

  • Pied-a-terre allowed

  • Smoke-free

  • Sublets allowed

Home features

  • Dishwasher

Building amenities

Services and facilities

  • Bike room

  • Concierge

  • Doorman

    Full-time

  • Elevator

  • Laundry in building

  • Live-in super

  • Package room

  • Storage space

  • Valet service

  • Wheelchair access

Wellness and recreation

  • Gym

  • Media room

Shared outdoor space

  • Deck

  • Roof deck

About the building

Twenty Exchange

20 Exchange Place, New York, NY 10005

Rental building inFinancial District

762 units

57 stories

1931 built

Property history

Prices shown are base rent only. For total monthly price and additional fees, see .

DateBase rentEvent

1/25/2024

$3,200

No longer available

1/20/2024

$3,200

Price decreased by 6%

12/8/2023

$3,400

Price decreased by 10%

9/30/2023

$3,785

Price increased by 3%

8/16/2023

$3,680

Listed by Rose Associates, Inc.

Past listing photos

Sign in to take a closer look at how this home compares to similar homes.

Explore Financial District

Transit

LocationDistance

23at Wall St

under 500 feet

JZat Broad St

under 500 feet

45at Wall St

0.17 miles

Ferryat Pier 11 Ferry Landing

0.19 miles

RW1at Whitehall St

0.2 miles

About Financial District

Rental prices shown are base rent before any fees. Visit listings for cost and fees breakdown.

SalesMedian asking price

Studio

$699.5K

RentalsMedian asking base rent

Studio

$3,950

During the day, the Financial District can be chaotic with an influx of office workers and tourists attracted to the many historical sites, museums, and phenomenal views the neighborhood offers. After the workday crowds clear, the neighborhood becomes quiet and calm. Nightlife is confined to a few small areas, as most residents return to their amenity-rich buildings and rooftop patios.

Learn more about Financial District

Similar Homes looks at ad spend and other factors like location, price, and number of beds and baths.