$5,000
for rent
Base rent only. For total monthly price and additional fees, see .
No longer available 6/3/2025
- ft²
2 rooms
Studio
1 bath
Condo
- West Village
Under NYC law, you can't be charged a broker fee if you didn't hire a broker.
Listed by
This home has been saved by 32 users.
Listing by Brown Harris Stevens, Real Estate Principal Office, 100 Fifth Avenue, New York, NY 10011
Unavailable
No longer available on 6/3/2025
Days on market
12 days
Last price change
No changes
About
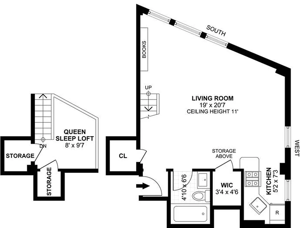
Sun splashed studio loft with skyline views available for immediate move-in at One Sheridan Square, a boutique elevator condo building in the heart of the West Village. This high floor corner loft space has all the essential elements for fabulous Downtown living. A squared and open floor plan, hardwood floors, 11ft high barrel vaulted ceiling and 5 over-sized windows facing south and west offering incredible sunlight and dynamic views over Sheridan Square and the downtown skyline.
Policies
Pets allowed
Home features
No info on home features
Building amenities
Services and facilities
Laundry in building
Live-in super
Wellness and recreation
No info on wellness and recreation
Shared outdoor space
No info on shared outdoor space
About the building
1 Sheridan Square
1 Sheridan Square, New York, NY 10014
45 units
8 stories
1920 built
Property history
Prices shown are base rent only. For total monthly price and additional fees, see .
| Date | Base rent | Event |
|---|---|---|
9/2/2025 | $5,000 | No longer available |
6/3/2025 | $5,000 | Temporarily off market |
5/22/2025 | $5,000 | Listed by Brown Harris Stevens |
7/30/2022 | $4,250 | |
7/30/2022 | $4,250 | Price increased by 8% |
Past listing photos
Sign in to take a closer look at how this home compares to similar homes.
Explore West Village
Transit
| Location | Distance |
|---|---|
1at Christopher St–Sheridan Sq | under 500 feet |
ABCDEFMat West 4th St | under 500 feet |
PATHat 9th Street Station | 0.18 miles |
PATHat Christopher Street Station | 0.27 miles |
FLM123at 14th St | 0.31 miles |
About West Village
Rental prices shown are base rent before any fees. Visit listings for cost and fees breakdown.
Sales
Median asking price
Studio
$550K
Rentals
Median asking base rent
Studio
$4,295
Picture a romantic comedy set in New York City: The heroine invariably lives in a cozy walk-up on a cobblestone street in a neighborhood with cute boutiques and trendy cafes on every corner. This movie is set in the West Village. In reality, the West Village is just as picturesque: The neighborhood is tucked between Greenwich Village and the Hudson River and is one of the quietest and most sophisticated pockets of Downtown Manhattan. Primarily residential, with a distinct lack of office buildings, the leafy, off-the-grid streets are peaceful during the day but get livelier at night. That's when well-heeled residents, fashionistas, and literati can all be found mingling over oysters at the area's many low-lit cocktail bars.
Learn more about West VillageSimilar homes
Prices shown are base rent only and don't include any fees. Visit each listing to see a complete cost breakdown.
Similar Homes looks at ad spend and other factors like location, price, and number of beds and baths.























































































