View this home virtually
$659,000
For Sale
Delisted 7/15/2024
1,250 ft²
$527 per ft²
4 rooms
2 beds
1.5 baths
Co-op
- Saint George
Resale
Seller's agent
This home has been saved by 61 users.
Listing by R New York, Limited Liability Broker, 641 Lexington Avenue, New York, NY 10022
Maintenance fees
$2,300/mo
Estimated payment
$5,749/mo
Legal disclaimerAll calculations are estimates provided by StreetEasy for informational purposes only. Actual amounts or financing terms may vary. Please contact your mortgage provider for specifics.Taxes
Included in maintenance fees
Tax abatement
No info
About
Seller’s agent
description
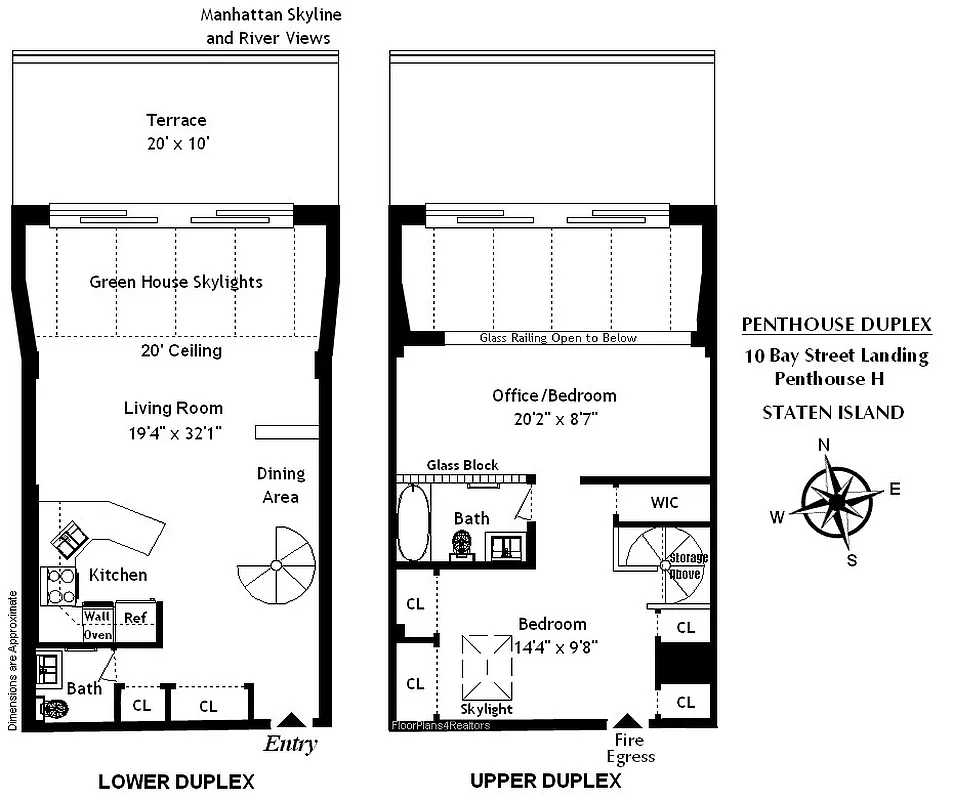
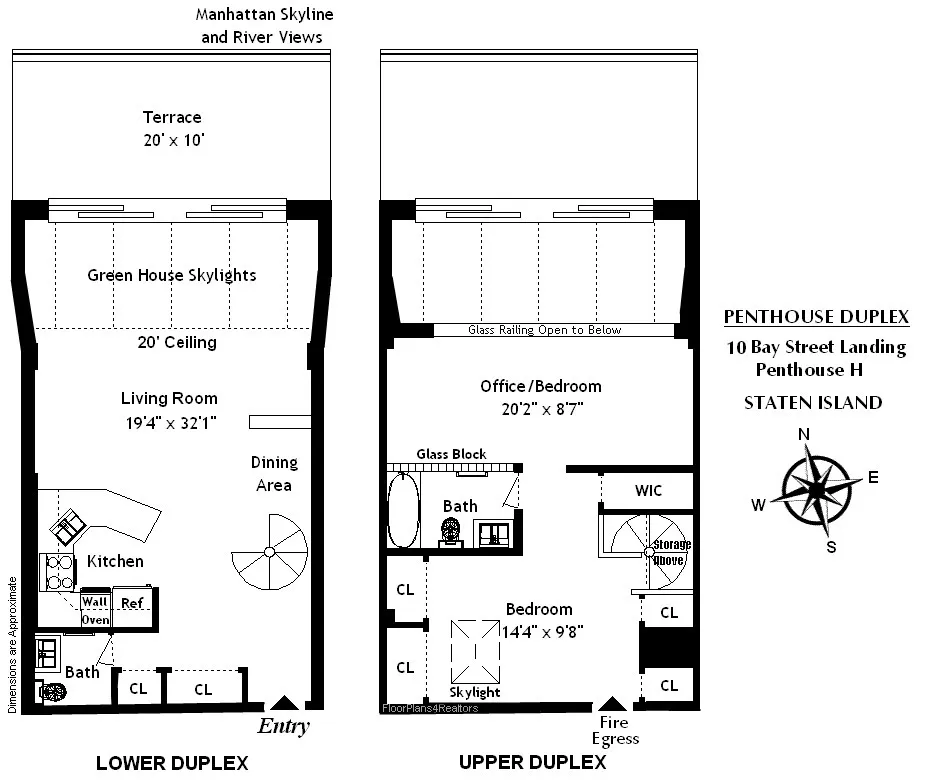
PH-H, available for sale, is an open loft duplex loft duplex with a 200sf patio and 2 assigned parking spaces, 1.5 baths. Located on 8th & 9th flr this open concept home is bright and very unique. With 20' vaulted solarium windows and ceilings views are vast and sprawling: Statue of Liberty and skylines of NYC, NJ and Brooklyn. The U-shaped kitchen has a counter seating 2-4 and plenty of cabinet space.
Policies
Pets allowed
Home features
Central air
Private outdoor space
Balcony
View
City, Skyline, Water
Building amenities
Services and facilities
Doorman
Virtual
Elevator
Laundry in building
Live-in super
Package room
Parking
Garage
Storage space
Cold storage
Wellness and recreation
Children's playroom
Gym
Shared outdoor space
Courtyard
Garden
About the building
10 Bay Street Landing
10 Bay Street Landing, Staten Island, NY 10301
128 units
9 stories
1982 built
For sale
6 available units for saleFor rent
0 available units for rentDocuments and permits
View documents and permitsProperty history
- Price Change: ↓ $10,000 (-1.5%) on 3/13/24
- Days on market: 640 daysThis is the number of days the listing has been on StreetEasy.
| Date | Price | Event |
|---|---|---|
7/16/2024 | $659,000 | Delisted by R New York |
7/15/2024 | $659,000 | No longer available |
3/13/2024 | $659,000 | Price decreased by 1% |
3/7/2024 | $669,000 | Price decreased by 4% |
5/8/2023 | $699,000 | Price decreased by 3% |
Sign in to take a closer look at how this home compares to similar homes.












































































































































































































































































