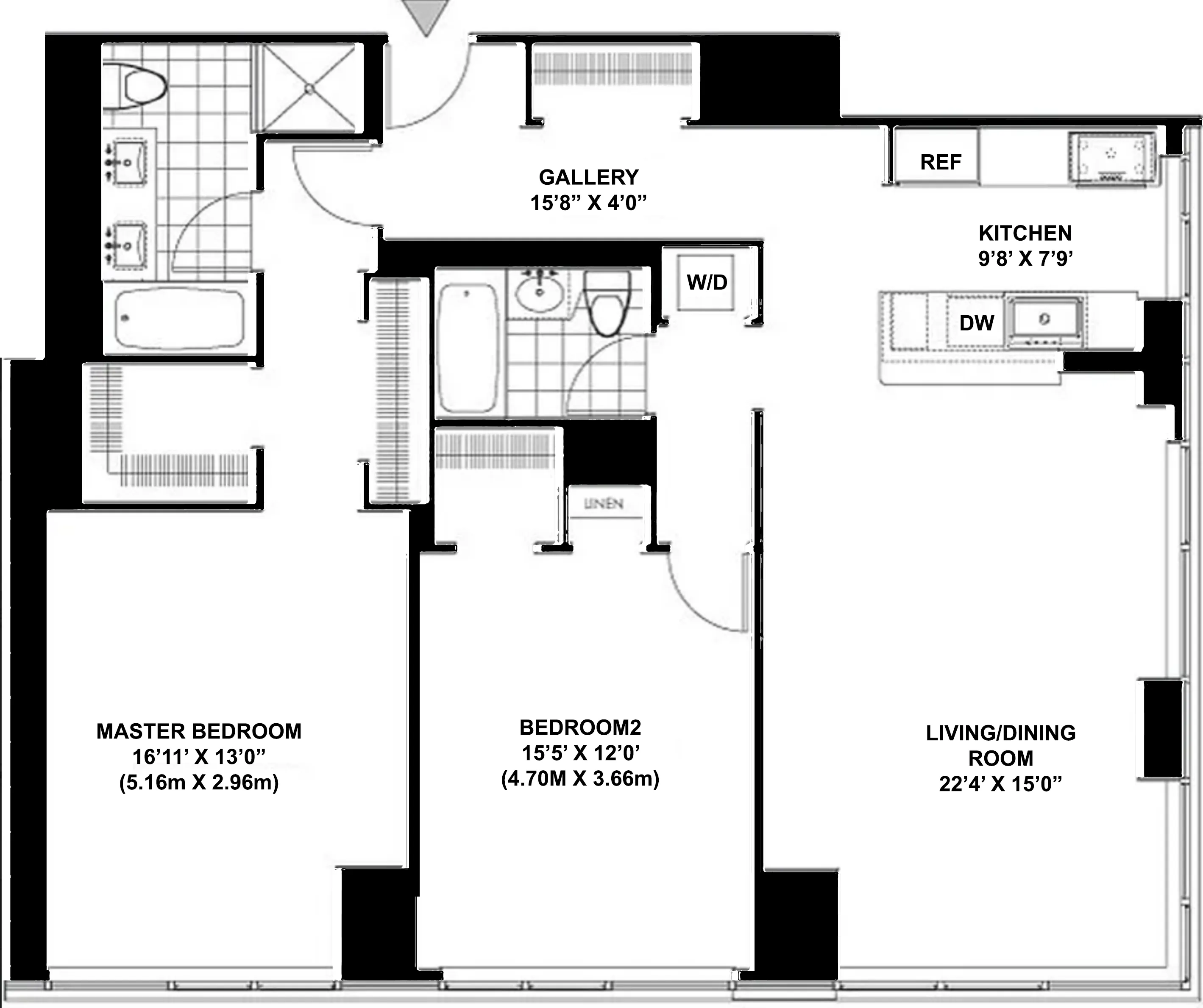
1,377 ft²
$1,633 per ft²
5 rooms
2 beds
2 baths
Condo
- Lincoln Square
Resale
recorded sale
Sold on 7/21/2025
Verified by closing records
Last listed for $2,250,000
Seller's agent
This home has been saved by 17 users.
Listing by Brown Harris Stevens, Real Estate Principal Office, 100 Fifth Avenue, New York, NY 10011
Common charges
$1,975/mo
Estimated payment
$15,101/mo
Legal disclaimerAll calculations are estimates provided by StreetEasy for informational purposes only. Actual amounts or financing terms may vary. Please contact your mortgage provider for specifics.Taxes
$1,451/mo
Tax abatement
No info
About
Seller’s agent
Buyer’s agent
description
Luxury Corner Residence with River Views at 10 West End Avenue - Asking $2,250,000
Welcome to Residence 12H, a rare and elegant corner unit offering 1,377 square feet of refined living space in one of the Upper West Side's most distinguished condominiums. This expansive 2-bedroom, 2-bathroom home impresses with soaring 12-foot ceilings, river views, and abundance of natural light from its floor-to-ceiling windows.
Policies
Pets allowed
Cats and dogs allowed
Home features
View
City, Water
Building amenities
Services and facilities
Bike room
Concierge
Doorman
Full-time
Elevator
Laundry in building
Live-in super
Parking
Storage space
Cold storage
Wellness and recreation
Children's playroom
Gym
Swimming pool
Shared outdoor space
No info on shared outdoor space
About the building
10 West End Avenue
10 West End Avenue, New York, NY 10023
173 units
33 stories
2007 built
For sale
8 available units for saleFor rent
0 available units for rentDocuments and permits
View documents and permitsProperty history
- Price Change: No changes
- Days on market: 28 daysThis is the number of days the listing has been on StreetEasy.
| Date | Price | Event |
|---|---|---|
7/21/2025 | $2,250,000 | Sold by Brown Harris Stevens |
5/29/2025 | $2,250,000 | In contract |
5/1/2025 | $2,250,000 | Listed by Brown Harris Stevens |
9/25/2007 | $1,559,103 |
Past listing photos
Sign in to take a closer look at how this home compares to similar homes.
Explore Lincoln Square
Transit
| Location | Distance |
|---|---|
1at 66th St–Lincoln Center | 0.42 miles |
ABCD1at 59th St–Columbus Circle | 0.43 miles |
123at 72nd St | 0.64 miles |
NRWat 57th St–7th Av | 0.66 miles |
CEat 50th St | 0.67 miles |
About Lincoln Square
Rental prices shown are base rent before any fees. Visit listings for cost and fees breakdown.
SalesMedian asking price
2 beds
$2.2M
RentalsMedian asking base rent
2 beds
$8,712
Named after and defined by the Lincoln Center for the Performing Arts, Lincoln Square is home to the New York Philharmonic, the New York City Ballet and the Metropolitan Opera, among many other cultural institutions. The neighborhood blends the prewar architecture and and style of the Upper West Side with modern, tall residential buildings. Great subway access at Columbus Circle and proximity to Midtown make this neighborhood popular with those looking to be in the center of it all.
Learn more about Lincoln Square










































































































































































