View this home virtually
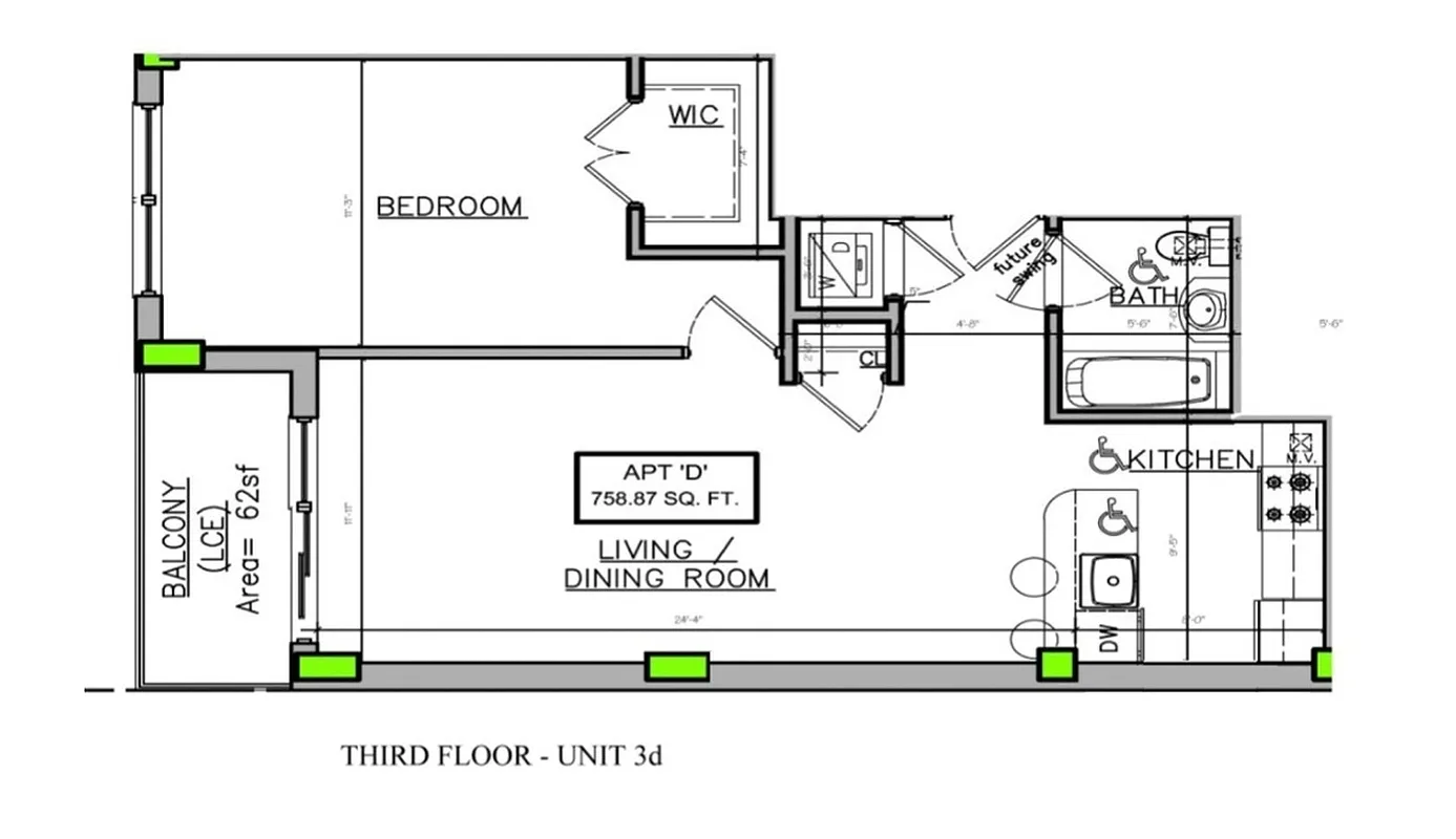
759 ft²
$928 per ft²
3 rooms
1 bed
1 bath
Condo
- Forest Hills
Resale
reported sale
Sold on 3/23/2023
Not yet verified by closing records
Seller's agents
This home has been saved by 40 users.
Listing by Industrie Residential, Corporate Broker, 261 West 28th Street, New York, NY 10001
Common charges
$287/mo
Estimated payment
$3,948/mo
Legal disclaimerAll calculations are estimates provided by StreetEasy for informational purposes only. Actual amounts or financing terms may vary. Please contact your mortgage provider for specifics.Taxes
$88/mo
Tax abatement
No info
About
Seller’s agent
description
Immaculate and modern one bedroom with private balcony and ultra low monthlies at the
Elite Milana Condominium in Forest Hills.
The design of this immaculate home offers high ceilings, oversized windows and hardwood floors throughout. The inviting open kitchen offers high-end stainless steel appliances, gas stove, dishwasher, recessed lighting, tons of cabinet space and a WASHER/DRYER hook up and vent.
Policies
Sorry, policy info isn’t available right now. Check back later.
Home features
Central air
Dishwasher
Hardwood floors
Private outdoor space
Balcony
Washer/dryer
Building amenities
Services and facilities
Bike room
Elevator
Laundry in building
Live-in super
Package room
Parking
Garage
Wheelchair access
Wellness and recreation
No info on wellness and recreation
Shared outdoor space
Roof deck
About the building
106-20 70th Avenue
106-20 70th Avenue, Forest Hills, NY 11375
23 units
8 stories
2014 built
For sale
3 available units for saleFor rent
1 available units for rentDocuments and permits
View documents and permitsProperty history
- Price Change: ↓ $20,000 (-2.8%) on 5/13/22
- Days on market: 562 daysThis is the number of days the listing has been on StreetEasy.
| Date | Price | Event |
|---|---|---|
3/27/2023 | $705,000 | Sold by Industrie Residential |
3/26/2023 | $705,000 | No longer available |
3/23/2023 | $705,000 | Temporarily off market |
5/13/2022 | $705,000 | Price decreased by 3% |
2/16/2022 | $725,000 | Price decreased by 6% |
Past listing photos
Sign in to take a closer look at how this home compares to similar homes.
Explore Forest Hills
Transit
| Location | Distance |
|---|---|
EFMRat Forest Hills–71st Av | under 500 feet |
LIRRat Forest Hills | 0.15 miles |
MRat 67th Av | 0.44 miles |
EFat 75th Av | 0.46 miles |
EFat Kew Gardens–Union Turnpike | 0.87 miles |
About Forest Hills
Rental prices shown are base rent before any fees. Visit listings for cost and fees breakdown.
SalesMedian asking price
1 bed
$344K
RentalsMedian asking base rent
1 bed
$2,600
Bisected by Queens Boulevard, Forest Hills offers two types of city living: Urban apartment complexes on one side and the other, the storied Forest Hills Gardens. Whichever side of the boulevard you live on, this suburban neighborhood is teeming with lots of public outdoor space. Another good to know, many residents own a car.
Learn more about Forest Hills



























































































































































































