View this home virtually
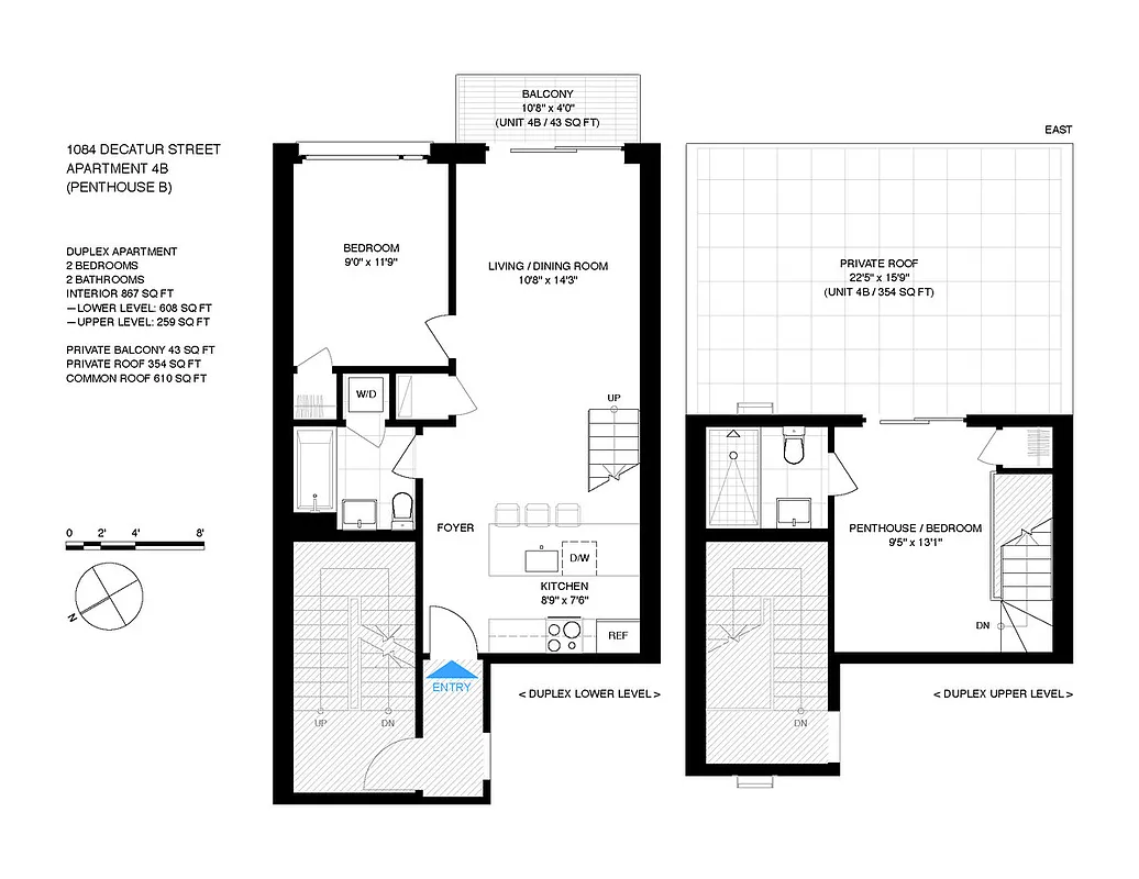
867 ft²
$807 per ft²
8 rooms
2 beds
2 baths
Condo
- Bushwick
Sponsor unit
Sponsor unitA unit being sold for the first time. It’s typically owned by the building. For condos, this is often the developer. For co-ops, this is often the building’s original owner before it went co-op.
recorded sale
Sold on 9/17/2021
Verified by closing records
Last listed for $725,000
Seller's agents
This home has been saved by 565 users.
Listing by Douglas Elliman, Limited Liability Broker, 237 Smith Street, Brooklyn, NY 11231 | Brokerage Listing ID: 4365963
Common charges
$520/mo
Estimated payment
$4,951/mo
Legal disclaimerAll calculations are estimates provided by StreetEasy for informational purposes only. Actual amounts or financing terms may vary. Please contact your mortgage provider for specifics.Taxes
$799/mo
Tax abatement
No info
About
Seller’s agent
description
Welcome to 1084 Decatur Street, a brand new gorgeously appointed boutique condominium in the increasingly popular Bushwick neighborhood.
This thoughtfully designed new building offers seven large units, each with floor to ceiling windows, central AC and heat, hardwood floors, and laundry rooms. The kitchens are Scandinavian inspired boasting clean lines with ample smart storage and high-end stainless steel appliances.
Policies
Pets allowed
Home features
Central air
Dishwasher
Hardwood floors
Private outdoor space
Balcony, Terrace
View
City
Washer/dryer
Building amenities
Services and facilities
Doorman
Virtual
Wellness and recreation
No info on wellness and recreation
Shared outdoor space
Roof deck
About the building
1084 Decatur Street
1084 Decatur Street, Brooklyn, NY 11207
7 units
4 stories
2020 built
For sale
0 available units for saleFor rent
0 available units for rentDocuments and permits
View documents and permitsProperty history
- Price Change: ↓ $50,000 (-6.5%) on 2/24/21
- Days on market: 233 daysThis is the number of days the listing has been on StreetEasy.
| Date | Price | Event |
|---|---|---|
9/17/2021 | $700,000 | Sold by Douglas Elliman |
3/17/2021 | $725,000 | In contract |
2/24/2021 | $725,000 | Price decreased by 6% |
7/27/2020 | $775,000 | Listed by Douglas Elliman |
Past listing photos
Sign in to take a closer look at how this home compares to similar homes.
Explore Bushwick
Transit
| Location | Distance |
|---|---|
JZat Chauncey St | 0.23 miles |
Lat Wilson Av | 0.3 miles |
Jat Halsey St | 0.33 miles |
Lat Bushwick Av | 0.36 miles |
ACat Rockaway Av | 0.55 miles |
About Bushwick
Rental prices shown are base rent before any fees. Visit listings for cost and fees breakdown.
SalesMedian asking price
2 beds
$921.58K
RentalsMedian asking base rent
2 beds
$3,400
Bushwick has seen a lot of change over the years. In the early 1900s, it was known for its thriving distilleries and breweries. After those industries declined, it experienced a long period of blight through the 1970s and 1980s. Now the neighborhood is seeing a renaissance, as artists pushed out of Williamsburg and elsewhere move in and raise property values. Bushwick offers unconventional living spaces: The housing market is full of converted lofts in old factories, sometimes with great access to outdoor space.
Learn more about Bushwick


























































































































