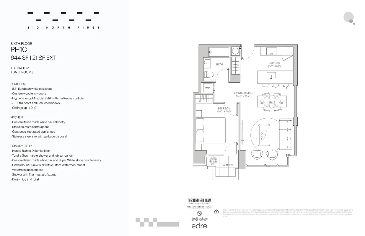
644 ft²
$1,746 per ft²
3 rooms
1 bed
1 bath
Condo
- Williamsburg
Sponsor unit
reported sale
Sold on 6/27/2024
Not yet verified by closing records
Seller's agents
This home has been saved by 115 users.
Listing by Nest Seekers International, Limited Liability Broker, 594 Broadway, New York, NY 10012
Common charges
$587/mo
Estimated payment
$7,800/mo
Taxes
$997/mo
Tax abatement
No info
About
Seller’s agent
description
Welcome to 110 North 1st where thoughtful design creates meaningful connections to nature. A mix of studio to four bedroom condominiums.
Expansive light-filled residences, all with private outdoor space, feature floor-to-ceiling Schüco windows in living spaces and operable large-format Schüco windows in bedrooms. Interiors are finished in a soft neutral palette of exceptional natural materials and custom Italian millwork throughout.
Ki
Policies
Pets allowed
Home features
Central air
Dishwasher
Hardwood floors
Private outdoor space
Balcony
View
City, Skyline, Water
Washer/dryer
Building amenities
Services and facilities
Bike room
Doorman
Virtual
Elevator
Laundry in building
Package room
Parking
Assigned
Storage space
Wellness and recreation
Children's playroom
Gym
Hot tub
Swimming pool
Shared outdoor space
Deck
Garden
Patio
Roof deck
About the building
110 North 1st Street
110 North 1st Street, Brooklyn, NY 11249
38 units
9 stories
2023 built
For sale
0 available units for saleFor rent
1 available units for rentDocuments and permits
View documents and permitsProperty history
- Price Change: No changes
- Days on market: 82 days
| Date | Price | Event |
|---|---|---|
6/27/2024 | $1,125,000 | Sold by Nest Seekers International |
5/21/2024 | $1,125,000 | In contract |
2/29/2024 | $1,125,000 | Listed by Nest Seekers International |
Past listing photos
Sign in to take a closer look at how this home compares to similar homes.
Explore Williamsburg
Transit
| Location | Distance |
|---|---|
Lat Bedford Av | 0.31 miles |
Ferryat North 5th Street Ferry landing | 0.31 miles |
Ferryat South 8th Street Ferry landing | 0.51 miles |
JMZat Marcy Av | 0.52 miles |
GLat Metropolitan Av | 0.6 miles |
About Williamsburg
Rental prices shown are base rent before any fees. Visit listings for cost and fees breakdown.
SalesMedian asking price
1 bed
$1.13M
RentalsMedian asking base rent
1 bed
$4,600
Williamsburg is Brooklyn's booming epicenter with a well-deserved and worldwide reputation for being an influential hub thanks to a thriving cultural scene. Here you will find eye-catching new construction, brownstones, and prewars sitting next to historic buildings on streets dotted with restaurants, art spaces, boutiques, and more. With a Manhattan-facing waterfront (hello Domino Park!) and its large weekend markets (we're talking about you, Smorgasburg, and Artists & Fleas), the neighborhood is ideal for strolling and people watching. Another fringe benefit is Williamsburg's proximity to Manhattan via the G, L, M, and N subway lines.
Learn more about Williamsburg












































































































































