- ft²
8 rooms
4 beds
4 baths
Co-op
- Upper West Side
Resale
recorded sale
Sold on 10/30/2025
Verified by closing records
Last listed for $3,400,000
Seller's agents
This home has been saved by 115 users.
Listing by Brown Harris Stevens, Real Estate Principal Office, 445 Park Avenue, New York, NY 10022
Maintenance fees
$7,280/mo
Estimated payment
$22,372/mo
Legal disclaimerAll calculations are estimates provided by StreetEasy for informational purposes only. Actual amounts or financing terms may vary. Please contact your mortgage provider for specifics.Taxes
Included in maintenance fees
Tax abatement
No info
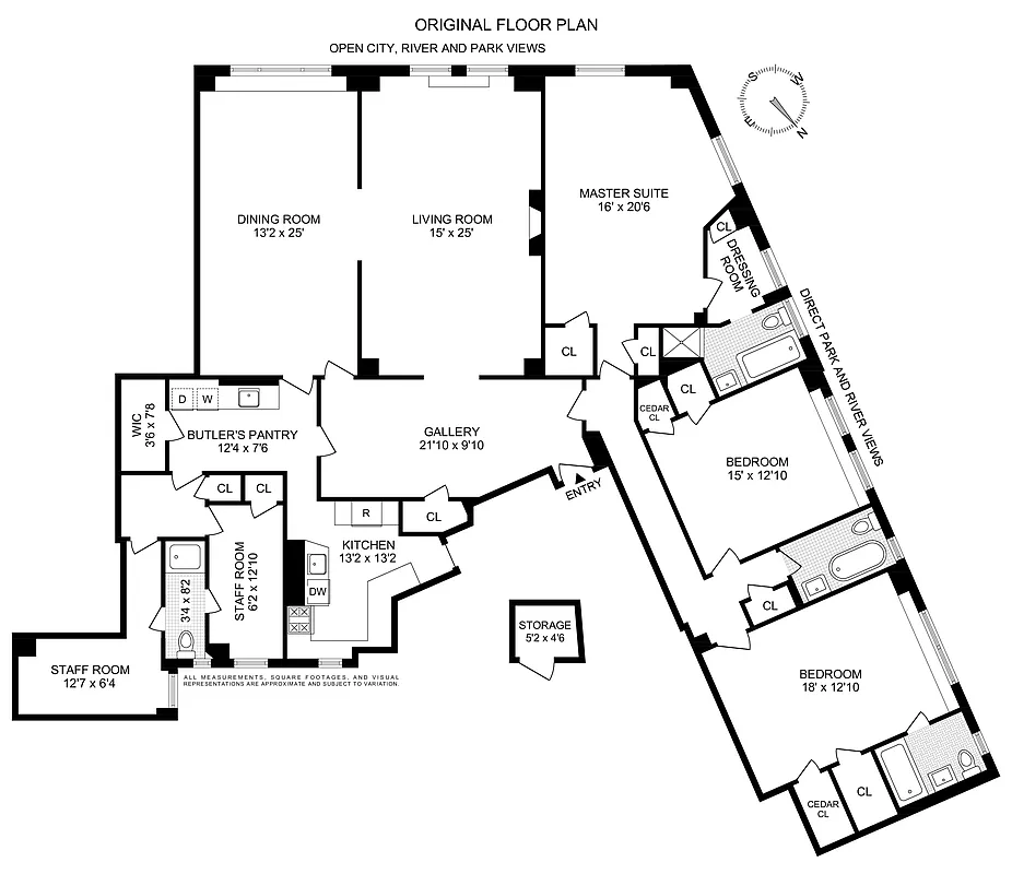
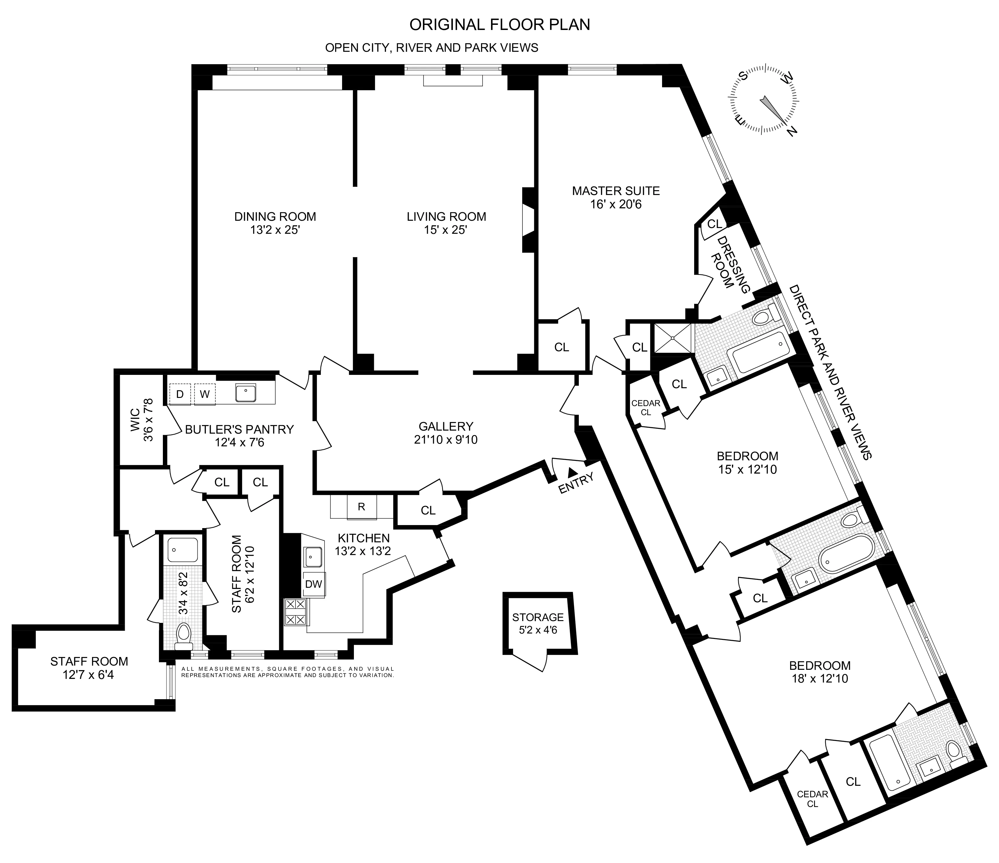
About
Seller’s agent
Buyer’s agent
description
PANORAMIC RIVER, PARK AND CITY VIEWS
NEW PRICE! PRICED TO SELL! A prized offering of a grand, sky-high corner 8-room home with majestic panoramic views of the Hudson River, Riverside Park and the Manhattan skyline from almost every room, through massive wall-to-wall picture windows. A coveted line for its unique vantage point, Residence 15A at 110 Riverside Drive wraps the building's southwestern...
Policies
Pets allowed
Cats and dogs allowed
Home features
Dishwasher
Hardwood floors
View
City, Park, Skyline, Water
Washer/dryer
Building amenities
Services and facilities
Bike room
Doorman
Full-time, Part-time
Elevator
Laundry in building
Live-in super
Storage space
Locker/cage
Wellness and recreation
Children's playroom
Gym
Shared outdoor space
No info on shared outdoor space
About the building
110 Riverside Drive
110 Riverside Drive, New York, NY 10024
Complex:
110-118 Riverside Drive170 units
16 stories
1929 built
For sale
0 available units for saleFor rent
0 available units for rentDocuments and permits
View documents and permitsProperty history
- Price Change: ↓ $595,000 (-14.9%) on 5/30/25
- Days on market: 150 daysThis is the number of days the listing has been on StreetEasy.
| Date | Price | Event |
|---|---|---|
10/30/2025 | $3,400,000 | Sold by Brown Harris Stevens |
7/7/2025 | $3,400,000 | In contract |
5/30/2025 | $3,400,000 | Price decreased by 15% |
2/7/2025 | $3,995,000 | Listed by Brown Harris Stevens |
7/31/2024 | $3,900,000 |
Past listing photos
Sign in to take a closer look at how this home compares to similar homes.
Explore Upper West Side
Transit
| Location | Distance |
|---|---|
1at 86th St | 0.2 miles |
1at 79th St | 0.26 miles |
123at 96th St | 0.54 miles |
123at 72nd St | 0.6 miles |
BCat 86th St | 0.6 miles |
About Upper West Side
Rental prices shown are base rent before any fees. Visit listings for cost and fees breakdown.
SalesMedian asking price
4 beds
$5.65M
RentalsMedian asking base rent
4 beds
$17,625
Sandwiched between two beautiful parks, the Upper West Side is one of the greenest spots in Manhattan. For that reason, it is a perennial favorite. The Upper West Side is relaxed, but never dull. There are plenty of low-key bars and restaurants to frequent along Amsterdam Avenue, and Broadway is an always-bustling commercial center. The wide, tree-lined streets still boast many mom-and-pop stores. Less posh than the Upper East Side, it is more easily accessible by public transportation, and real estate prices are just as, if not more, expensive.
Learn more about Upper West Side






















































































































































