$4,500,000
For Sale
Delisted 11/20/2025
6,264 ft²
$718 per ft²
10 rooms
Studio
0 baths
Rental unit
- Murray Hill
Resale
Seller's agent
This home has been saved by 12 users.
Listing by Re/Max In The City, Corporate Broker, 5776 Mosholu Avenue, Riverdale, NY 10471
Common charges
Not applicable
Estimated payment
$23,139/mo
Legal disclaimerAll calculations are estimates provided by StreetEasy for informational purposes only. Actual amounts or financing terms may vary. Please contact your mortgage provider for specifics.Taxes
No info
Tax abatement
No info
About
Seller’s agent
description
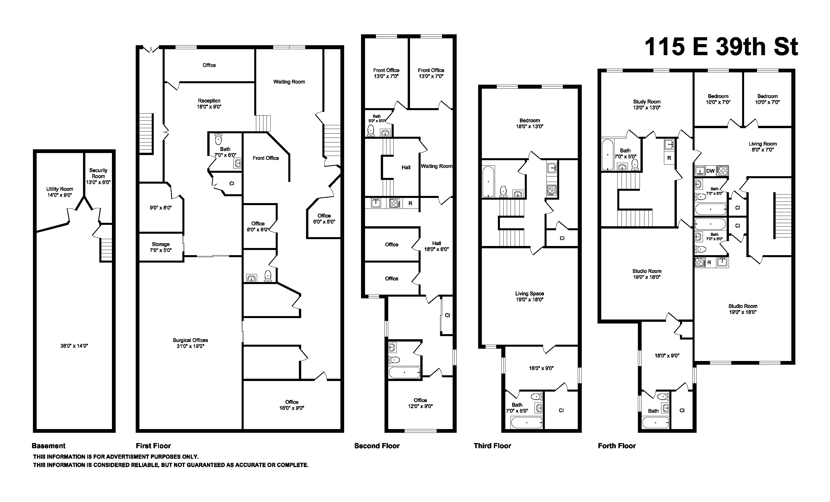
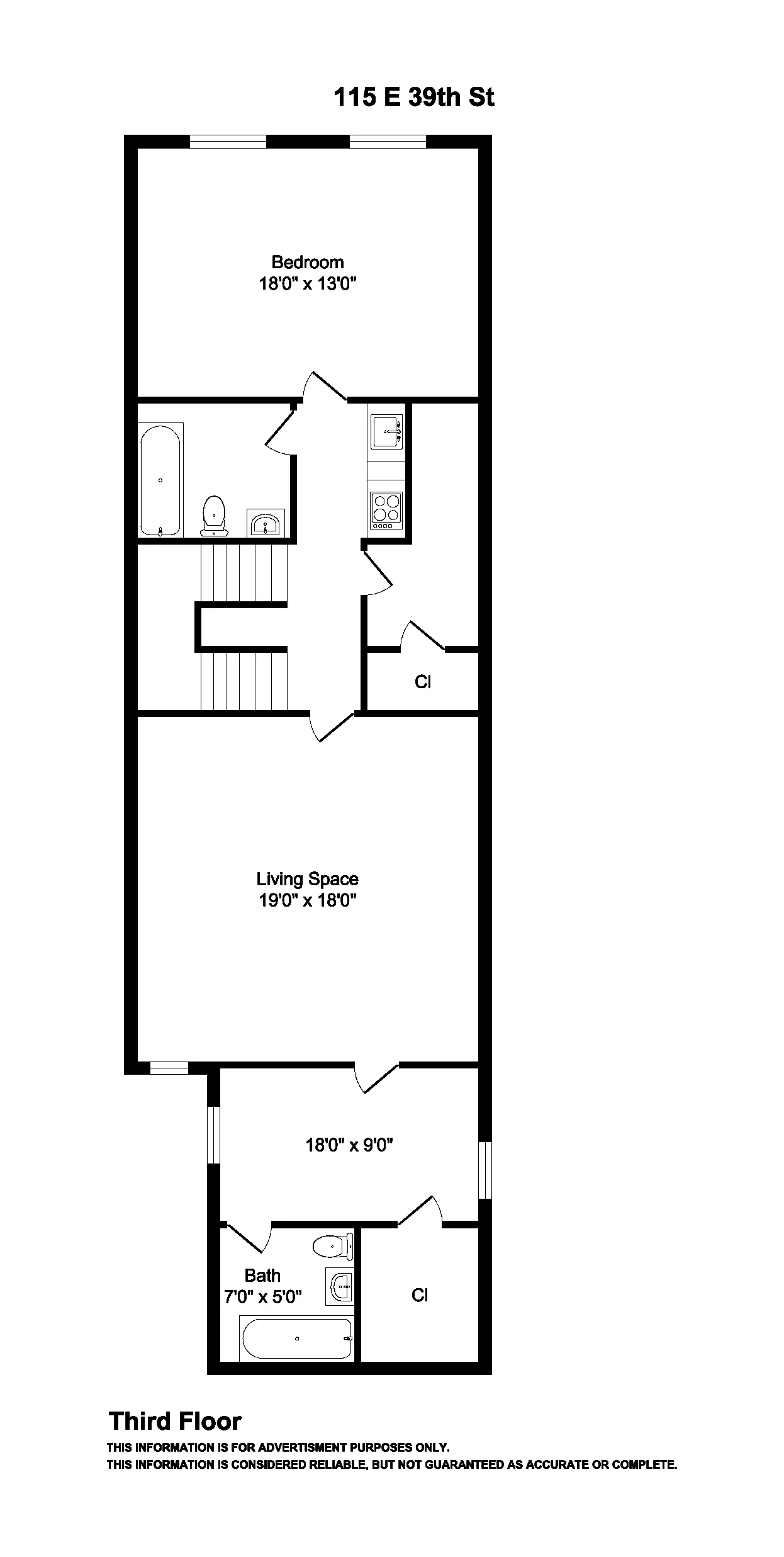
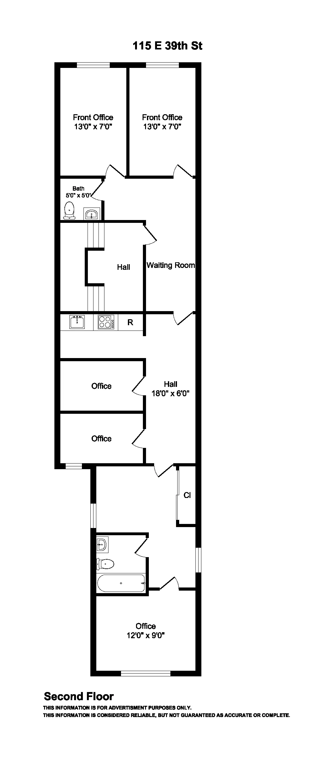
Unlock the potential of this strategically located multi-family property in the heart of Midtown Manhattan. Just two blocks from iconic Grand Central Terminal, this building offers endless possibilities. Original building square footage: 6,254 + PH apartment 1st-floor office and medical space 2nd floor Medical office space 3rd floor.
Policies
Sorry, policy info isn’t available right now. Check back later.
Home features
View
City
Building amenities
No info on building amenities
About the building
115 East 39th Street
115 East 39th Street, New York, NY 10016
8 units
5 stories
1910 built
For sale
0 available units for saleFor rent
0 available units for rentDocuments and permits
View documents and permitsProperty history
- Price Change: ↓ $474,900 (-9.5%) on 7/15/25
- Days on market: 447 daysThis is the number of days the listing has been on StreetEasy.
| Date | Price | Event |
|---|---|---|
11/20/2025 | $4,500,000 | Delisted by Re/Max In The City |
7/15/2025 | $4,500,000 | Price decreased by 10% |
6/13/2025 | $4,974,900 | Price decreased by 1% |
12/13/2024 | $4,999,900 | Price decreased by 17% |
8/30/2024 | $6,000,000 | Listed by Re/Max In The City |
Sign in to take a closer look at how this home compares to similar homes.
Explore Murray Hill
Transit
| Location | Distance |
|---|---|
| 0.11 miles |
| 0.29 miles |
| 0.3 miles |
| 0.38 miles |
| 0.43 miles |
About Murray Hill
Rental prices shown are base rent before any fees. Visit listings for cost and fees breakdown.
SalesMedian asking price
Studio
$408.45K
RentalsMedian asking base rent
Studio
$3,395
Murray Hill has a lively energy most hours of the day and night. In the morning, the streets are filled with professionals looking polished in their Brooks Brothers suits as they head to work. Come evening, you'll see the crowds returning home decked out in gym clothes and schlepping bags of take-out dinner and Trader Joe's. The neighborhood has a down-to-earth, casual vibe, and there's always a big game airing at one of the many sports bars along the Third Avenue strip. Many of Murray Hill's residents are renters who come and go, but the place eschews intransigence and maintains a familiar, college-town feel.
Learn more about Murray Hill


































































































































































































