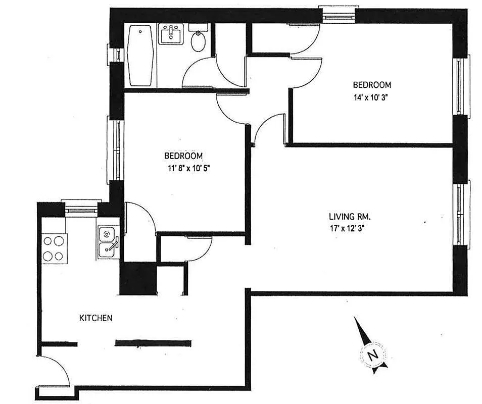
- ft²
4 rooms
2 beds
1 bath
Co-op
- Brooklyn Heights
recorded sale
Sold on 12/21/2016
Verified by closing records
Last listed for $499,000
Seller's agent
This home has been saved by 262 users.
Listing by Douglas Elliman, Limited Liability Broker, 575 Madison Avenue -, New York, NY 10022 | Brokerage Listing ID: 2161004
Maintenance fees
$1,214/mo
Estimated payment
$3,642/mo
Legal disclaimerAll calculations are estimates provided by StreetEasy for informational purposes only. Actual amounts or financing terms may vary. Please contact your mortgage provider for specifics.Taxes
Included in maintenance fees
Tax abatement
No info
About
Seller’s agent
description
Fantastic Investment Opportunity. Located in Prime Brooklyn Heights one block from the famous Brooklyn Promenade this two bedroom, 1 bath unit has a windowed eat in Kitchen. The Unit is tenant occupied with a grandfathered rent Stabilized lease. The tenant is currently paying $1,316 per month. The full market value of the apartment is approximately $900K- $1 million.
Policies
Pets allowed
Cats and dogs allowed
Home features
Private outdoor space
Garden
Building amenities
Services and facilities
Bike room
Doorman
Part-time
Elevator
Laundry in building
Live-in super
Storage space
Wellness and recreation
No info on wellness and recreation
Shared outdoor space
No info on shared outdoor space
About the building
115 Willow Street
115 Willow Street, Brooklyn, NY 11201
39 units
6 stories
1927 built
For sale
0 available units for saleFor rent
0 available units for rentDocuments and permits
View documents and permitsProperty history
- Price Change: ↓ $26,000 (-5.0%) on 4/7/16
- Days on market: 441 daysThis is the number of days the listing has been on StreetEasy.
| Date | Price | Event |
|---|---|---|
12/21/2016 | $320,000 | Sold by Douglas Elliman |
12/30/2016 | $499,000 | No longer available |
9/20/2016 | $499,000 | In contract |
4/7/2016 | $499,000 | Price decreased by 5% |
7/3/2015 | $525,000 | No longer available |
Past listing photos
Sign in to take a closer look at how this home compares to similar homes.
Explore Brooklyn Heights
Transit
| Location | Distance |
|---|---|
23at Clark St | 0.12 miles |
R2345at Borough Hall/Court St | 0.25 miles |
ACat High St | 0.25 miles |
Ferryat Fulton Ferry Landing | 0.39 miles |
ACFRat Jay St–MetroTech | 0.51 miles |
About Brooklyn Heights
Rental prices shown are base rent before any fees. Visit listings for cost and fees breakdown.
SalesMedian asking price
2 beds
$1.62M
RentalsMedian asking base rent
2 beds
$7,461
Brooklyn Heights is known for its gorgeous housing stock and its impressive backdrop. The Promenade is the neighborhood's most celebrated and popular public space, offering just about the best views of the Brooklyn Bridge and the Manhattan skyline that can be found. There, you're likely to find locals walking their Westies, kids zooming around on scooters, and tourists excitedly snapping pics — every one of them savoring the views from this prime perch of a neighborhood.
Learn more about Brooklyn Heights



























































































