$3,200
For Rent
Base rent only. For total monthly price and additional fees, see .
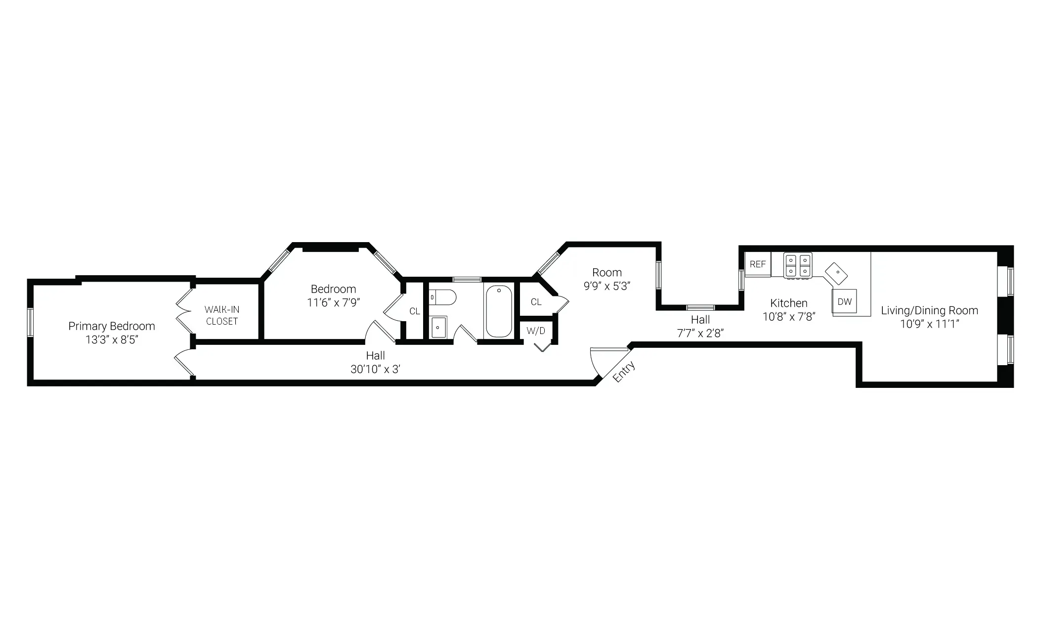
887 ft²
$43 per ft²
5 rooms
2 beds
1 bath
Three-family home
- Central Harlem
Under NYC law, you can't be charged a broker fee if you didn't hire a broker.
Listed By
This home has been saved by 35 users.
Listing by Nest Seekers International, Limited Liability Broker, 47 44 Vernon Boulevard, Long Island City, NY 11101
Available
Available now
Days on market
20 days
Last price change
No changes
About
Bathed in natural light, this charming Harlem two-bedroom home offers a thoughtfully designed layout with a south-facing living room, a windowed kitchen, and a windowed bathroom. The apartment also features a versatile bonus office space, an east-facing second bedroom, and a north-facing primary bedroom. Modern conveniences include an in-unit washer/dryer, dishwasher, granite countertops, and hardwood floors throughout.
Policies
Sorry, policy info isn’t available right now. Check back later.
Home features
Furnished
Building amenities
No info on building amenities
About the building
116 West 133rd Street
116 West 133rd Street, New York, NY 10030
3 units
3 stories
1910 built
Property history
Prices shown are base rent only. For total monthly price and additional fees, see .
| Date | Base rent | Event |
|---|---|---|
12/19/2025 | $3,200 | Listed by Nest Seekers International |
Sign in to take a closer look at how this home compares to similar homes.
Explore Central Harlem
Transit
| Location | Distance |
|---|---|
23at 135th St | 0.11 miles |
23at 125th St | 0.37 miles |
BCat 135th St | 0.38 miles |
ABCDat 125th St | 0.45 miles |
3at 145th St | 0.61 miles |
About Central Harlem
Rental prices shown are base rent before any fees. Visit listings for cost and fees breakdown.
SalesMedian asking price
2 beds
$700K
RentalsMedian asking base rent
2 beds
$3,250
Harlem begins directly above Central Park, where you will find busy thoroughfares adjacent to quiet tree-lined blocks lined with brownstones and pre-war apartment buildings.
Learn more about Central HarlemSimilar homes
Prices shown are base rent only and don't include any fees. Visit each listing to see a complete cost breakdown.
Similar Homes looks at ad spend and other factors like location, price, and number of beds and baths.































































































































