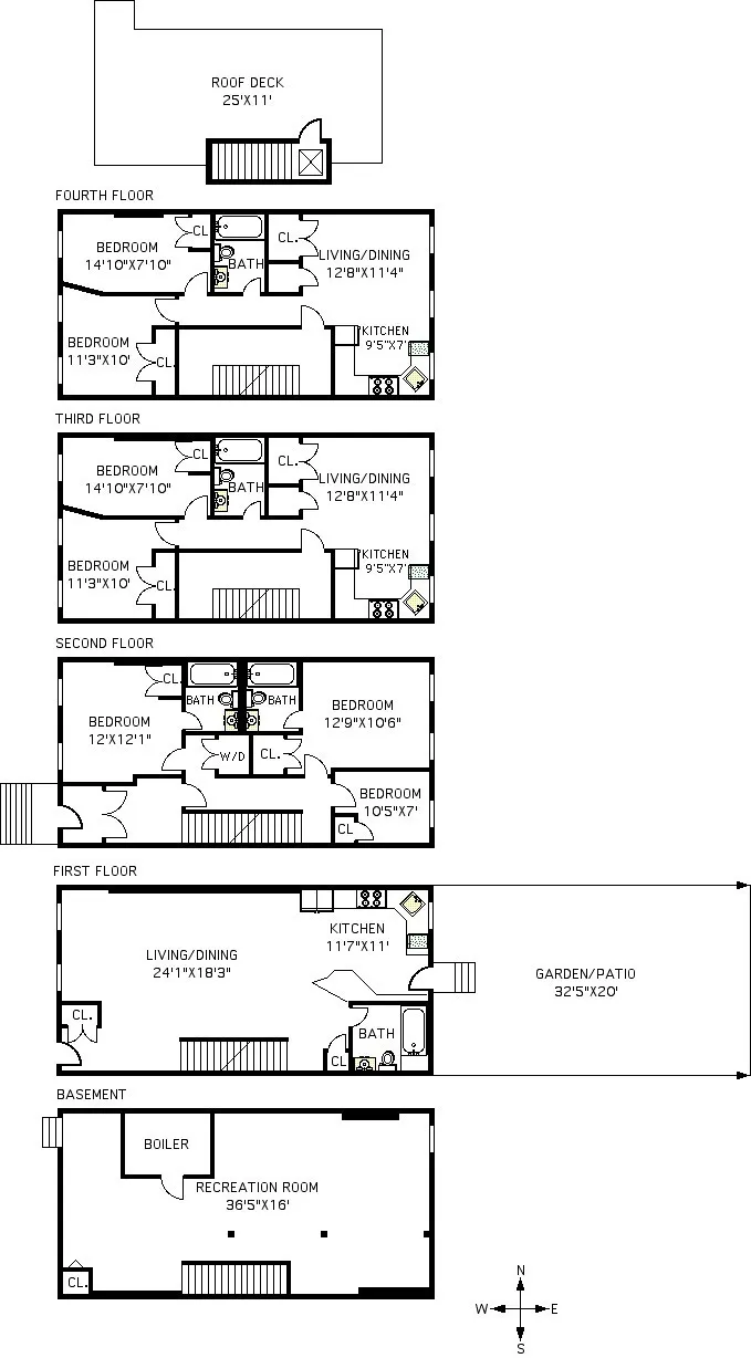
3,104 ft²
$521 per ft²
9 rooms
7 beds
5 baths
Three-family home
- Crown Heights
recorded sale
Sold on 9/25/2015
Verified by closing records
Last listed for $1,695,000
Seller's agents
This home has been saved by 18 users.
Listing by Corcoran, Limited Liability Broker, 794 Union Street, Brooklyn, NY 11215 | Brokerage Listing ID: 3482588
Common charges
Not applicable
Estimated payment
$8,828/mo
Legal disclaimerAll calculations are estimates provided by StreetEasy for informational purposes only. Actual amounts or financing terms may vary. Please contact your mortgage provider for specifics.Taxes
$164/mo
Tax abatement
No info
About
Seller’s agent
description
This stunning 3-family Brownstone house is located in one of Brooklyns trendiest up and coming neighborhoods, Crown Heights. Located within blocks away from the A/C train stops, on a beautiful tree-lined block. Be the first to live in this fully renovated Three-Bedroom Duplex, in addition to a finished basement with bicycle parking. Offering high income from (2) more Two-Bedroom apartments.
Policies
Pets allowed
Home features
No info on home features
Building amenities
No info on building amenities
About the building
117 Albany Avenue
117 Albany Avenue, Brooklyn, NY 11213
3 units
3 stories
1901 built
For sale
0 available units for saleFor rent
0 available units for rentDocuments and permits
View documents and permitsProperty history
- Price Change: No changes
- Days on market: 5 daysThis is the number of days the listing has been on StreetEasy.
| Date | Price | Event |
|---|---|---|
1/31/2023 | $1,990,000 | |
9/25/2015 | $1,620,000 | Sold by Corcoran |
8/26/2015 | $1,695,000 | No longer available |
7/22/2015 | $1,695,000 | Listed by Corcoran |
6/8/2015 | $1,695,000 |
Past listing photos
Sign in to take a closer look at how this home compares to similar homes.
Explore Crown Heights
Transit
| Location | Distance |
|---|---|
ACat Kingston–Throop | 0.25 miles |
ACat Utica Av | 0.39 miles |
LIRRat Nostrand Avenue | 0.52 miles |
3at Kingston Av | 0.54 miles |
34at Utica Av | 0.57 miles |
About Crown Heights
Rental prices shown are base rent before any fees. Visit listings for cost and fees breakdown.
SalesMedian asking price
7 beds
$2.55M
Crown Heights has a lot going on. From the chaotic, commercial avenues of Nostrand and Utica to the wide, tree-lined esplanades of Eastern Parkway, the streets are always filled with locals shopping, catching up on the corner, and keeping tabs on neighbors. Walk down any of these streets and you're likely to find music playing from idling cars and bright Caribbean flags hanging from windows of apartment buildings. Every Labor Day, Crown Heights hosts the West Indian Day Parade, one of the city's largest annual street festivals which draws thousands of people from around the city and the world. The mix of people in such close proximity makes Crown Heights a fascinating microcosm of New York City. Living here, you'll be surrounded by a community with deep roots and rich heritage.
Learn more about Crown Heights
















































































