4,200 ft²
$284 per ft²
9 rooms
7 beds
7 baths
Three-family home
- Crown Heights
reported sale
Sold on 11/16/2012
Not yet verified by closing records
Seller's agents
This home has been saved by 10 users.
Listing by Douglas Elliman, Limited Liability Broker, 237 Smith Street, Brooklyn, NY 11231 | Brokerage Listing ID: 1429582
Common charges
Not applicable
Estimated payment
Taxes
No info
Tax abatement
No info
About
Seller’s agent
description
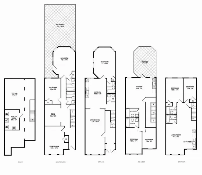
This is a spectacular, very highly renovated three family townhouse on arguably the best block in the Crown Heights North Historic District. The building consists of a HUGE, graciously laid out 4 bedroom/ 3.5 bath garden/parlor duplex and above it there are two very high-end 2 bedroom/ 2 bath rental units which will EASILY bring in a combined $4600/month of rental income - so approximately $900K...
Policies
Sorry, policy info isn’t available right now. Check back later.
Home features
Private outdoor space
Garden, Terrace
Building amenities
No info on building amenities
About the building
1174 Dean Street
1174 Dean Street, Brooklyn, NY 11216
3 units
3 stories
1920 built
For sale
0 available units for saleFor rent
0 available units for rentDocuments and permits
View documents and permitsProperty history
- Price Change: No changes
- Days on market: 41 daysThis is the number of days the listing has been on StreetEasy.
| Date | Price | Event |
|---|---|---|
11/15/2012 | $1,133,000 | |
5/18/2016 | $1,195,000 | Sold by Douglas Elliman |
11/17/2012 | $1,195,000 | No longer available |
11/16/2012 | $1,195,000 | No longer available |
2/13/2012 | $1,195,000 | In contract |
Past listing photos
Sign in to take a closer look at how this home compares to similar homes.
Explore Crown Heights
Transit
| Location | Distance |
|---|---|
LIRRat Nostrand Avenue | 0.17 miles |
ACat Nostrand Av | 0.25 miles |
Sat Park Place | 0.38 miles |
ASat Franklin Av | 0.41 miles |
ACSat Franklin Av | 0.41 miles |
About Crown Heights
Rental prices shown are base rent before any fees. Visit listings for cost and fees breakdown.
SalesMedian asking price
7 beds
$2.5M
Crown Heights has a lot going on. From the chaotic, commercial avenues of Nostrand and Utica to the wide, tree-lined esplanades of Eastern Parkway, the streets are always filled with locals shopping, catching up on the corner, and keeping tabs on neighbors. Walk down any of these streets and you're likely to find music playing from idling cars and bright Caribbean flags hanging from windows of apartment buildings. Every Labor Day, Crown Heights hosts the West Indian Day Parade, one of the city's largest annual street festivals which draws thousands of people from around the city and the world. The mix of people in such close proximity makes Crown Heights a fascinating microcosm of New York City. Living here, you'll be surrounded by a community with deep roots and rich heritage.
Learn more about Crown Heights




























































































































































