- ft²
2 rooms
Studio
0 baths
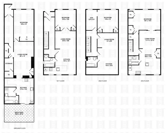
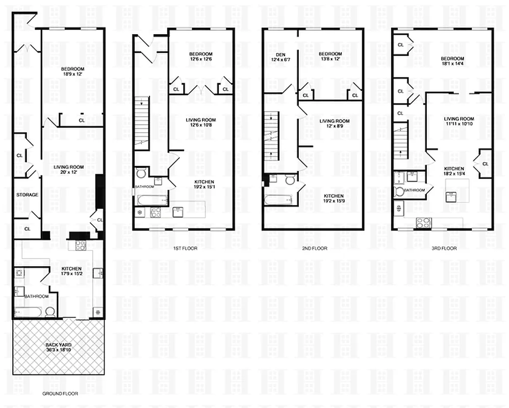
Four-family home
- Carroll Gardens
Reported sale
Sold on 6/30/2011
Not yet verified by closing records
Seller's agent
This home has been saved by 3 users.
Listing by Halstead Real Estate, 160 Seventh Avenue, Brooklyn, NY 11215 | MLS #: 241823
Common charges
Not applicable
Estimated payment
$16,727/mo
Legal disclaimerAll calculations are estimates provided by StreetEasy for informational purposes only. Actual amounts or financing terms may vary. Please contact your mortgage provider for specifics.Taxes
$4,817/mo
Tax abatement
No info
About
Seller’s agent
Description
Fully Renovated 4 family house with 15 foot extension on ground floor and over $100K in annual income. House offers new granite kitchens, new baths, new windows, new roof, new gas furnace, wood floors, skylight, original details, high ceilings, recessed lighting, radiant heated sidewalk (to cut down on winter shoveling), and a large ground floor extension. All leases to expire this year. House will not last.
Policies
Sorry, policy info isn’t available right now. Check back later.
Home features
No info on home features
Building amenities
Services and facilities
No info on services and facilities
Wellness and recreation
No info on wellness and recreation
Shared outdoor space
Roof deck
About the building
120 Carroll Street
120 Carroll Street, Brooklyn, NY 11231
4 units
3 stories
1900 built
For sale
0 available units for saleFor rent
0 available units for rentDocuments and permits
View documents and permitsProperty history
- Price change: No changes
- Days on market: 142 daysThis is the number of days the listing has been on StreetEasy.
| Date | Price | Event |
|---|---|---|
7/11/2013 | $2,375,000 | |
8/7/2023 | $2,325,000 | Sold by Halstead Real Estate |
6/30/2011 | $2,325,000 | No longer available |
2/8/2011 | $2,325,000 | Listed by Halstead Real Estate |
Past listing photos
Sign in to take a closer look at how this home compares to similar homes.
Explore Carroll Gardens
Transit
| Location | Distance |
|---|---|
FGat Carroll St | 0.35 miles |
FGRat Smith–9th St | 0.55 miles |
FGat Bergen St | 0.57 miles |
R2345at Borough Hall/Court St | 0.89 miles |
ACGat Hoyt & Schermerhorn | 0.93 miles |
About Carroll Gardens
Rental prices shown are base rent before any fees. Visit listings for cost and fees breakdown.
SalesMedian asking price
Studio
$2.75M
RentalsMedian asking base rent
Studio
$2,825
Carroll Gardens is at once the heart of old-school Brooklyn and a showcase for the borough's brownstone boom. The neighborhood has long been known for its red-sauce Italian joints and lively street life. But now, staples like Caputo's Bake Shop and Monteleone's Bakery and Café abut upscale stroller shops, yoga studios and fro-yo joints. Despite the newcomers, the neighborhood still feels like a small town, one of the few places where you might know your neighbors, your postman and your butcher by name.
Learn more about Carroll Gardens










































































































































