$2,699,000
For Sale
No longer available 9/30/2011
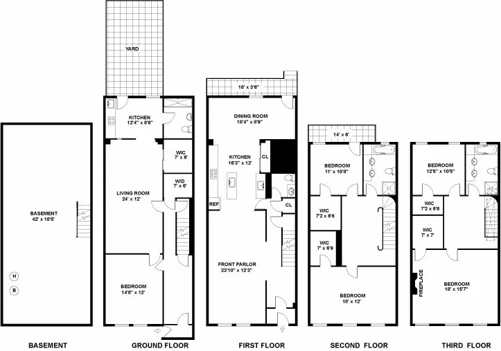
4,000 ft²
$674 per ft²
7 rooms
5 beds
3 baths
Four-family home
- Carroll Gardens
Resale
Seller's agent
This home has been saved by 11 users.
Listing by Nest Seekers International, Limited Liability Broker, 505 Park Avenue, New York, NY 10022 | Brokerage Listing ID: 29510
Common charges
Not applicable
Estimated payment
$13,648/mo
Legal disclaimerAll calculations are estimates provided by StreetEasy for informational purposes only. Actual amounts or financing terms may vary. Please contact your mortgage provider for specifics.Taxes
$353/mo
Tax abatement
No info
About
Seller’s agent
description
This unique, classic 4 family townhouse is great for investors as well as a big family. It’s currently being used as a 1 family house and the tenant is on the ground level. Recently updated and upgraded house features: 5bedrooms, 3 ½ baths, 1 wood burning fireplace, 2 deck and an outdoor garden. The owner has completed renovation of the exterior and interior yet has maintained all the period details, which have been lovingly preserved.
Policies
Sorry, policy info isn’t available right now. Check back later.
Home features
Central air
Dishwasher
Fireplace
Loft
Private outdoor space
Garden
Washer/dryer
Building amenities
Services and facilities
No info on services and facilities
Wellness and recreation
No info on wellness and recreation
Shared outdoor space
Deck
Roof deck
About the building
122 Carroll Street
122 Carroll Street, Brooklyn, NY 11231
4 units
3 stories
1900 built
For sale
0 available units for saleFor rent
0 available units for rentDocuments and permits
View documents and permitsProperty history
- Price Change: ↓ $496,000 (-15.5%) on 6/2/11
- Days on market: 363 daysThis is the number of days the listing has been on StreetEasy.
| Date | Price | Event |
|---|---|---|
9/30/2011 | $2,699,000 | No longer available |
6/2/2011 | $2,699,000 | Price decreased by 16% |
11/9/2010 | $3,195,000 | Price decreased by 9% |
10/2/2010 | $3,500,000 | Listed by Nest Seekers International |
Sign in to take a closer look at how this home compares to similar homes.
Explore Carroll Gardens
Transit
| Location | Distance |
|---|---|
FGat Carroll St | 0.35 miles |
FGRat Smith–9th St | 0.55 miles |
FGat Bergen St | 0.56 miles |
R2345at Borough Hall/Court St | 0.89 miles |
ACGat Hoyt & Schermerhorn | 0.93 miles |
About Carroll Gardens
Rental prices shown are base rent before any fees. Visit listings for cost and fees breakdown.
SalesMedian asking price
5 beds
$4.91M
Carroll Gardens is at once the heart of old-school Brooklyn and a showcase for the borough's brownstone boom. The neighborhood has long been known for its red-sauce Italian joints and lively street life. But now, staples like Caputo's Bake Shop and Monteleone's Bakery and Café abut upscale stroller shops, yoga studios and fro-yo joints. Despite the newcomers, the neighborhood still feels like a small town, one of the few places where you might know your neighbors, your postman and your butcher by name.
Learn more about Carroll Gardens














































































































































