$1,199,000
For Sale
Delisted 12/9/2025
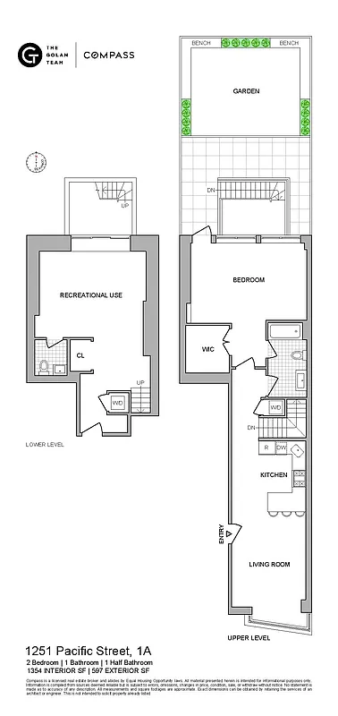
1,354 ft²
$885 per ft²
5 rooms
2 beds
1.5 baths
Condo
- Crown Heights
Sponsor unit
Sponsor unitA unit being sold for the first time. It’s typically owned by the building. For condos, this is often the developer. For co-ops, this is often the building’s original owner before it went co-op.
Seller's agents
This home has been saved by 41 users.
Listing by Compass, Corporate Broker, 1320 Fulton Street, Brooklyn, NY 11216
Common charges
$510/mo
Estimated payment
$8,507/mo
Legal disclaimerAll calculations are estimates provided by StreetEasy for informational purposes only. Actual amounts or financing terms may vary. Please contact your mortgage provider for specifics.Taxes
$650/mo
Tax abatement
No info
About
Seller’s agent
description
Welcome to Unit 1 at 1251 Pacific—a stunning convertible 2-bedroom duplex unit that epitomizes modern luxury living. This meticulously crafted space offers a finished cellar level and a meticulously landscaped patio and backyard, creating an oasis of tranquility in the heart of Brooklyn.
Upon entering you’ll be greeted by an abundance of natural light, streaming in through floor-to-ceiling windows that adorn both the front and back facades.
Policies
Sorry, policy info isn’t available right now. Check back later.
Home features
Central air
Dishwasher
Hardwood floors
Private outdoor space
Garden
Washer/dryer
Building amenities
Services and facilities
Bike room
Storage space
Locker/cage
Wellness and recreation
No info on wellness and recreation
Shared outdoor space
Roof deck
About the building
1251 Pacific Street
1251 Pacific Street, Brooklyn, NY 11216
4 units
4 stories
2024 built
For sale
2 available units for saleFor rent
0 available units for rentDocuments and permits
View documents and permitsProperty history
- Price Change: No changes
- Days on market: 96 daysThis is the number of days the listing has been on StreetEasy.
| Date | Price | Event |
|---|---|---|
12/9/2025 | $1,199,000 | Delisted by Compass |
9/4/2025 | $1,199,000 | Listed by Compass |
5/12/2025 | $1,175,000 | |
2/6/2025 | $1,175,000 | |
9/10/2024 | $1,175,000 | Price decreased by 4% |
Sign in to take a closer look at how this home compares to similar homes.
Explore Crown Heights
Transit
| Location | Distance |
|---|---|
LIRRat Nostrand Avenue | 0.16 miles |
ACat Nostrand Av | 0.18 miles |
ACSat Franklin Av | 0.33 miles |
ASat Franklin Av | 0.33 miles |
Sat Park Place | 0.39 miles |
About Crown Heights
Rental prices shown are base rent before any fees. Visit listings for cost and fees breakdown.
SalesMedian asking price
2 beds
$1.32M
RentalsMedian asking base rent
2 beds
$4,000
Crown Heights has a lot going on. From the chaotic, commercial avenues of Nostrand and Utica to the wide, tree-lined esplanades of Eastern Parkway, the streets are always filled with locals shopping, catching up on the corner, and keeping tabs on neighbors. Walk down any of these streets and you're likely to find music playing from idling cars and bright Caribbean flags hanging from windows of apartment buildings. Every Labor Day, Crown Heights hosts the West Indian Day Parade, one of the city's largest annual street festivals which draws thousands of people from around the city and the world. The mix of people in such close proximity makes Crown Heights a fascinating microcosm of New York City. Living here, you'll be surrounded by a community with deep roots and rich heritage.
Learn more about Crown Heights






















































































































