$999,000
For Sale
In contract 10/1/2025
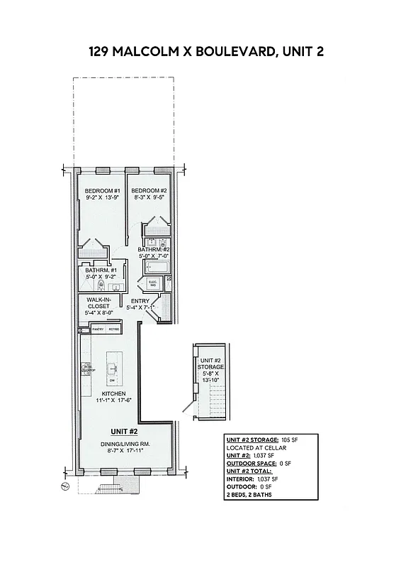
1,037 ft²
$963 per ft²
6 rooms
2 beds
2 baths
Condo
- Stuyvesant Heights
Sponsor unit
Sponsor unitA unit being sold for the first time. It’s typically owned by the building. For condos, this is often the developer. For co-ops, this is often the building’s original owner before it went co-op.
This home has been saved by 80 users.
Listing by Compass, Corporate Broker, 110 5th Avenue, New York, NY 10011
Listing updated in the last 2 days
Common charges
$520/mo
Estimated payment
$6,657/mo
Legal disclaimerAll calculations are estimates provided by StreetEasy for informational purposes only. Actual amounts or financing terms may vary. Please contact your mortgage provider for specifics.Taxes
$380/mo
Tax abatement
No info
About
Seller’s agent
description
NEWLY RELEASED Reimagining a classic brownstone with modern charm.
Outfitted in a historic brownstone on Malcolm X Boulevard, the building blends classic details with modern comfort. Thoughtful designs such as high ceilings, oversized windows, elegant kitchens and state-of-the-art climate control systems are all tucked inside the restored turn-of-the-century walls.
Policies
Sorry, policy info isn’t available right now. Check back later.
Home features
Central air
Dishwasher
Hardwood floors
View
City
Washer/dryer
Building amenities
Services and facilities
Storage space
Locker/cage
Wellness and recreation
No info on wellness and recreation
Shared outdoor space
No info on shared outdoor space
About the building
129 Malcolm X Boulevard
129 Malcolm X Boulevard, Brooklyn, NY 11221
4 units
4 stories
1931 built
For sale
4 available units for saleFor rent
0 available units for rentDocuments and permits
View documents and permitsProperty history
- Price Change: No changes
- Days on market: 100 daysThis is the number of days the listing has been on StreetEasy.
| Date | Price | Event |
|---|---|---|
10/1/2025 | $999,000 | In contract |
6/23/2025 | $999,000 | Listed by Compass |
Sign in to take a closer look at how this home compares to similar homes.
Explore Stuyvesant Heights
Transit
| Location | Distance |
|---|---|
| 0.28 miles |
| 0.37 miles |
| 0.61 miles |
| 0.63 miles |
| 0.66 miles |






























































































































