$999,000
For Sale
In contract 12/5/2025
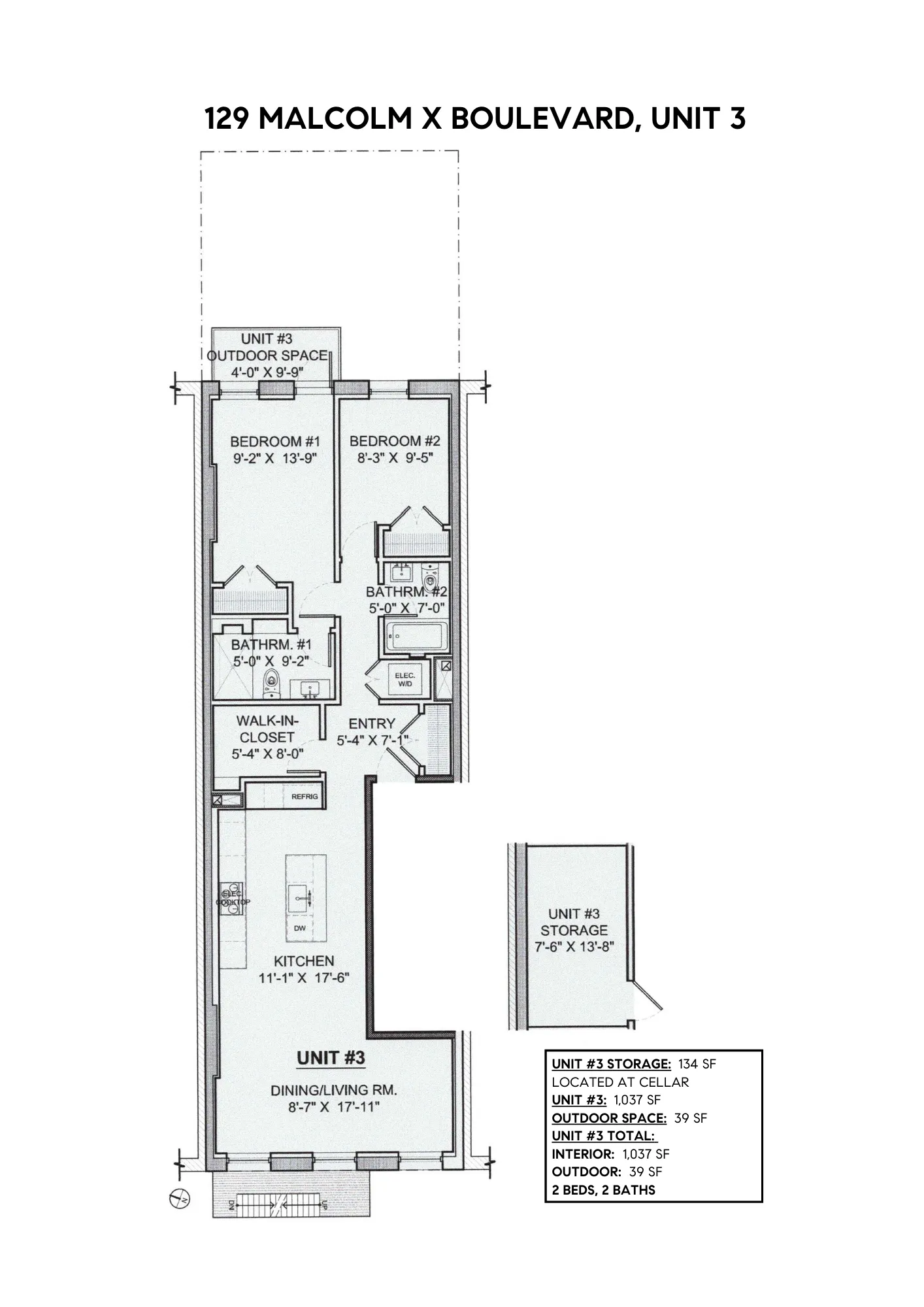
1,163 ft²
$858 per ft²
6 rooms
2 beds
2 baths
Condo
- Stuyvesant Heights
Sponsor unit
Sponsor unitA unit being sold for the first time. It’s typically owned by the building. For condos, this is often the developer. For co-ops, this is often the building’s original owner before it went co-op.
This home has been saved by 117 users.
Listing by Compass, Corporate Broker, 110 5th Avenue, New York, NY 10011
Common charges
$529/mo
Estimated payment
$6,643/mo
Legal disclaimerAll calculations are estimates provided by StreetEasy for informational purposes only. Actual amounts or financing terms may vary. Please contact your mortgage provider for specifics.Taxes
$387/mo
Tax abatement
No info
About
Seller’s agent
description
NEW DEV: Reimagining a classic brownstone with sophistication and modern charm.
Outfitted in a historic brownstone on Malcolm X Boulevard, the building blends classic details with modern comfort. Thoughtful designs such as high ceilings, oversized windows, elegant kitchens and state-of-the-art climate control systems are all tucked inside the restored turn-of-the-century walls.
Policies
Sorry, policy info isn’t available right now. Check back later.
Home features
Central air
Dishwasher
Hardwood floors
Private outdoor space
Balcony
View
City, Skyline
Washer/dryer
Building amenities
Services and facilities
Storage space
Locker/cage
Wellness and recreation
No info on wellness and recreation
Shared outdoor space
No info on shared outdoor space
About the building
129 Malcolm X Boulevard
129 Malcolm X Boulevard, Brooklyn, NY 11221
4 units
4 stories
1931 built
For sale
3 available units for saleFor rent
0 available units for rentDocuments and permits
View documents and permitsProperty history
- Price Change: ↓ $85,000 (-7.8%) on 9/25/25
- Days on market: 256 daysThis is the number of days the listing has been on StreetEasy.
| Date | Price | Event |
|---|---|---|
12/5/2025 | $999,000 | In contract |
9/25/2025 | $999,000 | Price decreased by 8% |
3/24/2025 | $1,084,000 | Listed by Compass |
Sign in to take a closer look at how this home compares to similar homes.
Explore Stuyvesant Heights
Transit
| Location | Distance |
|---|---|
Jat Kosciusko St | 0.28 miles |
JZat Gates Av | 0.37 miles |
JMZat Myrtle Av | 0.61 miles |
Mat Central Av | 0.63 miles |
ACat Utica Av | 0.66 miles |
































































































