$1,399,000
For Sale
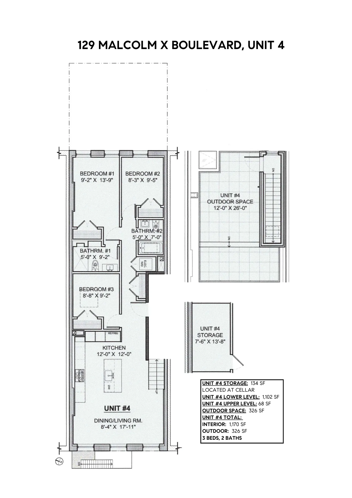
1,170 ft²
$1,195 per ft²
6 rooms
3 beds
2 baths
Condo
- Stuyvesant Heights
Sponsor unit
Sponsor unitA unit being sold for the first time. It’s typically owned by the building. For condos, this is often the developer. For co-ops, this is often the building’s original owner before it went co-op.
This home has been saved by 40 users.
Open House
Sat, Dec 6 (10:30–11:30 AM ET), by appt only
Listing by Compass, Corporate Broker, 110 5th Avenue, New York, NY 10011
Listing updated in the last 2 days
Common charges
$613/mo
Estimated payment
$9,124/mo
Legal disclaimerAll calculations are estimates provided by StreetEasy for informational purposes only. Actual amounts or financing terms may vary. Please contact your mortgage provider for specifics.Taxes
$449/mo
Tax abatement
No info
About
Seller’s agent
description
NEW DEV Penthouse with private rooftop and amazing views!
Reimagining a classic brownstone with sophistication and modern charm.
Outfitted in a historic brownstone on Malcolm X Boulevard, the building blends classic details with modern comfort. Thoughtful designs such as high ceilings, oversized windows, elegant kitchens and state-of-the-art climate control systems are all tucked inside the restored turn-of-the-century walls.
Policies
Sorry, policy info isn’t available right now. Check back later.
Home features
Central air
Dishwasher
Hardwood floors
Private outdoor space
Roof deck, Roof rights, Terrace
View
City
Washer/dryer
Building amenities
Services and facilities
Laundry in building
Storage space
Locker/cage
Wellness and recreation
Media room
Shared outdoor space
Roof deck
About the building
129 Malcolm X Boulevard
129 Malcolm X Boulevard, Brooklyn, NY 11221
4 units
4 stories
1931 built
For sale
4 available units for saleFor rent
0 available units for rentDocuments and permits
View documents and permitsProperty history
- Price Change: ↓ $151,000 (-9.7%) on 9/25/25
- Days on market: 111 daysThis is the number of days the listing has been on StreetEasy.
| Date | Price | Event |
|---|---|---|
9/25/2025 | $1,399,000 | Price decreased by 10% |
8/15/2025 | $1,550,000 | Listed by Compass |
Sign in to take a closer look at how this home compares to similar homes.
Explore Stuyvesant Heights
Transit
| Location | Distance |
|---|---|
| 0.28 miles |
| 0.37 miles |
| 0.61 miles |
| 0.63 miles |
| 0.66 miles |



















































































































































