- ft²
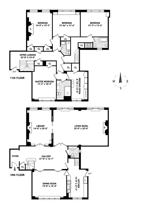
10 rooms
4 beds
3.5 baths
Co-op
- Lenox Hill
reported sale
Sold on 9/10/2014
Not yet verified by closing records
Seller's agent
This home has been saved by 11 users.
Listing by Brown Harris Stevens, Real Estate Principal Office, 100 Fifth Avenue, New York, NY 10011 | MLS #: 9839014
Maintenance fees
$7,774/mo
Estimated payment
$46,565/mo
Legal disclaimerAll calculations are estimates provided by StreetEasy for informational purposes only. Actual amounts or financing terms may vary. Please contact your mortgage provider for specifics.Taxes
Included in maintenance fees
Tax abatement
No info
About
Sellerâs agent
description
CONTRACT SIGNED
Elegant and exceptionally rare, this 10 room duplex home is situated on the top two floors of a desirable prewar building. Built in 1908 and designed by Charles A. Platt, the distinctive 12 story Italian Renaissance style building exhibits the spacious proportions and lightness of the period. This historic address is distinguished by a very deep and handsome cornice and impressive entrance portals flanked by massive columns with a pediment ringed with ironwork.
Policies
Pets allowed
Cats and dogs allowed
Pied-a-terre allowed
Home features
Washer/dryer
Building amenities
Services and facilities
Doorman
Full-time
Elevator
Laundry in building
Live-in super
Storage space
Wellness and recreation
No info on wellness and recreation
Shared outdoor space
No info on shared outdoor space
About the building
130 134 East 67 Th Street
130 East 67th Street, New York, NY 10065
56 units
11 stories
1908 built
For sale
0 available units for saleFor rent
0 available units for rentDocuments and permits
View documents and permitsProperty history
- Price Change: â $450,000 (-5.8%) on 6/10/14
- Days on market: 115 daysThis is the number of days the listing has been on StreetEasy.
| Date | Price | Event |
|---|---|---|
6/1/2017 | $7,300,000 | Sold by Brown Harris Stevens |
9/10/2014 | $7,300,000 | No longer available |
7/24/2014 | $7,300,000 | In contract |
6/10/2014 | $7,300,000 | Price decreased by 6% |
3/31/2014 | $7,750,000 | Listed by Brown Harris Stevens |
Past listing photos
Sign in to take a closer look at how this home compares to similar homes.
Explore Lenox Hill
Transit
| Location | Distance |
|---|---|
6at 68th StâHunter College | under 500 feet |
FQat Lexington Av/63rd St | 0.18 miles |
Qat 72nd St | 0.24 miles |
NRW456at Lexington Av/59th St | 0.33 miles |
NRat 59th St | 0.44 miles |















































































































































