View this home virtually
- ft²
3 rooms
Studio
1 bath
Co-op
- Brooklyn Heights
Resale
recorded sale
Sold on 5/24/2021
Verified by closing records
Last listed for $425,000
Seller's agents
This home has been saved by 373 users.
Listing by Compass, Corporate Broker, 110 5th Avenue, New York, NY 10011
Maintenance fees
$631/mo
Estimated payment
$2,794/mo
Legal disclaimerAll calculations are estimates provided by StreetEasy for informational purposes only. Actual amounts or financing terms may vary. Please contact your mortgage provider for specifics.Taxes
Included in maintenance fees
Tax abatement
No info
About
Seller’s agent
Buyer’s agent
description
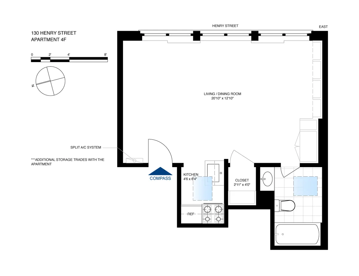
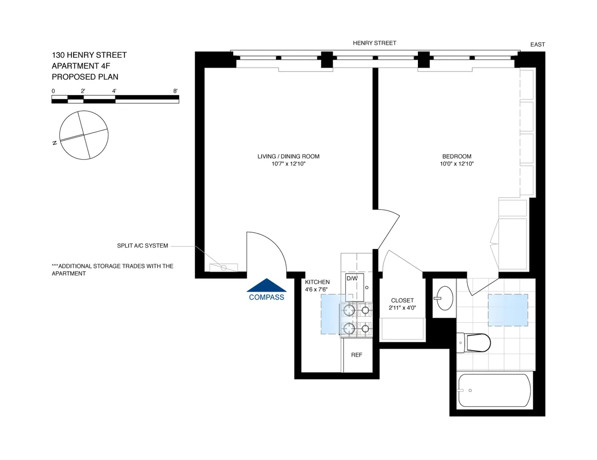
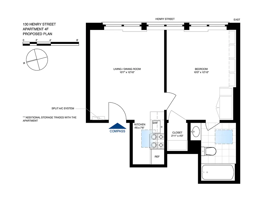
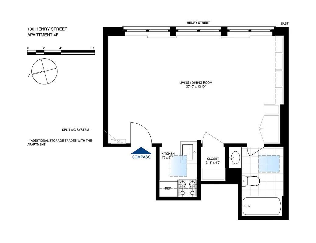
Six oversized windows and two sky lights illuminate this charming penthouse studio complete with exposed brick walls and views of tree lined Henry Street and the neighboring church steeple. This storybook apartment has recently been refreshed and features an oversized bathroom, walk in closet, plenty of built in storage, and a split AC system.
Policies
Sorry, policy info isn’t available right now. Check back later.
Home features
Central air
Hardwood floors
Building amenities
Services and facilities
Laundry in building
Wellness and recreation
No info on wellness and recreation
Shared outdoor space
No info on shared outdoor space
About the building
130 Henry Street
130 Henry Street, Brooklyn, NY 11201
9 units
4 stories
1858 built
For sale
1 available units for saleFor rent
0 available units for rentDocuments and permits
View documents and permitsProperty history
- Price Change: No changes
- Days on market: 44 daysThis is the number of days the listing has been on StreetEasy.
| Date | Price | Event |
|---|---|---|
5/24/2021 | $480,000 | Sold by Compass |
3/1/2021 | $425,000 | In contract |
12/2/2020 | $425,000 | In contract |
11/9/2020 | $425,000 | Listed by Compass |
9/16/2008 | $327,500 |
Past listing photos
Sign in to take a closer look at how this home compares to similar homes.
Explore Brooklyn Heights
Transit
| Location | Distance |
|---|---|
23at Clark St | under 500 feet |
R2345at Borough Hall/Court St | 0.17 miles |
ACat High St | 0.22 miles |
ACFRat Jay St–MetroTech | 0.4 miles |
Ferryat Fulton Ferry Landing | 0.44 miles |
About Brooklyn Heights
Rental prices shown are base rent before any fees. Visit listings for cost and fees breakdown.
SalesMedian asking price
Studio
$467.5K
RentalsMedian asking base rent
Studio
$3,000
Brooklyn Heights is known for its gorgeous housing stock and its impressive backdrop. The Promenade is the neighborhood's most celebrated and popular public space, offering just about the best views of the Brooklyn Bridge and the Manhattan skyline that can be found. There, you're likely to find locals walking their Westies, kids zooming around on scooters, and tourists excitedly snapping pics — every one of them savoring the views from this prime perch of a neighborhood.
Learn more about Brooklyn Heights



















































































































